Downside Road, Bristol

Guide Price
£330,000
SSTC
This property listing is now SSTC

2 Bedroom Apartment for sale in Bristol

1 2 1
  • In Need Of Refurbishment
  • Fabulous Location
  • 2 Double Bedrooms
  • Large Sitting Room
  • West Facing Balcony
  • Fabulous Views From All Aspects
  • Single Garage
  • With No Onward Chain
  • OFFERS INVITED BETWEEN £330,000 - £340,000

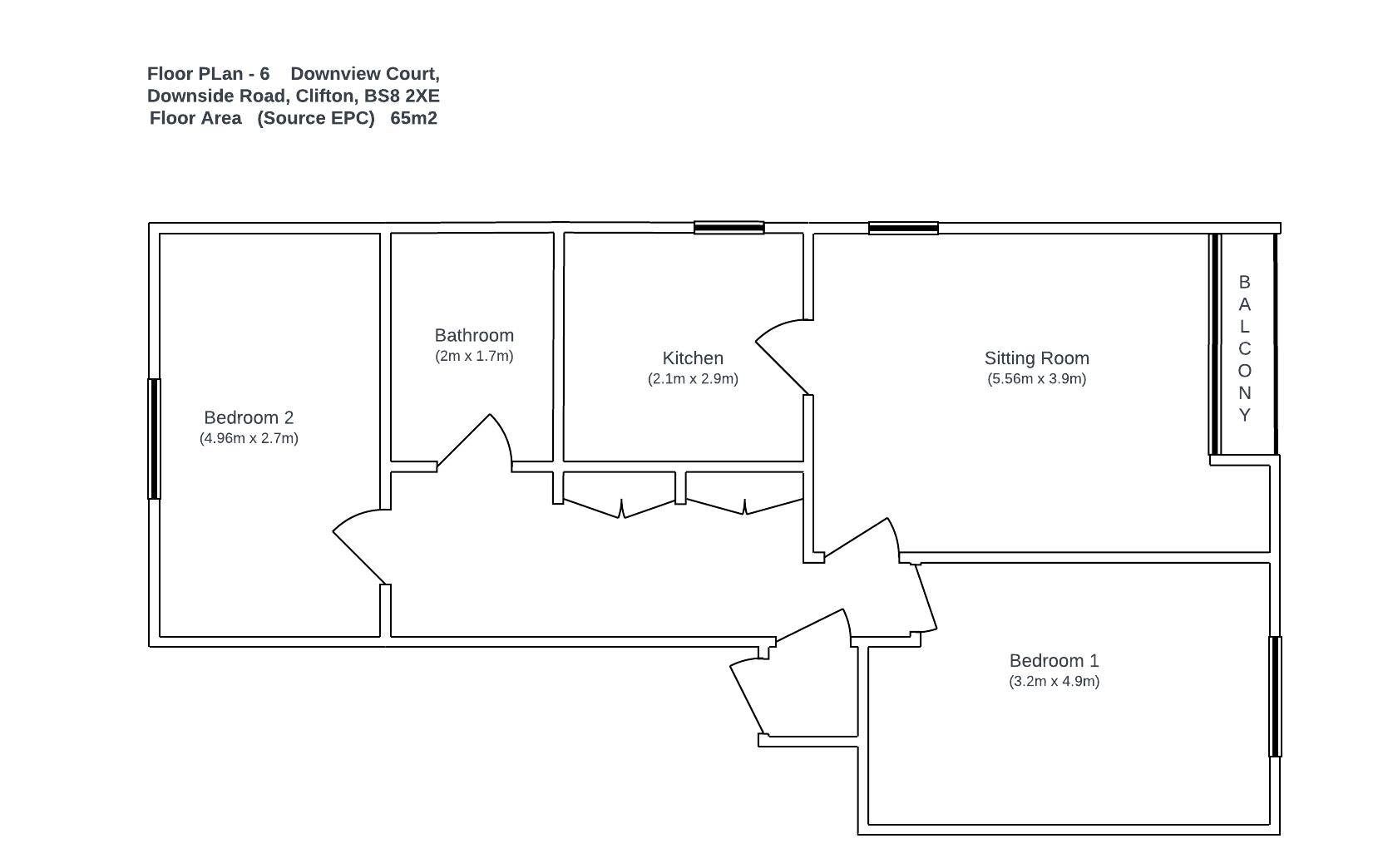
OFFERS INVITED BETWEEN £330,000 - £340,000. Situated on the second floor of this purpose built apartment block, apartment six offers a wonderful opportunity for a discerning buyer to renovate and personalise a generous two bedroom apartment. The property boasts far reaching views across Durdham Downs to the west, and to the South enjoys far reaching views across Clifton and Bristol's cityscape beyond. The sitting room affords access to a private West facing balcony. The kitchen is of a good size, both of the bedrooms are doubles, and there is a bathroom. Outside the property benefits from a single garage. This fabulous opportunity is offered for sale with no onward chain.

Summary Of Accommodation - In need of modernisation, this two double bedrooms purpose built apartment is situated on the second floor, and as such boasts wonderful views from all of the windows. The living room and kitchen are good sizes, and both of the bedrooms are generous doubles.

The private balcony is accessed off the living room, and affords views across the downs, with an orientation that is perfect for the afternoon and evening sun.

Outside, Downsview Court is set in pleasant grounds that are mainly laid to lawn with mature trees and shrubs.

The property has the benefit of a single garage with an open and over door and has power and light.

This property is being sold with no onward chain, and offers a wonderful opportunity for investors, developers or simply a buyer looking to create a wonderful home.

Useful Information - Viewing - Strictly by prior appointment with Hydes of Bristol - 0117 973 1516
Tenure - Leasehold with 953 Years remaining.
Service Charge - We understand the service charge to be £150 per month.
Ground Rent - £20 per annum
Local Authority - Bristol City Council
Council Tax Band - We understand to be band 'C' (£2,084.65 for 2023/2024)
Services - We understand all mains services to be to be connected.
Broadband - Superfast available up to 80 Mbps download, 20Mbps upload.
Mobile Phone - There coverage for voice and data for EE, 02, Vodafone and Three

Location - This particularly convenient position offers easy access to the Downs and Whiteladies Road with its wide variety of boutiques, shops, restaurants and cafés.
Bristol has a popular cultural and music scene, catering for all tastes and genres and is famed for its green, open spaces such as Durdham Downs and The Ashton Court Estate, which is across the famous Suspension Bridge and includes mountain bike trails and bridle paths. There are golf courses close by and sailing and windsurfing at Baltic Wharf, and even surfing at "The Wave."
For the commuter, there is good road access to the commercial centre, and indeed the motorway networks M5 and M4. Bristol Temple Meads train station provides an extensive service to many cities nationwide, and the city's international airport flies connects to many European Cities.

Important Note - Hydes of Bristol LLP and any joint agents give notice that (i) they have no authority to make or give representations or warranties in relation to the property. These particulars do not form part of any offer or contract and must not be relied upon as statements or representations of fact. (ii) Any areas, distances or measurements are approximate. The text, photographs and plans are for guidance only and are not necessarily comprehensive. It should not be assumed that the property has all the necessary planning, building regulations or other consents and Hydes of Bristol LLP have not tested any services, equipment or facilities. Purchasers must satisfy themselves by inspection or otherwise. (iii) In accordance with the consumer protection from unfair trading regulations, please note that the working condition of these services, or kitchen appliances has not been checked by the Agents but at the time of taking particulars we were informed that all were in working order. Please also note that current government legislation demands that as selling agents for this property, Hydes of Bristol LLP require written evidence of the origin/source of finance for funding for any prospective purchaser wishing to purchase this property. This confirmation shall be required prior to the vendor entering into any contract of sale and our instructions from the vendor are to this effect.

Property Ref: 14213_32698787

Share:

Similar Properties

North Road, Leigh Woods, Bristol

2 Bedroom Flat | POA

OFFERS ARE INVITED BETWEEN £325,000 & £350,000. A beautifully presented two bedroom, first floor apartment that forms pa...

20-22 College Road, Clifton, Bristol

2 Bedroom Apartment | Guide Price £325,000

Offers are invited between £325,000 and £350,000. A delightful and well presented two-bedroom hall floor apartment situa...

Meridian Place, Clifton, Bristol, BS8

1 Bedroom Apartment | Guide Price £260,000

A charming, light and well presented first floor apartment set within this handsome Georgian townhouse, in a quiet and c...

Percival Road, Clifton

2 Bedroom Apartment | Guide Price £335,000

This beautifully presented two bedroom apartment forms part of the recently renovated Percival Court development. Situat...

Glenavon Park, Stoke Bishop, Bristol, BS9

3 Bedroom Flat | Guide Price £350,000

OFFERS INVITED BETWEEN £350,000 AND £365,000 - A well proportioned and particularly light apartment, offering three doub...

Frederick Place, Clifton, Bristol, BS8

2 Bedroom Apartment | Guide Price £360,000

A charming and particularly light balcony flat, offering two double bedrooms, situated on the first floor of this attrac...

Hydes (Clifton)

28 Princess Victoria Street, Clifton, Bristol, BS8 4BU

0117 9731516

How much is your home worth?

Use our short form to request a valuation of your property.

Request a Valuation

Mortgage Calculator

Amount Borrowed: £
Total Amount Repayable: £
Total Monthly Payment: £
©2026 The Guild of Property Professionals. All rights reserved. Terms and Conditions | Privacy Policy | Cookie Policy | Complaints Policy | Members Login
The Guild of Property Professionals Trading Address: 121 Park Lane, London W1K 7AG. GPEA Limited. Registered in England & Wales.  Company No: 02819824.  Registered Office Address: 2 St. Stephen's Court, St. Stephen's Road, Bournemouth, Dorset, England, BH2 6LA.  VAT Registration No: 576 8795 61
Book a Property Valuation Update Cookies Preferences