Harley Mews, Clifton, Bristol, BS8

Offers in region of
£980,000
SSTC
This property listing is now SSTC

5 Bedroom Mews House for sale in Bristol

2 5 3
  • Four/Five bedrooms
  • Car parking space
  • Roof terrace
  • Recently refurbished
  • No onward chain

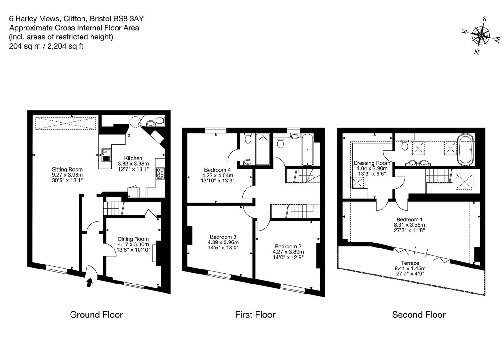
A four/five bedroom mews house with accommodation arranged over three floors, car parking, a roof terrace situated in an exclusive residential backwater within Clifton. Harley Mews is a private road nestled directly behind the much coveted, Grade II* listed Georgian terrace of Harley Place.

The property has had the benefit of a significant program of modernisation and refurbishment under the current ownership to include a beautifully fitted kitchen/dining/living space and three luxuriously appointed bath/shower rooms (one of which is en suite). Other advantages include certified electrical services and renewed central heating and a high standard of neutral decoration throughout the three storey accommodation. The top floor of the house, if so desired, can form a luxurious master suite with a large bedroom served by an adjoining dressing room and an adjacent, luxurious bath/shower room. The bedroom on this level also has access to a roof terrace that offers a pleasing outlook over the neighbouring gardens and roof tops of Clifton. It should also be noted that this property is offered for sale with no onward chain and can therefore be available for immediate occupation.

Location - Harley Mews is an exclusive, highly regarded backwater that is within only a few hundred yards of Clifton Village and the Downs. Clifton Village offers a variety of shops, boutiques and restaurants as well as several bus routes providing easy city centre access. Indeed, Bristol city centre itself is within only 1.5 miles allowing access to the national motorway network via the M32 and rail links to London Paddington from Temple Meads mainline station. The vast expanse of Clifton's Downs can be found within quarter of a mile as can the historic landmark of Isambard Kingdom Brunel's world famous Suspension Bridge spanning the Avon Gorge (in itself a designated area of outstanding natural beauty). The area is particularly well served for schooling in both the state and private sectors with Clifton College being within quarter of a mile of the subject property.

Other Information - OTHER INFORMATION

VIEWING: Strictly by prior arranged appointment with Hydes Of Bristol.

COUNCIL TAX BAND: E - £2,644.45 FOR 2021 TO 2022

LOCAL AUTHORITY: Bristol City Council. 0117 922 2000 www.bristol.gov.uk

ENERGY PERFORMANCE RATING: D with potential of B

Important Note - Hydes of Bristol and any joint agents give notice that (i) they have no authority to make or give representations or warranties in relation to the property. These particulars do not form part of any offer or contract and must not be relied upon as statements or representations of fact. (ii) Any areas, distances or measurements are approximate. The text, photographs and plans are for guidance only and are not necessarily comprehensive. It should not be assumed that the property has all the necessary planning, building regulations or other consents and Hydes Of Bristol have not tested any services, equipment or facilities. Purchasers must satisfy themselves by inspection or otherwise. (iii) In accordance with the consumer protection from unfair trading regulations, please note that the working condition of these services, or kitchen appliances has not been checked by the Agents but at the time of taking particulars we were informed that all were in working order. Please also note that current government legislation demands that as selling agents for this property, Hydes Of Bristol require written evidence of the origin/source of finance for funding for any prospective purchaser wishing to purchase this property. This confirmation shall be required prior to the vendor entering into any contract of sale and our instructions from the vendor are to this effect.

Property Ref: 14213_31829829

Share:

Similar Properties

Holmwood Gardens, Westbury On Trym, Bristol, BS9

4 Bedroom Detached House | Guide Price £975,000

A stunning and particularly light detached four bedroom house forming part of an exclusive development, in a quiet and c...

The Avenue, Sneyd Park, Bristol, BS9

4 Bedroom Detached House | POA

OFFERS INVITED BETWEEN £975,000 AND £1,100,000. A unique and contemporary style detached family home set in undoubtedly...

Old Sneed Avenue, Sneyd Park, Bristol, BS9

3 Bedroom House | £975,000

A beautiful family home occupying an elevated position in one of Bristol's most desirable locations. The generous accomm...

Clifton Down, Bristol

3 Bedroom Apartment | Guide Price £995,000

A beautifully appointed and particularly large (c. 2000 sq ft) three bedroom hall floor apartment set within this magnif...

Manor Way, Failand, Bristol, BS8

4 Bedroom House | Guide Price £995,000

This private home is nestled at the end of a picturesque highly sought-after cul-de-sac in central Failand, surrounded b...

Manor Road, Abbots Leigh, Bristol, BS8

4 Bedroom Semi-Detached House | Offers Over £995,000

An attractive double fronted semi-detached house located in an enviable position with a magnificent 130ft (39.6 meters)...

Hydes (Clifton)

28 Princess Victoria Street, Clifton, Bristol, BS8 4BU

0117 9731516

How much is your home worth?

Use our short form to request a valuation of your property.

Request a Valuation

Mortgage Calculator

Amount Borrowed: £
Total Amount Repayable: £
Total Monthly Payment: £
©2026 The Guild of Property Professionals. All rights reserved. Terms and Conditions | Privacy Policy | Cookie Policy | Complaints Policy | Members Login
The Guild of Property Professionals Trading Address: 121 Park Lane, London W1K 7AG. GPEA Limited. Registered in England & Wales.  Company No: 02819824.  Registered Office Address: 2 St. Stephen's Court, St. Stephen's Road, Bournemouth, Dorset, England, BH2 6LA.  VAT Registration No: 576 8795 61
Book a Property Valuation Update Cookies Preferences