Caledonia Place, Clifton, Bristol, BS8

Guide Price
£495,000
SSTC
This property listing is now SSTC

2 Bedroom Apartment for sale in Bristol

1 2 1
  • Stunning Courtyard Apartment in Iconic terrace
  • Quiet and convenient location in the heart of Clifton Village
  • South facing courtyard garden
  • Two double bedrooms
  • Large light living room

A well configured and elegant two double bedroom courtyard apartment forming part of this iconic Grade II listed Georgian terrace in the very heart of Clifton Village.

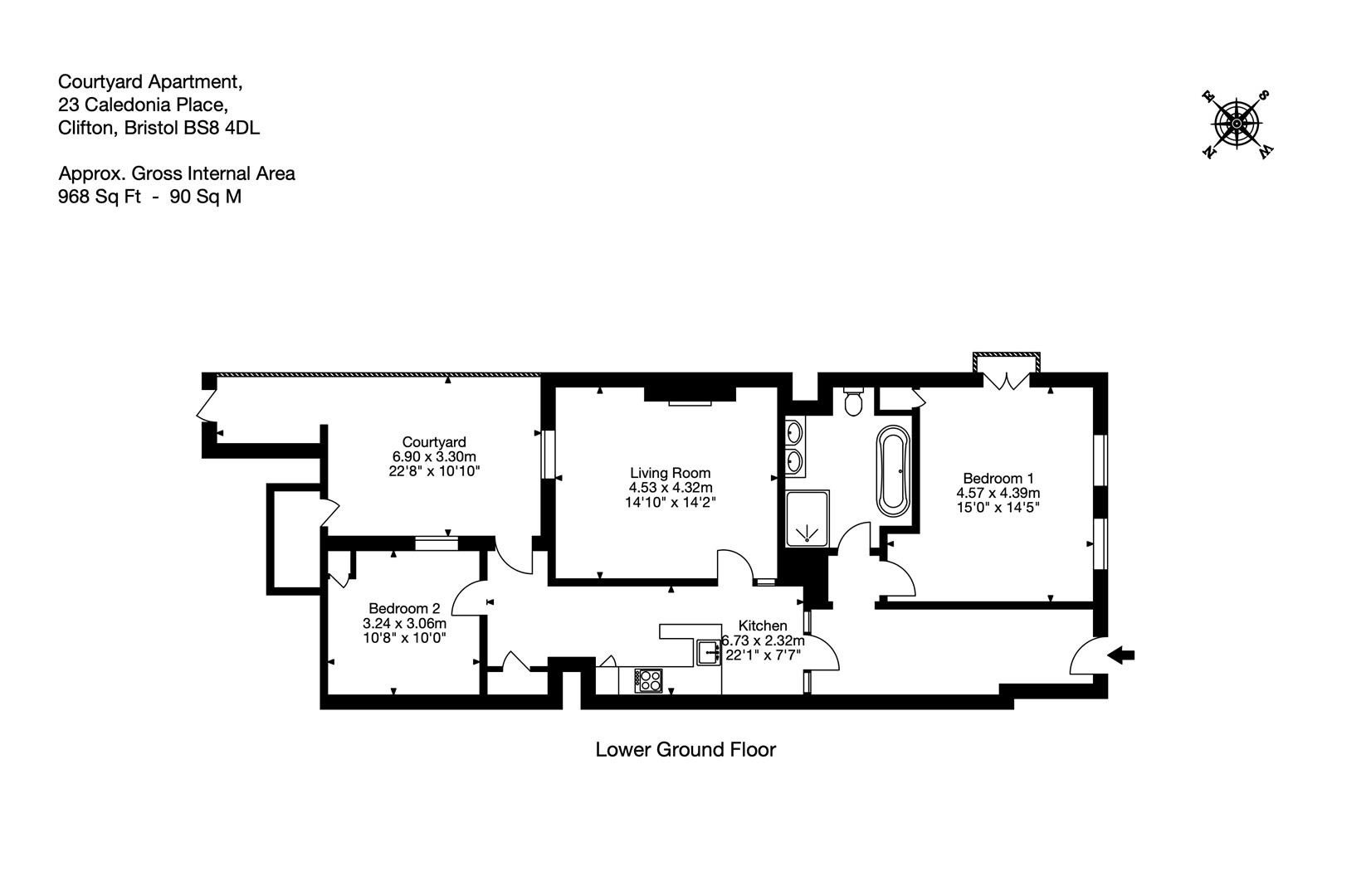
Accommodation - This fantastic courtyard apartment has its own private entrance and offers spacious, light and airy accommodation throughout and retains a number of attractive period features including original sash windows with working shutters. There is a large, welcoming, entrance hallway with attractive flooring. A generously proportioned master bedroom with built-in wardrobe space which looks into the entrance courtyard. A tiled well-proportioned bathroom offers under floor heating, a large walk-in shower as well as a claw foot bath and dual wash hand basins. Further to this, the sociable kitchen space offers a comprehensive range of modern base and wall units and a generously proportioned reception room looks into the attractive rear courtyard garden. This room also has an appealing feature fireplace as well as attractive timber flooring. To the rear of the property the second bedroom offers a spacious double room and also overlooks the courtyard garden. As an additional point of interest, we understand that that there was historically planning permission granted (now lapsed) and listed building consent, in place to add an ensuite to this second bedroom from the area of vaulted storage directly behind that is presently accessed off the rear courtyard garden (see floorplan) which this property enjoys the use of.

Externally, the courtyard garden enjoys a southerly aspect has been attractively decked and offers a calm, tranquil spot to sit out. To the rear of the courtyard are two doors providing access to vaults (as shown on the floor plan) which this property has the exclusive access to. One of these had the aforementioned planning permission to convert it in to an ensuite for the second bedroom. It should be noted that the additional vaults located behind the property do not form part of the legal title of the property within the lease plan despite being the only flat with access to them.

Location - Caledonia Place is superbly and conveniently situated in the heart of Clifton Village close to a wide range of high street shops, boutiques and restaurants. Clifton Village and its surrounding roads are widely admired for the stunning Georgian and Victorian architecture. Bristol City Centre and M32 link to the M4/M5 motorway network is approximately 2 miles travelling distance. Historic landmarks nearby include, The Observatory, The Downs and most notably Brunel's world-famous Clifton Suspension Bridge provides access to a wide range of recreational facilities such as Ashton Court Estate as well as a number of local golf Clubs to name but a few. There is a wide selection of both private and state schooling within the immediate vicinity such as Clifton College, Clifton High School, BGS, QEH and Christchurch Primary School.

Other Information - Listing - Grade II*
Tenure -Leasehold with share of freehold. We understand to be leasehold for a remainder of 999 years with a share of the freehold.
Service charge - We understand to be £65 pcm
Local authority - Bristol City Council t 0117 922 2000 or www.bristol.gov.uk
Tax band - Band D - £2,460.32 for 2024/2025
Services - Mins gas, Electricity, water and drainage. Broadband Internet - Ultrafast avliable at 220 Mbps (source Ofcom). Current provider - SKY.
Viewings - Strictly by prior appointment with sole agents Hydes of Bristol

Important Note - IMPORTANT NOTE

Hydes of Bristol and any joint agents give notice that (i) they have no authority to make or give representations or warranties in relation to the property. These particulars do not form part of any offer or contract and must not be relied upon as statements or representations of fact. (ii) Any areas, distances or measurements are approximate. The text, photographs and plans are for guidance only and are not necessarily comprehensive. It should not be assumed that the property has all the necessary planning, building regulations or other consents and Hydes of Bristol have not tested any services, equipment or facilities. Purchasers must satisfy themselves by inspection or otherwise. (iii) In accordance with the consumer protection from unfair trading regulations, please note that the working condition of these services, or kitchen appliances has not been checked by the Agents but at the time of taking particulars we were informed that all were in working order. Please also note that current government legislation demands that as selling agents for this property, Hydes of Bristol require written evidence of the origin/source of finance for funding for any prospective purchaser wishing to purchase this property. This confirmation shall be required prior to the vendor entering into any contract of sale and our instructions from the vendor are to this effect.

Property Ref: 14213_31187238

Share:

Similar Properties

1/3 Oakfield Road, Clifton, Bristol, BS8

2 Bedroom Apartment | Offers in excess of £495,000

A beautifully presented and particularly light two double bedroom hall floor apartment set within this impressive grade...

North Road, Leigh Woods, Bristol, BS8

2 Bedroom Duplex | Guide Price £495,000

A beautifully presented two-bedroom, top floor duplex apartment with stunning views over the Avon Gorge to the west and...

Oldfield Road, Hotwells, Bristol, BS8

2 Bedroom House | Offers in region of £495,000

(Offers are invited between £465,000 and £495,000) A most attractive two bedroom Victorian terraced house situated withi...

Bear Yard Mews, Hotwells, Bristol, BS8

4 Bedroom House | Guide Price £499,500

An attractive 3/4-bedroom, terraced mews house, tucked away in a hidden enclave of Hotwells, with the benefit of two off...

37 Julian Road, Sneyd Park, Bristol, BS9

3 Bedroom Flat | Guide Price £499,950

A particularly light and beautifully presented three double bedroom apartment, set on the second floor of this highly re...

Royal York Crescent, Clifton, Bristol, BS8

2 Bedroom Apartment | Offers in region of £525,000

OFFERS ARE INVITED BETWEEN £525,000 & £575,000. A stunning two bedroom apartment set within a handsome Grade II* listed...

Hydes (Clifton)

28 Princess Victoria Street, Clifton, Bristol, BS8 4BU

0117 9731516

How much is your home worth?

Use our short form to request a valuation of your property.

Request a Valuation

Mortgage Calculator

Amount Borrowed: £
Total Amount Repayable: £
Total Monthly Payment: £
©2025 The Guild of Property Professionals. All rights reserved. Terms and Conditions | Privacy Policy | Cookie Policy | Complaints Policy | Members Login
The Guild of Property Professionals Trading Address: 121 Park Lane, London W1K 7AG. GPEA Limited. Registered in England & Wales.  Company No: 02819824.  Registered Office Address: 2 St. Stephen's Court, St. Stephen's Road, Bournemouth, Dorset, England, BH2 6LA.  VAT Registration No: 576 8795 61
Book a Property Valuation Update Cookies Preferences