Princes Buildings, Clifton, Bristol, BS8

Guide Price
£575,000
SSTC
This property listing is now SSTC

2 Bedroom Flat for sale in Bristol

2 2 2
  • Fabulous Second Floor Apartment
  • Stunning Panoramic Views
  • Beautifully Presented Throughout
  • Desirable Central Clifton Location
  • Large KItchen/Dinning Room
  • Generous Sitting Rooms With Far Reaching Views
  • Two Double Bedrooms - Master With Ensuite
  • Separate Communal Bin Stores And Cycle Storage

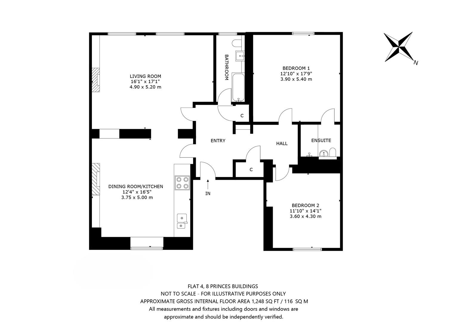
A simply stunning two double bedroom (master with en-suite) second floor apartment, set within the desirable Prince's Buildings offering level access to Clifton Village and boasting breathtaking panoramic views accross Leigh Woods, South Bristol and Beyond.

Summary Of Accommodation - A rare opportunity to purchase a beautifully presented two double bedroom, second floor apartment, in the heart of Clifton village offering a level walk to its many amenities. Set within a handsome Grade II* Listed Georgian town house The property provides stunning outlooks over the Avon Gorge, North Somerset and towards the world-famous Clifton Suspension Bridge. There is a particularly stunning sitting room that opens to a beautifully appointed kitchen/ breakfast room which is bright and light. The master bedroom benefits from an attractive en-suite shower room. The second bedroom is a comfortably proportioned double and is served by a separate main bathroom. The property has the benefit of communal bicyle, rubbish and recylcling storage areas.

Location - Princes Buildings is an address held in extremely high regard situated in the very heart of Clifton. Clifton village itself is very attractive with singularly pleasing architecture. The variety of shops, boutiques and restaurants in Clifton village are within very short walking distance of the subject property, as well as the Clifton Lido for an early morning swim. The vast expanse of Clifton's Downs is within walking distance as are the Observatory and the world-famous Clifton Suspension Bridge designed by Isambard Kingdom which spans the Avon Gorge. Clifton is also particularly well served with schools in both state and private sectors, and Bristol University is within one and a half miles. Bristol is very well facilitated with bus routes. Proximity to the city centre allows easy access to the national motorway network via the M32 and rail links to London Paddington from Temple Meads mainline station.

Useful Information - TENURE: It is understood that the property is leasehold for the remainder of a 999-year lease from 2/10/1984. NB the leaseholders are currently in the process of having the freehold of the property passed on to them, and legal work is underway to achieve this.
SERVICE CHARGES: £2,580 per annum
LOCAL AUTHORITY: Bristol City Council - (0117) 922 2000
COUNCIL TAX BAND: Band E and that the charge for 2025/2026 is £3,158.10
MOBILE PHONE COVERAGE: Good outdoor, variable indoor for Vodafone, O2, EE and Three.
BOADBAND COVERAGE: Ultrafast with up 1,000 Mbps download available.

Important Note - Hydes of Bristol and any joint agents give notice that (i) they have no authority to make or give representations or warranties in relation to the property. These particulars do not form part of any offer or contract and must not be relied upon as statements or representations of fact. (ii) Any areas, distances or measurements are approximate. The text, photographs and plans are for guidance only and are not necessarily comprehensive. It should not be assumed that the property has all the necessary planning, building regulations or other consents and Hydes of Bristol have not tested any services, equipment or facilities. Purchasers must satisfy themselves by inspection or otherwise. (iii) In accordance with the consumer protection from unfair trading regulations, please note that the working condition of these services, or kitchen appliances has not been checked by the Agents but at the time of taking particulars we were informed that all were in working order. Please also note that current government legislation demands that as selling agents for this property, Hydes of Bristol require written evidence of the origin/source of finance for funding for any prospective purchaser wishing to purchase this property. This confirmation shall be required prior to the vendor entering into any contract of sale and our instructions from the vendor are to this effect.

Property Ref: 34087712

Share:

Similar Properties

Manilla Road, Clifton, Bristol, BS8

2 Bedroom Apartment | Guide Price £550,000

OFFERS INVITED BETWEEN £550,000 - £575,000 - A charming raised hall floor apartment with lovely outlooks over Christchur...

Green Lane, Failand, Bristol

3 Bedroom House | Guide Price £550,000

A superbly presented three bedroom house which has been much improved and extended by the current owners to provide a ch...

Lansdown Place, Clifton, BS8

2 Bedroom Flat | Guide Price £550,000

4 Lansdown Place forms part of a handsome grade II* listed terrace (constructed circa 1835), next to the Victoria Square...

Millennium Promenade, Harbourside, Bristol, BS1

3 Bedroom Apartment | Guide Price £585,000

A stunning, light and spacious 3 double bedroom apartment within this recently constructed stylish development, with dir...

Rockleaze, Bristol

2 Bedroom Flat | Guide Price £595,000

An attractive and well presented two bedroom apartment forming the entire ground floor of this impressive period propert...

Canynge Square, Clifton, BS8

2 Bedroom Apartment | Guide Price £595,000

An impressive Hall Floor Apartment set in an attractive Grade II listed townhouse in Clifton's Canynge Square, offering...

Hydes (Clifton)

28 Princess Victoria Street, Clifton, Bristol, BS8 4BU

0117 9731516

How much is your home worth?

Use our short form to request a valuation of your property.

Request a Valuation

Mortgage Calculator

Amount Borrowed: £
Total Amount Repayable: £
Total Monthly Payment: £
©2026 The Guild of Property Professionals. All rights reserved. Terms and Conditions | Privacy Policy | Cookie Policy | Complaints Policy | Members Login
The Guild of Property Professionals Trading Address: 121 Park Lane, London W1K 7AG. GPEA Limited. Registered in England & Wales.  Company No: 02819824.  Registered Office Address: 2 St. Stephen's Court, St. Stephen's Road, Bournemouth, Dorset, England, BH2 6LA.  VAT Registration No: 576 8795 61
Book a Property Valuation Update Cookies Preferences