Cornwallis Avenue, Clifton, Bristol, BS8

Guide Price
£695,000
SSTC
This property listing is now SSTC

4 Bedroom Terraced House for sale in Bristol

2 4 2
  • Superbly presented Victorian Townhouse
  • Quiet, convenient location close to the centre of Clifton Village, Harbourside and Bristol's City centre
  • NO ONWARD CHAIN
  • Attractive raised landscape garden
  • Large loft bedroom with attractive ensuite

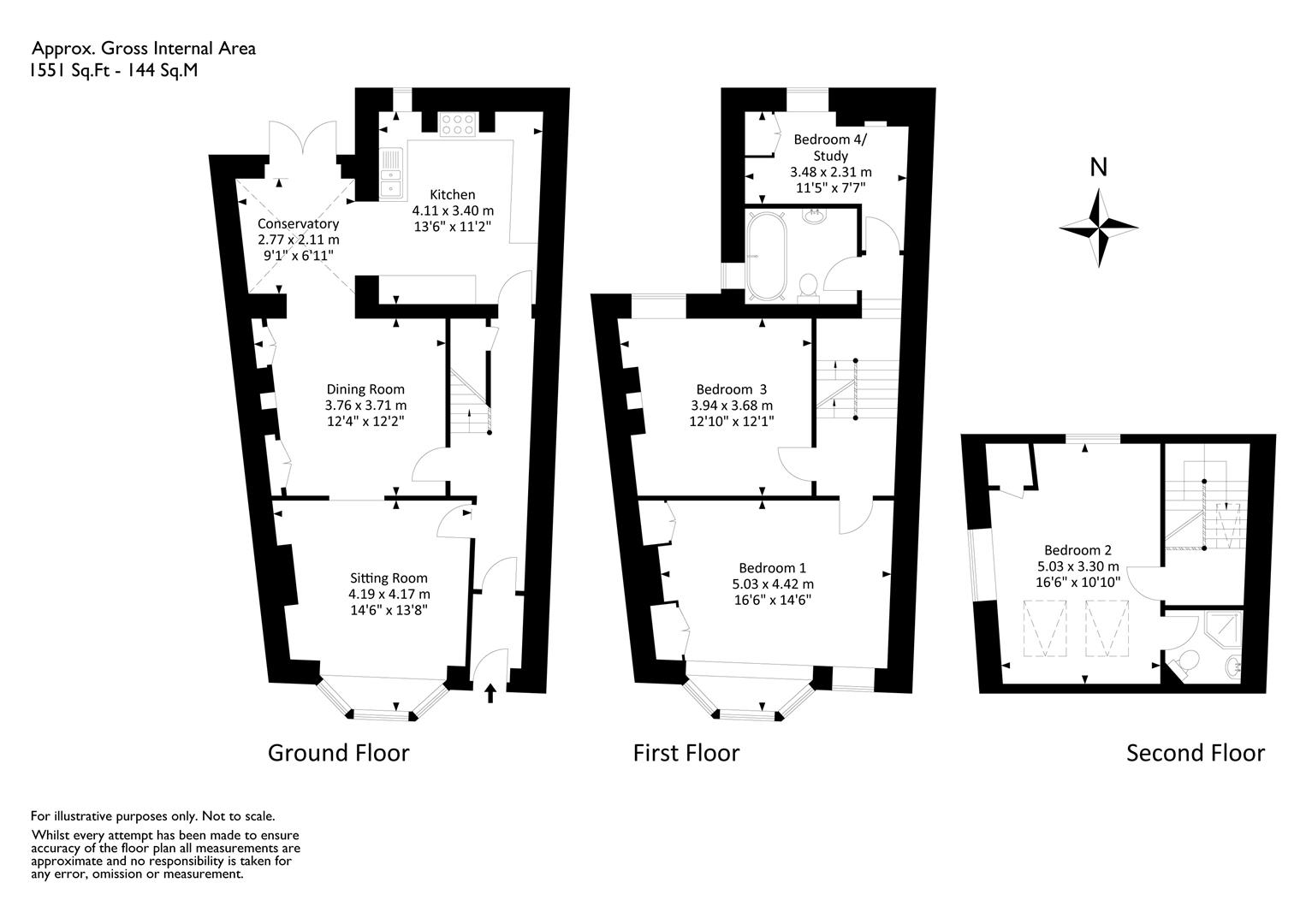
A beautifully presented 4 bedroom Victorian townhouse set in a quiet and convenient location within easy walking distance of the centre of Clifton Village, the Harbourside and the City Centre which is being offered for sale with no onward chain.

Set within a quiet cul de sac close to the Polygon the subject property offers a turn key experience and pleasant, light accommodation over three floors with an attractive landscaped town garden to the rear. The hall floor consists of two well proportioned reception rooms which have been opened up to each other and a conservatory/dining area leading to a beautifully appointed kitchen.

The first floor offers three double bedrooms and a family bathroom and a loft conversion to the top floor provides a further spacious double bedroom with a stunning ensuite shower room.

Outside the property provides the aforementioned raised and sunny landscaped garden to the rear accessed via the conservatory/dining area up a short flight of stone steps. The rear garden has been attractively decked in the main, with raised flower beds to the rear.

Other Information - Tenure - Leasehold for 999 years from 25th March 1956 less 10 days. This should be checked by your legal adviser
Services - All mains services
Local authority - Bristol City Council
Council tax band - E - £2,726.01 per annum
Viewings - Strictly by prior arrangement with sole agents Hydes of Bristol

Location - Cornwallis Avenue is an address held in high regard owing to the uniquely convenient proximity to the centre Clifton Village, the floating harbour, Bristol's city centre and the breath taking example of Georgian architecture including Dowry Square and The Polygon. The variety of shops, boutiques and restaurants in Clifton Village are within half a mile. Several bus routes and harbour ferries provide easy city centre access can be found nearby. Indeed, Bristol's City Centre itself is within only one mile allowing access to the national motorway network via the M32 and rail links to London Paddington from Temple Meads mainline station. World famous, historic sites such as Isambard Kingdom Brunel's SS Great Britain and the world famous suspension bridge spanning the Avon Gorge.

Important Note - Hydes of Bristol and any joint agents give notice that (i) they have no authority to make or give representations or warranties in relation to the property. These particulars do not form part of any offer or contract and must not be relied upon as statements or representations of fact. (ii) Any areas, distances or measurements are approximate. The text, photographs and plans are for guidance only and are not necessarily comprehensive. It should not be assumed that the property has all the necessary planning, building regulations or other consents and Hydes of Bristol have not tested any services, equipment or facilities. Purchasers must satisfy themselves by inspection or otherwise. (iii) In accordance with the consumer protection from unfair trading regulations, please note that the working condition of these services, or kitchen appliances has not been checked by the Agents but at the time of taking particulars we were informed that all were in working order. Please also note that current government legislation demands that as selling agents for this property, Hydes of Bristol require written evidence of the origin/source of finance for funding for any prospective purchaser wishing to purchase this property. This confirmation shall be required prior to the vendor entering into any contract of sale and our instructions from the vendor are to this effect.

Property Ref: 14213_31761227

Share:

Similar Properties

Percival Road, Clifton, Bristol

4 Bedroom Apartment | £695,000

OFFERS INVITED BETWEEN £675,000 and £695,000 Freshly modernised, this generous (Circa 2100sqft) 4 bed maisonette with ve...

Beaufort Mews, Clifton, Bristol, BS8

2 Bedroom House | Guide Price £695,000

An attractive end of terrace modern mews house tucked away in the heart of Clifton Village with the benefits of it's own...

Owen Drive, Failand, Bristol

4 Bedroom Detached House | Guide Price £685,000

A beautifully presented, light and spacious detached family house set in a quiet leafy backwater within the ever popular...

Palmerston Road, Westbury Park, Bristol, BS6

4 Bedroom House | £700,000

BEST AND FINAL OFFERS ARE SOUGHT FOR THIS PROPERTY BY 12 NOON ON MONDAY 25TH OCTOBER 2021. PLEASE CONTACT OUR OFFICE FOR...

Ambra Vale East, Clifton Wood, Bristol, BS8

3 Bedroom Semi-Detached House | Guide Price £725,000

A beautifully presented end of terrace Victorian family home offering the rare opportunity of a double plot, providing p...

Rodney Place, Clifton, Bristol, BS8

3 Bedroom Flat | Guide Price £725,000

A most impressive garden flat forming the entire ground floor of this handsome Grade II Listed Georgian house that is si...

Hydes (Clifton)

28 Princess Victoria Street, Clifton, Bristol, BS8 4BU

0117 9731516

How much is your home worth?

Use our short form to request a valuation of your property.

Request a Valuation

Mortgage Calculator

Amount Borrowed: £
Total Amount Repayable: £
Total Monthly Payment: £
©2026 The Guild of Property Professionals. All rights reserved. Terms and Conditions | Privacy Policy | Cookie Policy | Complaints Policy | Members Login
The Guild of Property Professionals Trading Address: 121 Park Lane, London W1K 7AG. GPEA Limited. Registered in England & Wales.  Company No: 02819824.  Registered Office Address: 2 St. Stephen's Court, St. Stephen's Road, Bournemouth, Dorset, England, BH2 6LA.  VAT Registration No: 576 8795 61
Book a Property Valuation Update Cookies Preferences