Cotham Lawn Road, Cotham, Bristol, BS6

Guide Price
£1,095,000
SSTC
This property listing is now SSTC

4 Bedroom House for sale in Bristol

2 4 2
  • Large Semi Detached Family Home
  • Four Double Bedrooms
  • Further Loft Room With Ensuite
  • Large Principle Reception Room
  • Open Plan Kitchen Dining Room
  • Charming Garden To The Rear
  • Off Street Parking For 2 Cars
  • Single Garage With Power And Light
  • Fabulous Location For Hospitals, University and The BBC

A fabulous family home in a great location, with a charming South West facing walled garden, generous accommodation throughout, four double bedrooms plus a converted loft room, off street parking and Garage.

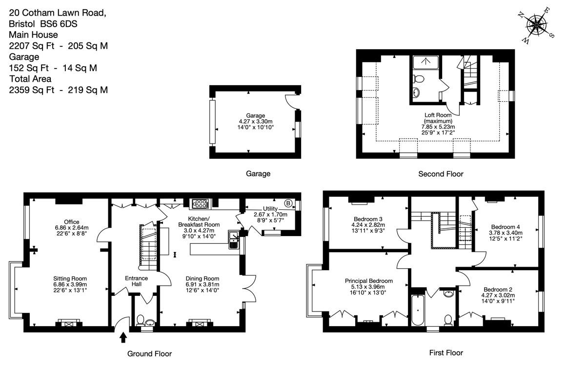
Summary - Number 20, Cotham Lawn Road is an exquisite Edwardian semi-detached 5 Bed family home situated in the heart of Cotham, one of Bristol's most vibrant and desirable locations, and as such benefits from wonderful period features such as cornicing, picture rails, fabulous fireplaces and a beautiful bay window on ground and first floors. The well-presented, generous accommodation is light and bright, and is complemented by a charming walled South facing private garden as well as a detached garage with off street parking.
The property has been in the same ownership for 32 years, which is testament to how desirable and convenient the location is. Originally a four bedroomed property the owners converted the loft in 2000, to create a second floor loft room with extremely versatile accommodation, including a shower room.

Summary Of Accommodation - The front door leads to an entrance vestibule, which in turn leads to the spacious hallway with an attractive staircase ascending to the first floor with carved newel posts, balustrade and handrail. There are doorways to a cloakroom (with a WC and wash basin), the sitting room, kitchen and dining rooms, as well as access to a large under stairs cupboard and numerous further built-in cupboards.

The sitting room boasts a quintessentially Edwardian bay window as well as further sash windows to the front aspect and a fabulous fireplace housing a log burner. The kitchen is a modern fitted kitchen, which also benefits from a wonderful period dresser and offers direct access to the separate Utility room. A breakfast bar creates a comfortable divide between the kitchen and dining area, where there is another fireplace with carved mantle and surround, housing a gas fired stove. Double doors open onto the fabulous garden.

On the first floor, the property enjoys a pleasant landing with doorways to four double bedrooms with charming original cast iron fireplaces, and a nicely presented family bathroom.

In 2000 the owners converted the loft to create a versatile space with the benefit of a shower room with WC and washbasin. This flexible accommodation offers a great opportunity for a variety of uses such as home working, a studio, or a hobby room.

To the front of the property is a landscaped garden with a wealth of mature trees and shrubs, as well as a block paved drive and pathway giving access to both the garage and the front door of the property. In front of the garage the driveway has room to park one car under a pretty tree offering shade.

The back garden of the property is a beautiful walled garden which is landscaped and planted with a wonderful variety of plants and shrubs, that create some quant sitting areas for relaxation and contemplation. This garden is a real attribute of the property, and via the patio doors from the dining room it offers the much sought-after opportunity for genuine "Al Fresco" living.

The property has the added benefit of a single garage, with an up and over garage door to the front, and a door to the garden at the rear. The garage has the benefit of power and light.

Useful Information - Tenure - We understand the property to be Freehold
Local Authority - Bristol City Council
Council Tax Band - E - £2,644.45 per annum for 2021/2022
Services - Mains electricity, gas, drainage, water and broadband

Location - Cotham is a very desirable family area in the heart of Bristol. It is a leafy, affluent suburb that offers convenient access to Whiteladies Road, Gloucester Road, Park Street and the variety of local shops, cafes, bars and restaurants at High Kingsdown. It offers fabulous access to the University, The BBC and both the BRI and St Michaels Hospital. The property is ideally located for Ss Peter and Paul RC Primary School which is Ofsted rated "Outstanding" as well as Cotham School (secondary) which is Ofsted rated "Good."

Bristol has a popular cultural and music scene, catering for all tastes and genres and is famed for its green, open spaces most notably Durdham Downs, with 400 acres of parkland and the neighbouring Ashton Court Estate, across the famous Suspension Bridge which includes mountain bike trails and bridle paths. For those seeking more energetic pastimes, there are golf courses close by and sailing and windsurfing at Baltic Wharf. For the commuter the A4 has a direct link to the commercial centre, and indeed the motorway networks M5 and M4. Bristol Temple Meads train station provides an extensive service to many cities nationwide, and the city's international airport flies connects to many European destinations.

Property Ref: 14213_32085496

Share:

Similar Properties

Parrys Lane, Stoke Bishop, Bristol

4 Bedroom Detached House | POA

An impressive detached family home forming part of Ernest Fry's original Parrys Lane Estate, conveniently located close...

Kingsdown Parade, Kingsdown, Bristol, BS6

6 Bedroom House | Offers in excess of £1,000,000

An exciting opportunity to renovate a grade II listed double fronted late Georgian town house on Kingsdown Parade, with...

Sion Lane, Clifton, Bristol, BS8

3 Bedroom House | Guide Price £1,000,000

OFFERS INVITED BETWEEN £1,000,000 - £1,100,000 This is a rare opportunity to acquire a charming and spacious former coac...

Downleaze, Stoke Bishop, Bristol, BS9

3 Bedroom Duplex | Guide Price £1,100,000

A simply stunning hall and ground floor apartment, with versatile accommodation, fabulous gardens, off street parking an...

Metford Road, Redland, Bristol, BS6

5 Bedroom House | Guide Price £1,100,000

A beautifully appointed, spacious (just shy of 2,000 sq ft) 5 bedroom family home, with off street parking for two cars,...

Westbury Road, Westbury-On-Trym, Bristol, BS9

6 Bedroom Detached House | Guide Price £1,100,000

A CHARMING DETACHED RESIDENCE, ENJOYING A PROMINENT ELEVATED POSITION, AND ENVELOPED BY PLEASANT LEVEL GARDENS. THIS WON...

Hydes (Clifton)

28 Princess Victoria Street, Clifton, Bristol, BS8 4BU

0117 9731516

How much is your home worth?

Use our short form to request a valuation of your property.

Request a Valuation

Mortgage Calculator

Amount Borrowed: £
Total Amount Repayable: £
Total Monthly Payment: £
©2026 The Guild of Property Professionals. All rights reserved. Terms and Conditions | Privacy Policy | Cookie Policy | Complaints Policy | Members Login
The Guild of Property Professionals Trading Address: 121 Park Lane, London W1K 7AG. GPEA Limited. Registered in England & Wales.  Company No: 02819824.  Registered Office Address: 2 St. Stephen's Court, St. Stephen's Road, Bournemouth, Dorset, England, BH2 6LA.  VAT Registration No: 576 8795 61
Book a Property Valuation Update Cookies Preferences