Regents Street, Kingswood

Guide Price
£260,000
SSTC
This property listing is now SSTC

Shop for sale in Bristol

  • Development potential for mixed retail and residential (subject to planning)
  • Long established fish and chip shop & restaurant. Available with vacant possession
  • Scope to develop as lock up shop and self contained living accommodation comprising a number of units (subject to consents)
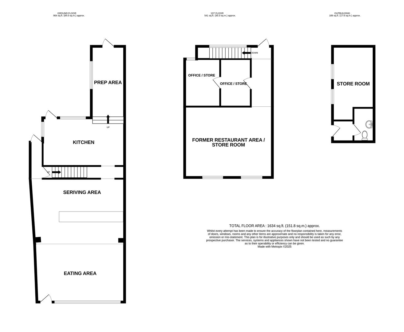
  • Circa 152 sqm (1634 sqft)
  • Servery & dining area
  • Kitchen & preparation area
  • First floor offices/stores & former restaurant/store room area
  • Extensive rear yard
  • Separate store room
  • Huge potential

The property comprises a substantial two storey building situated in a prominent location adjoining the Kingswood Clock Tower which was built in 1897 for Queen Victoria's Diamond Jubilee. The property has been in long term use as a fish and chip shop and restaurant presently trading as Clock Tower Fish Bar and is available at the end of the lease with vacant possession.

The property briefly comprises a ground floor restaurant, servery, kitchen and preparation room with first floor former restaurant space now used as storage and an office. To the rear is a courtyard with covered seating area and an outbuilding with wc and store room and a further yard area beyond the courtyard. In our opinion the property has huge potential for redevelopment (subject to obtaining necessary planning consents). There are a number of alternative uses, perhaps retaining a smaller lock up retail unit, and extension to provide residential accommodation in multiple units.

Regent Street is a popular shopping street in the heart of Kingswood, a suburb of East Bristol which has a range of local and national retailers and is some 3 miles from Bristol City Centre with good public transport links.

In fuller detail the accommodation comprises (all measurements are approximate):

Ground Floor -

Servery Area - 3.99m x 6.23m (13'1" x 20'5") -

Eating Area - 4.04m x 6.38m (13'3" x 20'11" ) -

Kitchen - 5.67m x 3.44m (18'7" x 11'3") -

Prep Area - 4.70m x 2.33m (15'5" x 7'7") -

First Floor -

Former Restaurant Area/Store Room - 5.89m x 4.77m (19'3" x 15'7") -

Office/Store (Divided Into 2 Rooms) Overall - 4.37m x 3.34m (14'4" x 10'11") -

Outside -

Store Room - 4.95m x 2.75m (16'2" x 9'0") -

Wc -

Rear Courtyard & Further Undeveloped Area Beyond -

Tenure - Freehold. The property is subject to a longstanding commercial lease at ?19,000 per annum. This will terminate on the sale of the property and it is offered for sale with vacant possession.

Outgoings - The current Rateable Value is ?14,250.

Planning - There is no recent planning history that we are of. Interested parties are advised to make their own enquiries of the Local Planning Authority as to the current designated use and alternative uses etc.

Energy Performance Certificate - The Energy Rating is 51 C. Certificate Number 0926-0200-6305-1351-0304

Property Ref: 33769440

Share:

Similar Properties

The Willows, Culvers Road, Keynsham, Bristol

2 Bedroom Apartment | £260,000

Enjoying a highly convenient central location within easy reach of an excellent range of shops, amenities and local reta...

Long Fox Manor, Bath Road, Brislington, Bristol

1 Bedroom Apartment | £260,000

Occupying part of the ground floor of an imposing period conversion, this delightful one double bedroom apartment has be...

Old Vicarage Green, Keynsham, Bristol

2 Bedroom Apartment | £250,000

Forming part of the upper floor of a purpose built development, this bright and airy two double bedroom apartment offers...

Dapps Hill, Keynsham, Bristol

2 Bedroom Flat | £265,000

Located on the ground floor of a popular development with views over the communal gardens and the River Chew, this two b...

Lacock Drive, Barrs Court, Bristol

2 Bedroom Terraced House | £265,000

This modern two bedroom terraced house is set in a popular cul de sac close to Asda Supermarket and Gallagher Retail Par...

Bath Road, Keynsham, Bristol

1 Bedroom Apartment | £265,000

Located on the top floor of a period conversion, on the Wellsway side of town and within close proximity to town centre...

Davies & Way (Keynsham)

1 High Street, Keynsham, Bristol, BS31 1DP

0117 9863681

How much is your home worth?

Use our short form to request a valuation of your property.

Request a Valuation

Mortgage Calculator

Amount Borrowed: £
Total Amount Repayable: £
Total Monthly Payment: £
©2026 The Guild of Property Professionals. All rights reserved. Terms and Conditions | Privacy Policy | Cookie Policy | Complaints Policy | Members Login
The Guild of Property Professionals Trading Address: 121 Park Lane, London W1K 7AG. GPEA Limited. Registered in England & Wales.  Company No: 02819824.  Registered Office Address: 2 St. Stephen's Court, St. Stephen's Road, Bournemouth, Dorset, England, BH2 6LA.  VAT Registration No: 576 8795 61
Book a Property Valuation Update Cookies Preferences