Cameley Road, Temple Cloud.

Offers in excess of
£250,000

2 Bedroom Terraced House for sale in Bristol

1 2 1
  • Very well presented character cottage
  • Off street parking space
  • Pretty garden
  • Lovely tucked away location
  • No onward chain
  • Woodburning stove
  • Modern electric radiators
  • Well positioned for access to Bristol, Bath and Wells

Tucked away in a quiet cul-de-sac and enjoying a wonderfully peaceful setting, this charming terraced cottage is bursting with character and personality.

To the front, the property offers the convenience of off street parking leading to a pretty garden, an ideal spot to relax and soak up the sunshine. A quaint metal gate opens into a delightful front courtyard and onwards to the front door.

Inside, a practical enclosed porch welcomes you before opening into a cosy and characterful sitting room, where a wood burning stove creates a lovely focal point and a real sense of home. A further door leads through to a bright, modern kitchen/diner with generous worktop space, perfect for everyday living and entertaining, with access to the rear of the property.

Upstairs, the first floor provides two delightful bedrooms, both full of charm, along with a stylish bathroom fitted with a clean white suite.

This is a fantastic home in a sought-after, tucked away location and is offered to the market with no onward chain and is ready for its next owner to move straight in and enjoy.

Temple Cloud is a small, well-established rural village located in the Chew Valley within the Bath & North East Somerset authority area. Positioned along the A37, the village lies approximately 10 miles south of Bristol and around 8-9 miles south-west of Bath, making it a convenient location for those seeking countryside living with access to nearby cities. The surrounding landscape is characterised by open fields and rolling countryside, with the Mendip Hills Area of Outstanding Natural Beauty close by.

Despite its modest size, Temple Cloud provides a range of everyday amenities that support village life. These include a local convenience store and petrol station for daily essentials, a Post Office, and a GP surgery serving both the village and surrounding area. The Temple Inn, a traditional public house with food and accommodation, acts as a social focal point for residents and visitors alike. Additional small eateries and takeaways add to the local offering.

Education is catered for locally, with Cameley Church of England Primary School serving families in the village and nearby communities. Community life is further supported by a village hall, which hosts events, meetings and activities throughout the year, reinforcing the strong local network.

Temple Cloud is well placed for outdoor recreation, with easy access to countryside walking and cycling routes, the Mendip Hills, and Chew Valley Lake, which offers opportunities for sailing, birdwatching and leisure activities. These surroundings make the village particularly attractive to those who enjoy an active outdoor lifestyle.

Transport connections are a key advantage. Regular bus services operate along the A37, linking Temple Cloud with Bristol, Bath, Wells and Shepton Mallet, while road access is straightforward for commuters and visitors travelling by car.

Overall, Temple Cloud offers a balance of rural tranquillity and practical convenience. It is a village with essential amenities, a strong community spirit and excellent access to both countryside and nearby urban centres, making it an appealing place to live for families, commuters and those seeking a quieter pace of life without isolation.

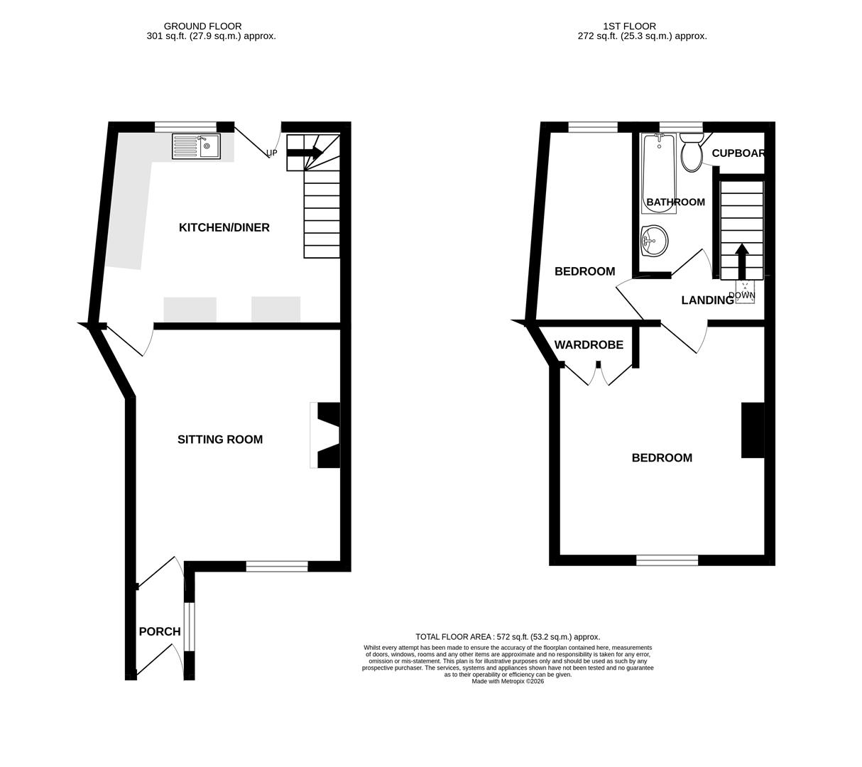
Entrance Porch - 1.43 x 0.96 (4'8" x 3'1") - Entry is via a modern door featuring attractive decorative glass panels, complemented by a double glazed window to the side. Inside, the space showcases a characterful exposed stone wall, adding immediate charm and warmth. Wood flooring continues the inviting feel, while a ceiling light provides practical illumination.

Sitting Room - 3.88 x 3.50 (12'8" x 11'5") - A charming characterful room featuring a double glazed window to the front, allowing natural light to fill the space. The stone chimney with a wood burning stove and tiled hearth creates a cosy focal point, while a modern electric radiator ensures comfort throughout the year.

Kitchen / Dining Room - 3.79 x 3.21 (12'5" x 10'6") - A bright and practical space with a modern edge, featuring a range of wall and base units with cupboards and drawers, complemented by laminate worktops and a tiled splashback. The kitchen includes a stainless steel sink with drainer and mixer tap, vinyl flooring for easy maintenance, and space for an electric cooker. A double glazed door provides access to the rear of the property, while the staircase to the first floor incorporates a clever open area underneath, offering space and plumbing for a washing machine and dishwasher.

First Floor -

Landing - The landing is filled with natural light thanks to a skylight, creating a bright and light space.

Bedroom - 3.84 x 3.47 (12'7" x 11'4") - A charming character bedroom featuring a double glazed window to the front, filling the room with natural light. The space includes two built-in wardrobes, a modern electric radiator and loft access, combining practical storage with period character.

Bedroom - 3.20 x 1.73 max (10'5" x 5'8" max) - Double glazed window with a rear aspect. Electric radiator.

Bathroom - 2.40 x 1.29 (7'10" x 4'2") - A bright and practical bathroom featuring a double glazed frosted window. The room is fitted with a panel bath, pedestal basin and toilet, complemented by an electric heated towel rail. Clever built-in storage cupboards provide practical space, while blue wood effect half height panels and part tiled walls add character and style.

Outside -

Front Garden - A charming outdoor space featuring a garden and patio, perfect for enjoying sunny days. The garden is enclosed with fencing to the sides and rear and includes a walkway leading to a parking space. At the front of the cottage a metal gate opens into a quaint courtyard, providing a welcoming approach to the property and its front door.

Tenure - Freehold.

Council Tax - According to the Valuation Office Agency website, cti.voa.gov.uk the present Council Tax Band for the property is B. Please note that change of ownership is a 'relevant transaction' that can lead to the review of the existing council tax banding assessment.

Additional Information - Local authority. Bath and North East Somerset.
Services. Mains water and drainage. Mains electric.
Mobile phone. EE O2 Three Vodafone. Good outdoor signal. Source Ofcom.
Broadband. Ultrafast 1000 mps. source Ofcom
Property is located with in a coal mining reporting area

Property Ref: 34432743

Share:

Similar Properties

2 Collingwood Close, Saltford, Bristol

Plot | Guide Price £200,000

A great opportunity to purchase a single level building plot in a central desirable location in the village of Saltford,...

Brassmill Lane, Bath

2 Bedroom Retirement Property | Guide Price £172,500

A newly refurbished ground floor retirement apartment in a purpose built developmentThe development benefits from commun...

Brassmill Lane, Bath

2 Bedroom Retirement Property | £150,000

A first floor two bedroom retirement apartment within Meadow Court, a purpose built development comprising 34 apartments...

Redland Park, Bath

3 Bedroom Terraced House | Offers in excess of £264,500

A well-presented terraced home on the outskirts of Twerton.This attractive terraced property is positioned in a delightf...

Dunster Gardens, Willsbridge, Bristol

2 Bedroom End of Terrace House | £265,000

A two-bedroom semi-detached home situated in a sought-after position at the end of a cul-de-sac, offering bright and air...

Hallatrow Road, Paulton, Bristol

3 Bedroom Semi-Detached House | £275,000

Located on Hallatrow Road and set back with a lovely grassed area in front of the property and in the charming village o...

Davies & Way (Saltford)

489 Bath Road, Saltford, Bristol, BS31 3BA

01225 400400

How much is your home worth?

Use our short form to request a valuation of your property.

Request a Valuation

Mortgage Calculator

Amount Borrowed: £
Total Amount Repayable: £
Total Monthly Payment: £
©2026 The Guild of Property Professionals. All rights reserved. Terms and Conditions | Privacy Policy | Cookie Policy | Complaints Policy | Members Login
The Guild of Property Professionals Trading Address: 121 Park Lane, London W1K 7AG. GPEA Limited. Registered in England & Wales.  Company No: 02819824.  Registered Office Address: 2 St. Stephen's Court, St. Stephen's Road, Bournemouth, Dorset, England, BH2 6LA.  VAT Registration No: 576 8795 61
Book a Property Valuation Update Cookies Preferences