Charter Walk, Whitchurch, Bristol

£315,000
SSTC
This property listing is now SSTC

3 Bedroom End of Terrace House for sale in Bristol

3
  • Energy Rating - C
  • Three Bedroom Home
  • NO ONWARD CHAIN
  • Southerly facing Rear Garden
  • Lounge/Diner
  • Light & Airy Throughout
  • Garage
  • Front & Rear Gardens
  • UPVC Double Glazing
  • Close To Local Amenities

Set within a quiet residential spot away from passing traffic, this well-presented NO ONWARD CHAIN end-terrace family home offers an ideal balance of comfort and convenience, all within easy reach of local amenities.

On entering, you're welcomed by a hallway that leads into a spacious lounge/diner - the heart of the home. This bright and versatile room is perfect for both relaxing and entertaining, with French doors opening directly onto the garden to create a seamless connection between indoors and outdoors. Adjacent to this is a light and airy modern kitchen, well-designed with both style and practicality in mind.

Upstairs, the property provides two double bedrooms, including a main bedroom with built-in wardrobes, a well-sized single bedroom, and a family bathroom.

Outside, the home boasts a lawned front garden with mature shrubs, while the southerly facing rear garden enjoys sunshine throughout the day. Low-maintenance and neatly arranged, laid to Astro turf, gravel, and a patio path leading directly to the garage with rear access.

The location is excellent for families and professionals, with schools, nurseries, and bus stops close by. Hengrove Leisure Park, South Bristol Skills Academy, and South Bristol Community Hospital are also just a short walk away.

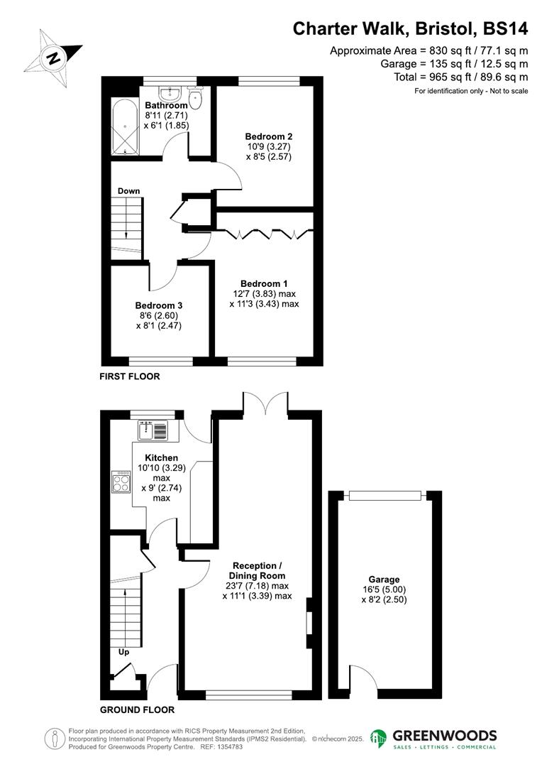
Living/Dining Room - 7.18 max x 3.39 max (23'6" max x 11'1" max) -

Kitchen - 3.29 max x 2.74 max (10'9" max x 8'11" max ) -

Bedroom One - 3.83 x 3.43 (12'6" x 11'3") -

Bedroom Two - 3.27 x 2.57 (10'8" x 8'5") -

Bedroom Three - 2.60 x 2.47 (8'6" x 8'1") -

Bathroom - 2.60 x 2.47 (8'6" x 8'1") -

Garage - 5.00 x 2.50 (16'4" x 8'2") -

Tenure - Freehold -

Council Tax Band - B -

Property Ref: 59927_34197117

Share:

Similar Properties

Loxton Square, Bristol

3 Bedroom Semi-Detached House | £315,000

This semi-detached home offers a fantastic opportunity for a growing family and first time buyers alike. Located only 0....

Cadogan Road, Bristol

3 Bedroom Terraced House | £315,000

A charming 1930s-style, double bay-fronted three-bedroom family home, ideally positioned in the highly sought-after area...

Eastridge Drive, Bristol

3 Bedroom Terraced House | £315,000

This beautifully extended and impeccably maintained three-bedroom terraced home is offered for sale with no onward chain...

Evercreech Road, Bristol

3 Bedroom Semi-Detached House | £317,500

Nestled on Evercreech Road in the vibrant city of Bristol, this charming semi-detached house offers a delightful blend o...

Hill Lawn, Brislington, Bristol

3 Bedroom Terraced House | £320,000

Offered with No Onward Chain!Located in a desirable residential area, this terraced family home presents a fantastic opp...

Isabella Road, Bristol

4 Bedroom End of Terrace House | £320,000

Greenwoods are proud to present this beautifully maintained three-storey end-of-terrace townhouse, offering flexible and...

Greenwoods Property Centre (Knowle)

Wells Road, Knowle, Bristol, BS4 2AG

01179 777 672

How much is your home worth?

Use our short form to request a valuation of your property.

Request a Valuation

Mortgage Calculator

Amount Borrowed: £
Total Amount Repayable: £
Total Monthly Payment: £
©2025 The Guild of Property Professionals. All rights reserved. Terms and Conditions | Privacy Policy | Cookie Policy | Complaints Policy | Members Login
The Guild of Property Professionals Trading Address: 121 Park Lane, London W1K 7AG. GPEA Limited. Registered in England & Wales.  Company No: 02819824.  Registered Office Address: 2 St. Stephen's Court, St. Stephen's Road, Bournemouth, Dorset, England, BH2 6LA.  VAT Registration No: 576 8795 61
Book a Property Valuation Update Cookies Preferences