Ropers Lane, Wrington, Bristol

Offers in excess of
£1,050,000
SSTC
This property listing is now SSTC

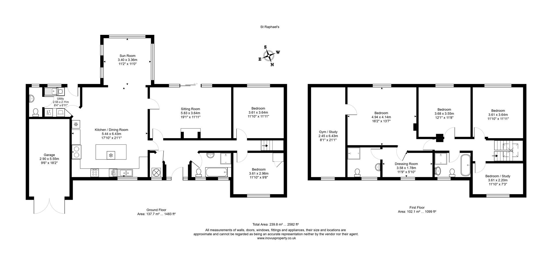
6 Bedroom Detached House for sale in Bristol

4 6 3
  • Six-bedroom home with breathtaking Mendip views
  • High-quality open-plan kitchen, dining, living
  • South-facing patio, garden with views
  • Elevated terrace perfect for outdoor dining
  • Generously proportioned rooms for family living
  • Excellent local amenities and transport links
  • Peaceful retreat with natural light throughout
  • Access to country walks and cycling

St. Raphael's is a substantial six-bedroom family home, beautifully light and spacious, with breathtaking views over the village and out to the Mendip Hills. Designed for both comfort and sociability, the heart of the home is the high-quality open-plan kitchen, dining, and living area, seamlessly connecting to the south-facing patio and private garden. The elevated terrace provides the perfect setting for outdoor dining while soaking in the stunning countryside views.

Description - Inside, the well-balanced accommodation flows effortlessly, with generously proportioned rooms offering versatility for family living, entertaining, and hosting guests. The thoughtfully designed layout includes three well-appointed bathrooms, ensuring both convenience and comfort for a busy household. A full downstairs bathroom suite adds accessibility for elderly visitors and future-proofs the home.
Flooded with natural light throughout the day, St. Raphael's is a true retreat, offering a peaceful setting where birdsong fills the air, and owls take over at night. This is a home that perfectly balances modern comfort, quality finishes, and breathtaking surroundings.

Location - Located in the heart of North Somerset, Wrington is a thriving and welcoming village with a fantastic sense of community. The village hosts a variety of events throughout the year, including the much-loved Christmas fair and the annual wassail, bringing residents together in celebration.
For outdoor enthusiasts, Wrington is perfectly positioned with beautiful country walks right on the doorstep and access to the stunning Mendip Hills. The area also boasts excellent cycling routes through North Somerset and the Chew Valley. Despite its peaceful rural setting, Wrington benefits from excellent transport links, with easy access to Bristol and Bath, rail connections to London from nearby Backwell and Yatton stations, and Bristol Airport just a short drive away.
The village offers a superb range of amenities, including two pubs (one with an excellent restaurant), a church and chapel, a primary school (rated 'Outstanding' by Ofsted), a post office, pharmacy, dentist, coffee shop, grocery shop, off-licence/convenience store, public transport links, a garage, and even two florist/gift shops.
For secondary education, Wrington falls within the catchment for Churchill Academy and Sixth Form Centre, with further excellent state and private schools available in Bristol, Backwell, Wraxall, and the Chew Valley.

Further Information - . Gas Fired central heating (new boiler 2023)
. Mains water and drainage
. Council Tax - Band G
. EPC Rating C
. EV Charging Port
. BT fibre broadband

Property Ref: 230823_33782150

Share:

Similar Properties

The Street, Ubley

4 Bedroom Detached House | Offers in excess of £1,050,000

A beautifully presented 4/5 bedroom family home in the heart of the popular Somerset village of Ubley, within easy dista...

Bellhorse Lane, West Harptree, Bristol

4 Bedroom House | Offers in excess of £1,050,000

Bellhorse Cottage is a beautifully refurbished 17th-century home, extended and reimagined to create a light-filled conte...

Upper Langford, Somerset

5 Bedroom Detached House | Offers in excess of £1,025,000

Swan (Plot 1) 5 bedrooms, 2 reception rooms, 5 bathrooms, 2906 sq ft / 270.0mLacuna Gardens is an exclusive collection o...

Upper Langford, Somerset

5 Bedroom Detached House | £1,075,000

Dragonfly (Plot 2)5 bedrooms, 3 reception rooms, 5 bathrooms, 2522 sq ft / 234.3mLacuna Gardens is an exclusive collecti...

Templars Way, Shipham, Winscombe

5 Bedroom Detached House | Offers in excess of £1,100,000

Occupying an enviable elevated position in the desirable village of Shipham, this exquisite five-bedroom detached family...

Bradford Road, Combe Down, Bath

5 Bedroom Detached House | Offers in excess of £1,175,000

A rare opportunity to own a distinguished double-fronted detached period home in the heart of Combe Down, Bath. Built in...

Peter Greatorex Unique Homes (Bath)

Bath, Somerset, BA1 1HE

01225 471144

How much is your home worth?

Use our short form to request a valuation of your property.

Request a Valuation

Mortgage Calculator

Amount Borrowed: £
Total Amount Repayable: £
Total Monthly Payment: £
©2025 The Guild of Property Professionals. All rights reserved. Terms and Conditions | Privacy Policy | Cookie Policy | Complaints Policy | Members Login
The Guild of Property Professionals Trading Address: 121 Park Lane, London W1K 7AG. GPEA Limited. Registered in England & Wales.  Company No: 02819824.  Registered Office Address: 2 St. Stephen's Court, St. Stephen's Road, Bournemouth, Dorset, England, BH2 6LA.  VAT Registration No: 576 8795 61
Book a Property Valuation Update Cookies Preferences