Belluton, Pensford, Bristol, Bath And North East Somerset, BS39

Offers in region of
£875,000

4 Bedroom Detached House for sale in Bristol

4

A Striking Contemporary Barn Conversion with Panoramic Views
Offered with No Onward Chain.


About the property:

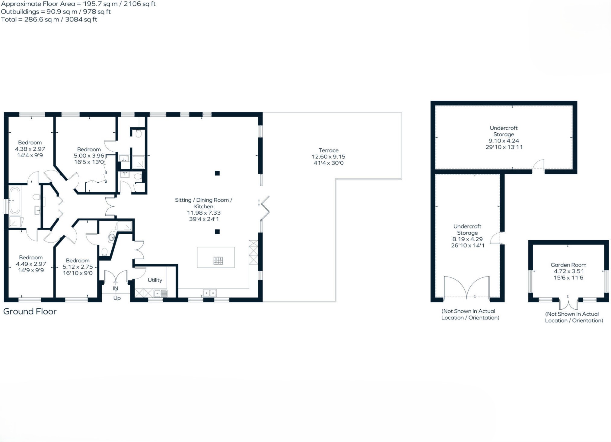
An exceptional detached barn conversion finished to an impressive specification, blending modern luxury with countryside charm. This light-filled home boasts underfloor heating, triple glazing, and an eco-friendly air source heat pump. The expansive open-plan kitchen/living area opens seamlessly onto a large elevated deck with breathtaking rural views perfect for entertaining or quiet relaxation. With four spacious double bedrooms (two en-suite), a beautifully landscaped garden, and a stylish summerhouse/studio, this property offers both elegance and practicality in equal measure.

About the inside:

Expertly crafted with attention to detail throughout, Belluton Barn offers a contemporary layout with a warm and inviting feel. The heart of the home is the vast open-plan living/kitchen space, featuring timber flooring, high ceilings, and tri-fold doors that open directly onto the deck, creating a stunning indoor-outdoor flow.
The sleek modern kitchen is both stylish and functional, enhanced by a separate utility room and spacious entrance hall. The principal suite includes built-in wardrobes and a luxurious en-suite. Two further double bedrooms are linked by a smart Jack and Jill bathroom, while a fourth bedroom enjoys its own en-suite, ideal for guests. A cloakroom and ample storage further add to the home's convenience.

About the outside:

Approached via a sweeping gravel driveway framed by a manicured lawn and hedging, the property offers ample parking and discreet storage beneath the deck. The elevated deck, finished with a contemporary glass balustrade, takes full advantage of the stunning countryside views and sunny aspect. To the side, a private enclosed lawn leads to a timber summerhouse, ideal as a home office or studio.

About the area

The Barn is situated in the rural hamlet of Belluton between Chew Magna and Pensford, some 6.3 miles to Bristol City Centre with road and rail networks providing good access to London, whilst Bath which lies to the east is approximately 12.8 miles away and offers many cultural experiences, plus the nearest train station is in Keynsham 4.8 miles away. For international travel, Bristol Airport has an extensive schedule of flights to many European destinations and is circa 7.3 miles distant. The nearby villages of Chew Magna and Compton Dando meet all the day to day needs with a variety of shops, public houses and schools. Bristol and Bath have a myriad of independent co-education, boys and girls schools in addition to Wells Cathedral and Millfield. There is sailing on the Chew Valley Lake and many excellent countryside walks in the Mendips on the doorstep.

Additional Information

Services: The house is connected to mains water and electricity. Heating is provided by an oil-fired boiler and underfloor heating throughout. Drainage is via a new private septic tank.
Local Authority: Bath & North East Somerset
Council Tax: Band F

Important Information

  • This is a Freehold property.

Property Ref: 456123_CHE190018

Share:

Similar Properties

Bridgwater Road, Dundry, Bristol, Somerset, BS41

6 Bedroom Detached House | Guide Price £875,000

A beautifully presented and versatile six-bedroom detached home with expansive gardens, swimming pool, and countryside v...

Highridge Road, Dundry, Near Bristol, North Somerset, BS41

4 Bedroom Detached House | Offers in region of £850,000

An exciting chance to update and personalise this expansive four-bedroom detached property with a separate two-bedroom a...

Stanton Road, Chew Magna, Bristol, Somerset, BS40

5 Bedroom Semi-Detached House | Guide Price £850,000

Tucked away within an exclusive courtyard development in Chew Magna, this impressive five-bedroom home combines characte...

Wells Road, Hallatrow, Bristol, Somerset, BS39

5 Bedroom Detached House | Offers in region of £900,000

Manor Farm House is a charming period farmhouse with origins dating back to the 1500s, offering historical character whi...

Battle Lane, Chew Magna, Bristol, Bath And North East Somerset, BS40

4 Bedroom Detached House | Offers in region of £925,000

Woodside is a generous four-bedroom detached home set within mature, wood-lined gardens on the outskirts of Chew Magna.

Bristol Road, Whitchurch, Bristol, Somerset, BS14

4 Bedroom Detached House | Offers in region of £965,000

The Old School House is an impressive double-fronted Edwardian residence offering four reception rooms, four double bedr...

Killens LLP (Chew Magna)

Chew Magna, Bristol, BS40 8SH

01275 333993

How much is your home worth?

Use our short form to request a valuation of your property.

Request a Valuation

Mortgage Calculator

Amount Borrowed: £
Total Amount Repayable: £
Total Monthly Payment: £
©2025 The Guild of Property Professionals. All rights reserved. Terms and Conditions | Privacy Policy | Cookie Policy | Complaints Policy | Members Login
The Guild of Property Professionals Trading Address: 121 Park Lane, London W1K 7AG. GPEA Limited. Registered in England & Wales.  Company No: 02819824.  Registered Office Address: 2 St. Stephen's Court, St. Stephen's Road, Bournemouth, Dorset, England, BH2 6LA.  VAT Registration No: 576 8795 61
Book a Property Valuation Update Cookies Preferences