Harley Place, Clifton, Bristol, BS8

Guide Price
£475,000

2 Bedroom Apartment for sale in Bristol

1 2 1
  • Sought after location
  • Short walk from Clifton Village
  • Building recently refurbished
  • Second floor
  • Light and airy apartment
  • TWO COVERED PARKING SPACES
  • STUNNING VIEWS
  • LIFT ACCESS

Harley Court was built in 1963 and comprises just fourteen spacious apartments over seven floors. Situated in a sought after location overlooking Christchurch green it is within a short walk to the fashionable amenities of Clifton village as well as the world famous landmark of Isambard Kingdom Brunel's Suspension Bridge, spanning the Avon Gorge. Very fashionable when built, the building has recently undergone a comprehensive refurbishment to include the installation of new powder coated double glazed windows throughout.

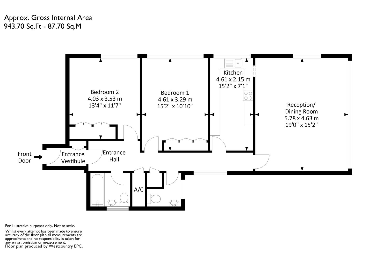
Summary Of Accommodation - Situated on the second floor, this exceptionally light and airy apartment is presented in good decorative order. The apartment is accessed by a passenger lift from the communal entrance hall as well as by a communal stairwell. Furthermore the lift also give access to the lower ground floor and covered parking to the rear.

The front door opens into the entrance hall which includes useful storage cupboards and a shelved airing cupboard. The living room enjoys magnificent and far reaching panoramic views to the rear with large double glazed windows running the full width of the building, ensuring a light and airy feeling throughout. The generously proportioned reception room allows ample room for a dining table and chairs with serving hatch to kitchen. The kitchen is reached off the entrance hall and includes a comprehensive range of modern base and wall units with attractive marble effect laminated work surfaces and splash back tiling surround. A full width window to one end enjoys far reaching views. Kitchen appliances include freestanding Bosch dishwasher, Hotpoint washer/dryer and an Indesit double oven with 4 ring electric hob. Opening for freestanding fridge/freezer, breakfast bar and timber effect laminate floor covering throughout.

Two good size double bedrooms enjoy far reaching views and have built in wardrobes.

The bathroom with picture window includes, panelled bath with separate wall mounted Mira shower unit. W/C and wash hand basin. A separate WC is reached off the entrance hall and includes picture window, wash basin and WC. The apartment further benefits from use of a communal storage room on the lower ground floor.

Externally, the property benefits from a secure off street covered parking space to the rear accessed off neighbouring Emily Place. A pedestrian door with key code provides access from the lower ground floor into the carpark. There is lift access from the carpark to the apartment.

Location - A supremely prized and sought-after location overlooking Christchurch Green and just 200 yards walking distance of Clifton village. Clifton Village offers a variety of shops, boutiques and restaurants as well as several bus routes providing easy city centre access. Indeed, Bristol city centre itself is within only 1.5 miles allowing access to the national motorway network via the M32 and rail links to London Paddington from Temple Meads mainline station. The vast expanse of Clifton's Downs can be found within quarter of a mile as can the historic landmark of Isambard Kingdom Brunel's world-famous Suspension Bridge spanning the Avon Gorge. The area is particularly well served for schooling in both the state and private sectors with Clifton College, Clifton High School and Christchurch Primary being within quarter of a mile of the subject property.

Other Information - TENURE: We understand to be an unexpired 999 year lease from August 1964 which includes a share of the freehold via the residents' management company.
SERVICE CHARGES: It is understood that the current service charge is £2,839.75 per annum representing a 1/15th share. A professional managing agent oversees the upkeep and maintenance of the communal parts of the building. This charge includes buildings insurance and water rates.
LOCAL AUTHORITY: Bristol City Council - (0117) 922 2000 - www.bristol.gov.uk
COUNCIL TAX: We understand the property to be in Band D - currently £2,583.89
VIEWING: Strictly by prior arrangement through Hydes of Bristol
MOBILE COVERAGE: Likely indoor and outdoor
BROADBAND SPEEDS: Download up to 1,800 mbps and up to 220 mbps upload

Important Note - Hydes Of Bristol and any joint agents give notice that (i) they have no authority to make or give representations or warranties in relation to the property. These particulars do not form part of any offer or contract and must not be relied upon as statements or representations of fact. (ii) Any areas, distances or measurements are approximate. The text, photographs and plans are for guidance only and are not necessarily comprehensive. It should not be assumed that the property has all the necessary planning, building regulations or other consents and Hydes Of Bristol have not tested any services, equipment or facilities. Purchasers must satisfy themselves by inspection or otherwise. (iii) In accordance with the consumer protection from unfair trading regulations, please note that the working condition of these services, or kitchen appliances has not been checked by the Agents but at the time of taking particulars we were informed that all were in working order. Please also note that current government legislation demands that as selling agents for this property, Hydes Of Bristol require written evidence of the origin/source of finance for funding for any prospective purchaser wishing to purchase this property. This confirmation shall be required prior to the vendor entering into any contract of sale and our instructions from the vendor are to this effect.

Property Ref: 14213_34025004

Share:

Similar Properties

Canynge Square, Clifton, Bristol, BS8

2 Bedroom Apartment | Guide Price £475,000

A stunning, spacious and particularly light first floor flat offering two generous double bedrooms, set within an attrac...

Church Road, Leigh Woods, Bristol, BS8

3 Bedroom Flat | Guide Price £475,000

Offered for sale in superb condition, with no onward chain, this spacious and bright, top floor three double bedroomed b...

Manilla Road, Bristol

2 Bedroom Apartment | £475,000

A fabulous, versatile garden apartment with off street parking and private garden in the heart of Clifton Village, offer...

Grange Road, Clifton Village, Bristol

2 Bedroom Apartment | Guide Price £495,000

A beautifully presented 2 double bedroom apartment providing level access, situated superbly in a quiet and convenient l...

The Avenue, Clifton, Bristol

3 Bedroom Apartment | Guide Price £495,000

A most delightful and well presented two/three bedroom apartment situated on the third floor of this popular purpose bui...

1 Percival Road, Bristol

2 Bedroom Apartment | Guide Price £495,000

A stunning loft style penthouse with a gorgeous outlook over Clifton College's Newfield and beyond, situated in a superb...

Hydes (Clifton)

28 Princess Victoria Street, Clifton, Bristol, BS8 4BU

0117 9731516

How much is your home worth?

Use our short form to request a valuation of your property.

Request a Valuation

Mortgage Calculator

Amount Borrowed: £
Total Amount Repayable: £
Total Monthly Payment: £
©2025 The Guild of Property Professionals. All rights reserved. Terms and Conditions | Privacy Policy | Cookie Policy | Complaints Policy | Members Login
The Guild of Property Professionals Trading Address: 121 Park Lane, London W1K 7AG. GPEA Limited. Registered in England & Wales.  Company No: 02819824.  Registered Office Address: 2 St. Stephen's Court, St. Stephen's Road, Bournemouth, Dorset, England, BH2 6LA.  VAT Registration No: 576 8795 61
Book a Property Valuation Update Cookies Preferences