Highgate Court, Cheltenham Road

Guide Price
£425,000

2 Bedroom Terraced House for sale in Broadway

2 2 2
  • Short walk from the village centre
  • 2 Bedrooms and 2 bathrooms
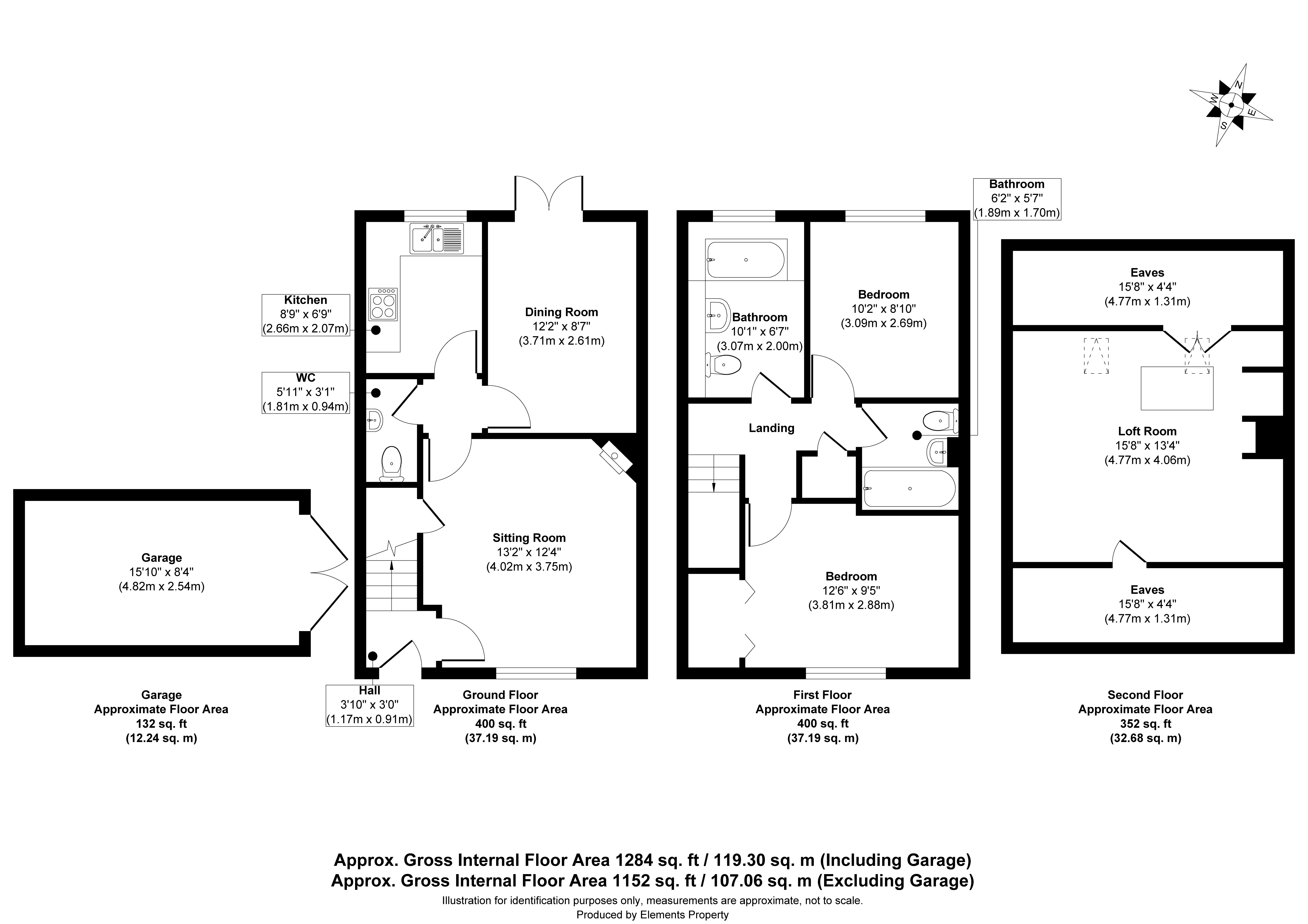
  • Large loft space
  • Private rear garden
  • Garage and parking space
  • No onward chain

Highgate Court is an attractive small development of cottages built in 1994, by Mapson Homes, around a brick paved courtyard situated a short walk from the High Street. No 3 is a delightful 2 bedroom property which has been recently refurbished to a high standard with double glazing throughout. The property offers a low-maintenance, quality home ideal as a main residence, second home, or rental investment.

The bright and well-proportioned accommodation begins with an entrance hall leading to a comfortable sitting room with an understairs cupboard and a log-burning stove, a cloakroom, a contemporary fitted kitchen and a dining room with double doors open directly onto the garden, creating an excellent space for both everyday living and entertaining.

On the first floor are two generous double bedrooms, with the larger one having a fitted wardrobe, and two good sized bathrooms, one with a shower over the bath.

Further benefits include a useful loft room fitted with power and lighting, offering flexible additional space suitable for a variety of uses.

OUTSIDE

To the rear lies an attractive, fully enclosed paved courtyard garden, thoughtfully designed for low-maintenance living and benefiting from private pedestrian rear access. The property is further enhanced by parking and a single en-bloc garage with power and light.

DIRECTIONS

From the High street proceed from the centre of the village towards Evesham and take the first turning left signposted Cheltenham. Highgate Court will be found just a few yards along on the right.

Important Information

  • This is a Freehold property.
  • This Council Tax band for this property is: E
  • EPC Rating is C

Property Ref: BRD260030

Share:

Similar Properties

Farm Court, Main Street

3 Bedroom Terraced House | Guide Price £425,000

An attractive 3 bedroom period stone cottage situated in a courtyard of converted former farm buildingsAccommodation com...

Elm Road

3 Bedroom Detached House | Offers in excess of £400,000

A detached versatile 3 bedroom brick built home, situated on the outskirts of the town, offering a garage, driveway park...

No.5 The Grange, Winchcombe Road

3 Bedroom Semi-Detached House | Asking Price £399,950

ASK US ABOUT INCENTIVES• Show Home Open Friday, Saturday, Sunday, and Monday 10am - 4pm• Appointments Available 7 Days a...

Pamington Lane, Pamington

4 Bedroom Detached House | Guide Price £440,000

A detached contemporary home with thoughtfully landscaped garden, garage and parking. No onward chain.Accommodation comp...

Bidford Road

4 Bedroom End of Terrace House | Offers in excess of £450,000

A 4 bedroom Grade II listed barn conversion set in an exclusive courtyard development centred around a historic 13th cen...

Froglands Lane, Cleeve Prior

2 Bedroom Semi-Detached House | Guide Price £450,000

An exceptionally presented character cottage with modern practicalities, boasting an extensive garden stocked full of ma...

Hayman-Joyce (Broadway)

Broadway, Worcestershire, WR12 7DT

01386858510

How much is your home worth?

Use our short form to request a valuation of your property.

Request a Valuation

Mortgage Calculator

Amount Borrowed: £
Total Amount Repayable: £
Total Monthly Payment: £
©2026 The Guild of Property Professionals. All rights reserved. Terms and Conditions | Privacy Policy | Cookie Policy | Complaints Policy | Members Login
The Guild of Property Professionals Trading Address: 121 Park Lane, London W1K 7AG. GPEA Limited. Registered in England & Wales.  Company No: 02819824.  Registered Office Address: 2 St. Stephen's Court, St. Stephen's Road, Bournemouth, Dorset, England, BH2 6LA.  VAT Registration No: 576 8795 61
Book a Property Valuation Update Cookies Preferences