Barnard Crescent

Offers in excess of
£600,000

3 Bedroom Terraced House for sale in Broadway

1 3 2
  • No onward chain
  • Short walk to the High Street
  • 3 Double Bedrooms
  • Low maintenance garden
  • Car barn and parking

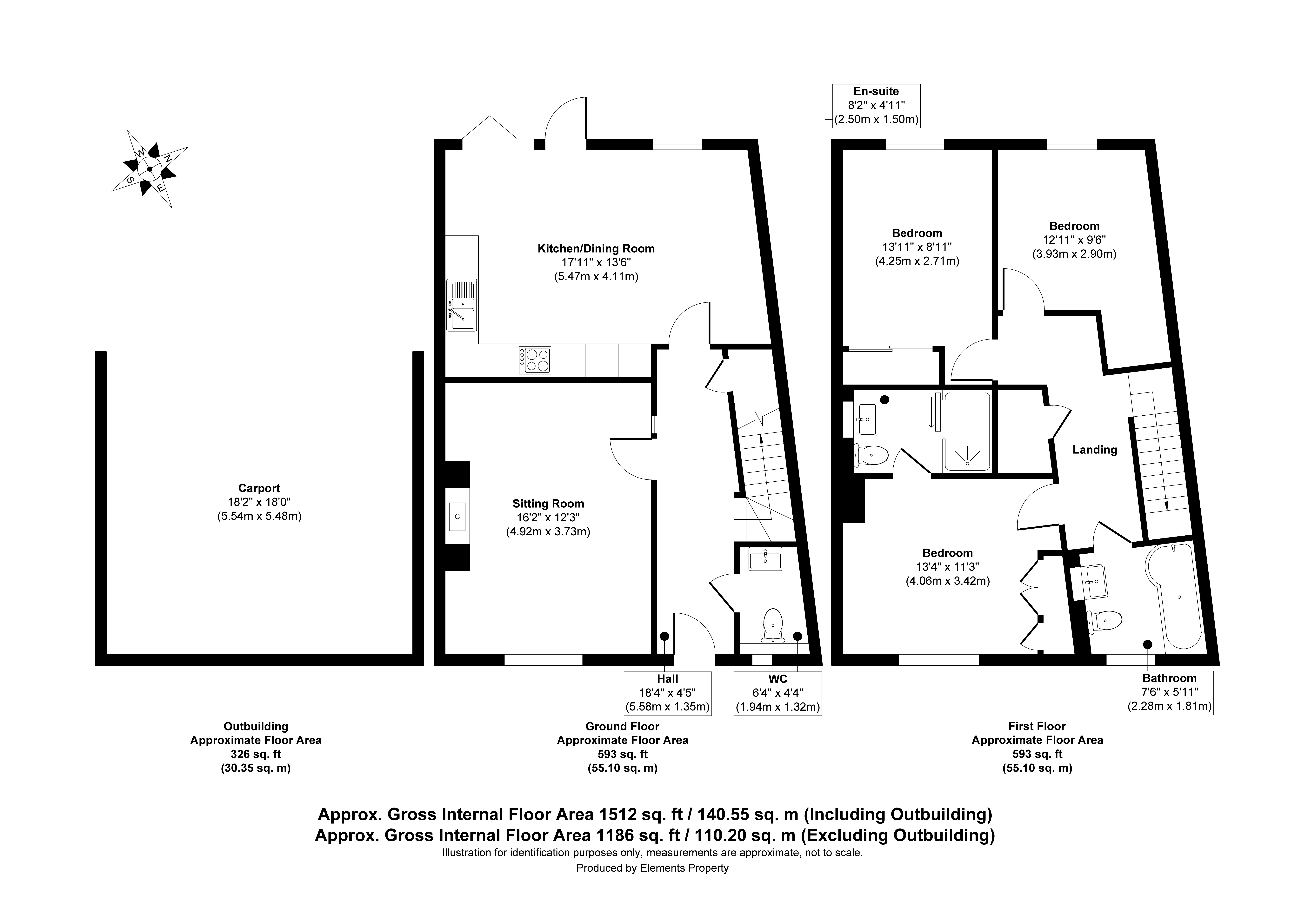
12 Barnard Crescent is a beautifully presented 3-bedroom terraced home, situated on this popular development and within walking distance of the village’s wide variety of fantastic amenities. The accommodation is laid out across two floors, with the ground floor briefly comprising an entrance hall with a cloakroom, and a useful understairs storage cupboard, a sitting room featuring a fireplace housing a wood burning stove, and window shutters, and a contemporary kitchen/dining room with a range of base and wall units, quartz worktops, and integrated appliances to include a fridge/freezer, oven, microwave oven, induction hob, dish washer, and a washing machine. Bi-fold doors open to the well-maintained rear garden. The principal bedroom is located on the first floor and benefits from fitted wardrobes and an en-suite shower room. There are two further double bedrooms, and a family bathroom with a bath and a separate shower.

OUTSIDE

The west facing rear garden is designed for low maintenance, and features a well-manicured lawn, a paved terrace, mature borders, and an outside tap. A timber gate at the bottom of the garden leads to a useful storage shed, and a car barn, with allocated parking for two vehicles.

Important Information

  • This is a Freehold property.
  • This Council Tax band for this property is: F
  • EPC Rating is B

Property Ref: BRD250280

Share:

Similar Properties

14 Blackthorn, Church Road

3 Bedroom Detached House | Asking Price £600,000

A crafted collection of homes in the village of Crowle inspired by the character and heritage of Worcestershire.Design-L...

Evesham Road

4 Bedroom Semi-Detached House | Guide Price £600,000

A spacious 4 bedroom semi-detached home requiring updating and modernisation set in a generous plot of 0.30 acres with m...

12 Blackthorn, Church Road

3 Bedroom Detached House | Asking Price £595,000

ESTATES OFFICE NOW OPEN - BOOK YOUR APPOINTMENT TO VISIT.With its fresh rendered exterior and stylish black window frame...

Penelope Gardens

4 Bedroom Detached House | Guide Price £625,000

A spacious detached 4 bedroom property situated in a peaceful cul-de-sac location in the heart of the villageAccommodati...

Manor Lane

2 Bedroom Detached House | Guide Price £625,000

A charming 2 bedroom barn conversion, tucked away in a quiet courtyard within this peaceful sought after village. Beauti...

No.16 The Grange, Winchcombe Road

4 Bedroom Detached House | Asking Price £639,950

The Beaufort - is a detached family home offering entrance hall, cloakroom, living room, large kitchen/dining/family roo...

Hayman-Joyce (Broadway)

Broadway, Worcestershire, WR12 7DT

01386858510

How much is your home worth?

Use our short form to request a valuation of your property.

Request a Valuation

Mortgage Calculator

Amount Borrowed: £
Total Amount Repayable: £
Total Monthly Payment: £
©2026 The Guild of Property Professionals. All rights reserved. Terms and Conditions | Privacy Policy | Cookie Policy | Complaints Policy | Members Login
The Guild of Property Professionals Trading Address: 121 Park Lane, London W1K 7AG. GPEA Limited. Registered in England & Wales.  Company No: 02819824.  Registered Office Address: 2 St. Stephen's Court, St. Stephen's Road, Bournemouth, Dorset, England, BH2 6LA.  VAT Registration No: 576 8795 61
Book a Property Valuation Update Cookies Preferences