Brookdale Terrace, Dawlish, EX7

£145,000

2 Bedroom Flat for sale in Brookdale Terrace

1 2 1

Situated just a few yards from the beach, this well presented ground floor flat is also superbly located for the town centre and public transport links. The property benefits from it's own private entrance and garden. It offers accommodation comprising; Living Room, Kitchen, 2 Bedrooms, Bathroom. Tenure: Leasehold (share of freehold) Council Tax Band: B. EPC: D

Location: The property is situated in the heart of the town just a few yards from the sea and a host of amenities which include independent shops, pubs and cafes, and excellent bus and rail services.

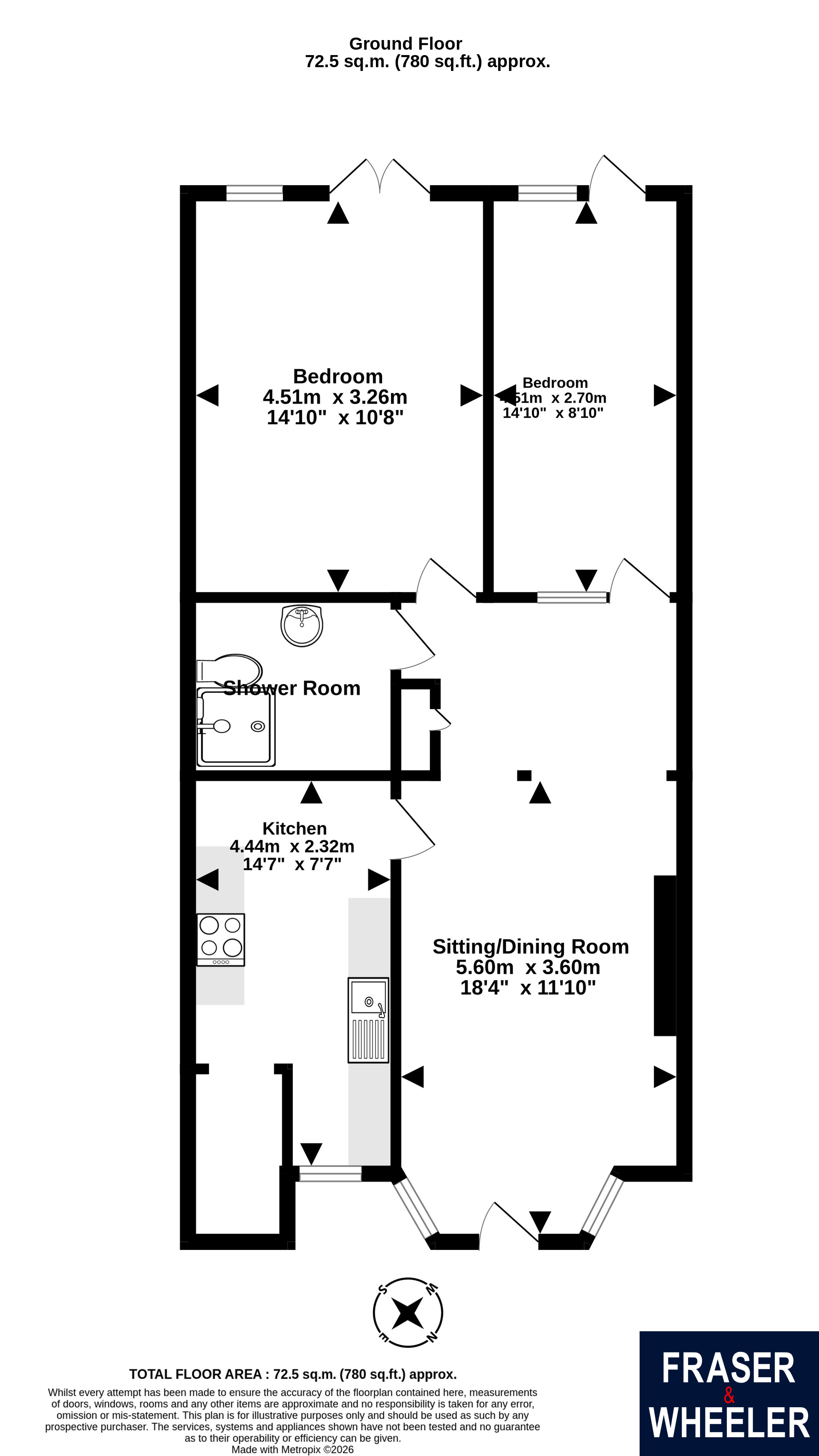
Accommodation: The property offers spacious accommodation with well proportioned rooms fitted with electric heating and uPVC double glazed windows and doors.
It has the benefit of it's own private entrance with a door opening to spacious sitting/dining room. This is the heart of the home with a decorative fireplace providing a focal point, airing cupboard and doors off to the other rooms.
The kitchen is fitted with a range of white fronted cupboard and drawer base and wall units with wood effect worktops and tiled splashbacks. There is space for a washing machine, electric oven and fridge freezer.
At the rear of the property are two double bedrooms both of which open on to the rear garden. The shower room is arranged as a wet room with electric shower.

Outside: To the front of the property is small area of garden and to the rear is a good size, low maintenance garden which is laid togravel with shrub borders.

Tenure: We believe the property is held on a 999 year lease with a quarter share of maintenance as and when work is required. The property also has a quarter share of the freehold.

Measurements

Sitting/Dining Room: 18'4" x 11'10" (5.59m x 3.61m)

Kitchen: 14'7" x 7'7" (4.45m x 2.31m)

Bedroom 1: 14'10" x 10'8" (4.52m x 3.25m)

Bedroom 2: 14'10" x 8'10" (4.52m x 2.69m)

Important Information

  • This is a Leasehold property.

Property Ref: FAW004613

Share:

Similar Properties

Barton Villas, Dawlish, EX7

1 Bedroom Flat | £135,000

A stunning 1 bedroom ground floor apartment situated in a popular location just off the town centre with the advantage o...

Marine Parade, Dawlish, EX7

1 Bedroom Flat | Offers in excess of £120,000

NO ONWARD CHAIN WITH PARKING. A fantastic opportunity to purchase a second floor flat with stunning views out to sea and...

Lee Cliff Park, Dawlish Warren, EX7

2 Bedroom Apartment | £115,000

Situated within close proximity of the beach this first floor flat offers a fabulous location for those looking for a co...

High Street, Dawlish, EX7

1 Bedroom Cottage | £149,950

A 1 bedroom town centre freehold cottage with the advantage of no onward chain, uPVC double glazing and a detached garde...

Albert Cottages, Dawlish, EX7

1 Bedroom Terraced House | £150,000

A mid-terrace cottage located in a tucked-away position in the heart of the town centre. The property briefly comprises...

Devondale Court, Dawlish Warren, EX7

2 Bedroom Flat | £169,950

A fantastic opportunity to purchase this fabulous 2 bedroom second floor apartment situated in Devondale court, just a s...

Fraser & Wheeler (Dawlish) (Dawlish)

Dawlish, Devon, EX7 9HB

01626 862379

How much is your home worth?

Use our short form to request a valuation of your property.

Request a Valuation

Mortgage Calculator

Amount Borrowed: £
Total Amount Repayable: £
Total Monthly Payment: £
©2026 The Guild of Property Professionals. All rights reserved. Terms and Conditions | Privacy Policy | Cookie Policy | Complaints Policy | Members Login
The Guild of Property Professionals Trading Address: 121 Park Lane, London W1K 7AG. GPEA Limited. Registered in England & Wales.  Company No: 02819824.  Registered Office Address: 2 St. Stephen's Court, St. Stephen's Road, Bournemouth, Dorset, England, BH2 6LA.  VAT Registration No: 576 8795 61
Book a Property Valuation Update Cookies Preferences