Lilac Road, Brough

£215,000
SSTC
This property listing is now SSTC

3 Bedroom Semi-Detached House for sale in Brough

3 2
  • Semi Detached Townhouse
  • Side Drive & Garage
  • Well Presented Accom.
  • Convenient Location
  • 3 Beds
  • No Onward Chain
  • Council Tax Band = C
  • Freehold/EPC = C

Attractive semi detached townhouse ready to move straight into. Well presented accom. Great bed 1 suite. Side drive to garage. Popular and convenient locations.

Introduction - This attractive three storey semi detached townhouse affords well presented accommodation and is ready to move straight into as there is no onward chain. The well planned layout features an upper floor dedicated to the master suite complete with bedroom, "walk in" wardrobe/dressing room and shower room. The accommodation is depicted on the attached floorplan which also incorporates a large rear lounge, kitchen, W.C. and upon the middle floor are two further double bedrooms served by a bathroom. There is gas fired central heating to radiators and uPVC double glazing. A side drive provides parking in front of the attached single garage and lawned gardens extend to both front and rear elevations. Early viewing is strongly recommended to appreciate the appeal of this lovely home.

Location - Lilac Road is a residential cul-de-sac situated off Myrtle Way. Brough is a growing community and provides a good range of local shops including a Morrisons supermarket, Post Office, general amenities and a primary school. Secondary schooling is at nearby South Hunsley school. This developing village lies approximately 10 minutes to the west of Hull and is ideal for the commuter having its own mainline railway station and convenient access to the A63 leading into Hull city centre to the east and the national motorway network to the west.

Accommodation - Residential entrance door to:

Entrance Hall - With staircase leading to first floor off. Useful storage cupboard to corner.

Cloaks/W.C. - With low level W.C. and wash hand basin.

Living Room - To the rear of the house with deep bay window and central double doors leading out to the rear garden. Feature fire surround housing an electric fire. Useful understairs cupboard.

Kitchen - Having a range of fitted base and wall mounted units with roll top work surfaces. There is an integrated oven, four ring gas hob, filter hood above, one and a half sink and drainer unit, tiled surround. Space for appliances. Wall mounted Ideal gas fired central heating boiler. Window to front elevation.

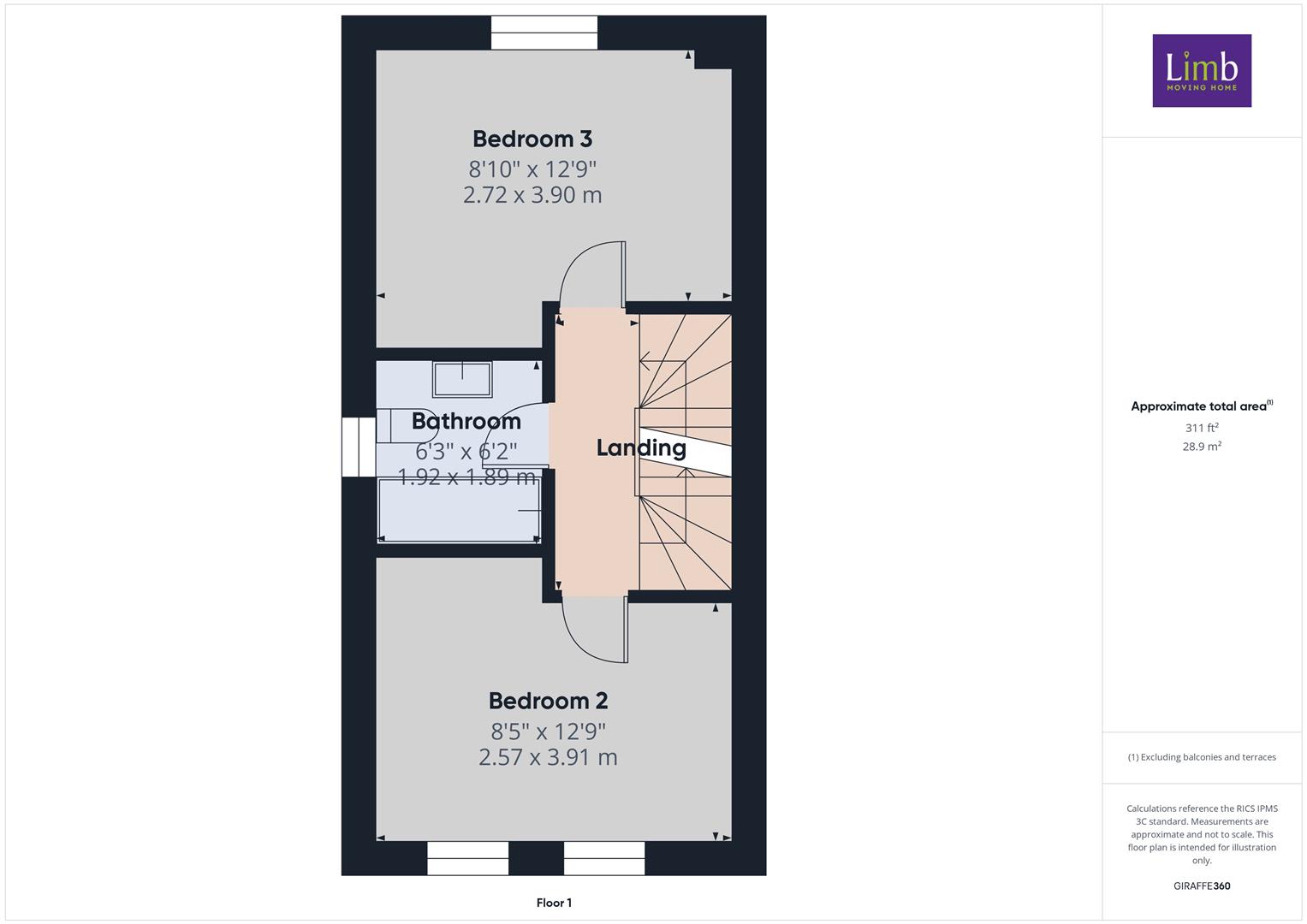
First Floor -

Landing - With further staircase leading up to the second floor.

Bedroom 2 - With two windows to front elevation.

Bedroom 3 - Window to rear elevation.

Bathroom - With suite comprising low level W.C., wash hand basin with cabinet below. bath with shower attachment and screen, tiled surround.

Second Floor -

Landing -

Bedroom 1 - An attractive bedroom with windows to both front and side elevations.

Dressing Room/"Walk In" Wardrobe - With plenty of storage space. Cylinder cupboard situated off.

Shower Room - With shower cubicle, low level W.C., wash hand basin and fitted cabinet.

Outside - To the front of the property lies a lawned garden, side drive and single garage. To the rear lies a paved patio and lawn.

Tenure - Freehold

Council Tax Band - From a verbal enquiry we are led to believe that the Council Tax band for this property is Band C. We would recommend a purchaser make their own enquiries to verify this.

Fixtures & Fittings - Please note those items specifically mentioned in these particulars are to be deemed as being included in the purchase price unless otherwise agreed in writing. Certain other items may be available by separate negotiation as to price. Those items visible in the photographs such as furniture and personal belongings are not included in the sale price.

Viewing - Strictly by appointment through the agent. Brough Office 01482 669982. A prospective viewer should check on the availability of this property prior to viewing.

Agents Note - For clarification, we wish to inform prospective purchasers that we have not carried out a detailed survey, nor tested the services, appliances, plumbing or heating system and specific fittings for this property. All measurements provided are approximate and for guidance purposes only. Floor plans are included as a service to our customers and are intended as a GUIDE TO LAYOUT only, NOT TO SCALE. Limb Estate Agents Ltd for themselves and for the vendors or lessors of this property whose agents they are give notice that (i) the particulars are set out as a general outline only for the guidance of intending purchasers or lessees, and do not constitute any part of an offer or contract (ii) all descriptions, dimensions, references to condition and necessary permissions for use and occupation, and other details are given in good faith and are believed to be correct and any intending purchaser or tenant should not rely on them as statements or representations of fact but must satisfy themselves by inspection or otherwise as to the correctness of each of them (iii) no person in the employment of Limb Estate Agents Ltd has any authority to make or give any representation or warranty whatever in relation to this property. If there is any point which is of particular importance to you, please contact the office and we will be pleased to check the information, particularly if you contemplate travelling some distance to view the property. These particulars are issued on the strict understanding that all negotiations are conducted through Limb Estate Agents Ltd.

Photograph Disclaimer - In order to capture the features of a particular room we will mostly use wide angle lens photography. This will sometimes distort the image slightly and also has the potential to make a room look larger. Please therefore refer also to the room measurements detailed within this brochure.

Property To Sell? - If you have a property to sell we would be delighted to provide a free
o obligation valuation and marketing advice. Call us now on 01482 669982.

Property Ref: 34277128

Share:

Similar Properties

Boothferry Road, Hessle

3 Bedroom Semi-Detached House | £215,000

Modern open-plan living featuring a modern kitchen with island and a lounge with log burner. The south-facing garden is...

Westacre Meadows, Holme Road, Market Weighton

2 Bedroom Town House | £215,000

NEW RELEASE - The PoppyBy Foxglove Homes, stunning cottage style home with fabulous high end spec. Beautiful living kitc...

Westacre Meadows, Holme Road, Market Weighton

2 Bedroom Town House | £215,000

NEW RELEASE By Foxglove Homes, The Poppy is a stunning cottage style home with fabulous high end spec. BI FOLD DOORS, SO...

Hessle Road, Hessle

3 Bedroom Terraced House | £218,000

Attractively appointed traditional bay fronted property. Stylishly modernised and decorated this lovely home briefly com...

Beverley Road, Hessle

3 Bedroom Semi-Detached House | £219,950

Generous semi-detached home in desirable Hessle. Features a long, mature garden (veg patch!) and ample parking/garage. I...

Beverley Road, Hessle

3 Bedroom Semi-Detached House | £219,950

Extended semi-detached with no onward chain! Offers great potential with lounge, dining area, kitchen, three bedrooms an...

Limb Estate Agents (Brough)

Welton Road, Brough, East Riding of Yorkshire, HU15 1AF

01482 669982

How much is your home worth?

Use our short form to request a valuation of your property.

Request a Valuation

Mortgage Calculator

Amount Borrowed: £
Total Amount Repayable: £
Total Monthly Payment: £
©2026 The Guild of Property Professionals. All rights reserved. Terms and Conditions | Privacy Policy | Cookie Policy | Complaints Policy | Members Login
The Guild of Property Professionals Trading Address: 121 Park Lane, London W1K 7AG. GPEA Limited. Registered in England & Wales.  Company No: 02819824.  Registered Office Address: 2 St. Stephen's Court, St. Stephen's Road, Bournemouth, Dorset, England, BH2 6LA.  VAT Registration No: 576 8795 61
Book a Property Valuation Update Cookies Preferences