New Build 240m SW of 5 Pollee Road, Broughshane, BT43 7HS

Offers in region of
£575,000

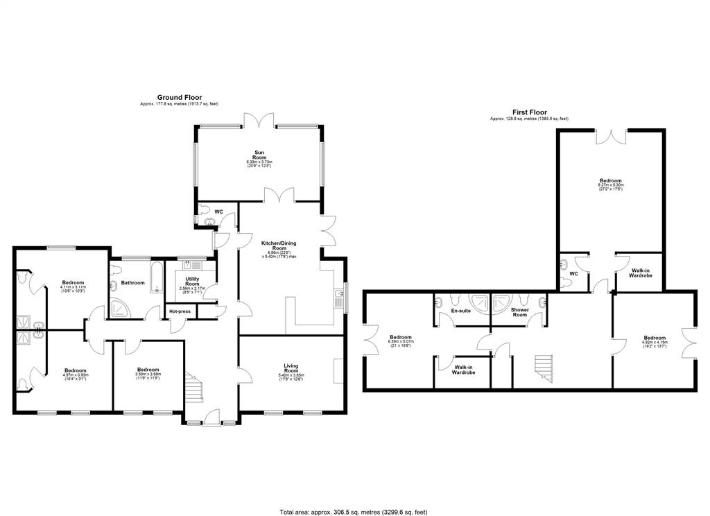
6 Bedroom Detached House for sale in Broughshane

2 6 1
  • New Build detached chalet house
  • Six bedrooms (three on first floor with PVC double glazed doors)
  • Three en-suite shower rooms
  • Two walk-in wardrobes
  • Living room with fireplace
  • Open plan kitchen/dining room
  • Sun room with stunning views over Slemish Mountain
  • Utility room
  • Ground floor WC
  • Ground floor bathroom with 4-piece suite

Homes Independent are excited to introduce 5 Pollee Road, Broughshane — an exceptional new build offering generous accommodation, quality finishes and stunning views of Slemish Mountain. Set on a private 0.75-acre site with a peaceful rural outlook, the property remains just a short drive from Broughshane Village and within easy reach of Ballymena, providing an ideal balance of countryside tranquillity and convenience. Finished to a high standard throughout, this home offers six bedrooms (three on the ground floor), three en-suites, two walk-in wardrobes, two reception areas, an open-plan kitchen/dining space, utility room, ground floor WC, first-floor shower room, family bathroom and underfloor heating to the ground floor — delivering flexible, modern accommodation for family living. Externally, the property sits on extensive grounds that take full advantage of the beautiful rural setting and striking views of Slemish Mountain. At an early construction stage, this superb new build is a rare opportunity in a sought-after location. Contact Homes Independent today to register your interest.

Property Ref: HIBM_HIBM4294

Share:

Similar Properties

Ballee Road East, Ballymena, BT42 3HG

4 Bedroom Detached House | Offers in region of £475,000

Constructed in 2022, this exceptional detached residence blends modern design with practical family living. Located with...

Old Portglenone Road, Ahoghill, BT42 1LQ

4 Bedroom Detached House | Offers in region of £475,000

Homes Independent are excited to introduce 59 Old Portglenone Road, Ahoghill, an exceptional new build that seamlessly c...

Portglenone Road, Randalstown, Ballymena, BT41 3EU

4 Bedroom Detached House | Offers in region of £460,000

Homes Independent are thrilled to list for sale this stunning detached family home constructed in 2021 set back from the...

Slievenaghy Road, Ballymoney, BT53 7EA

4 Bedroom Detached House | Offers in region of £595,000

Homes Independent are thrilled to list for sale this stunning modern detached family home with annex, set on a private s...

New Build Redford Road, Ballymena, BT43 5PR

5 Bedroom Detached House | Asking Price £625,000

This exceptional new build detached residence seamlessly combines generous proportions, high-end finishes and a great lo...

Old Galgorm Road, Ballymena, BT42 1AL

4 Bedroom Detached House | Offers in region of £670,000

Homes Independent are thrilled to present for sale 3a Old Galgorm Road, a stunning detached family home set within one o...

Homes Independent (Ballymena)

Ballymena, Antrim, BT43 5AA

028 2565 11 11

How much is your home worth?

Use our short form to request a valuation of your property.

Request a Valuation

Mortgage Calculator

Amount Borrowed: £
Total Amount Repayable: £
Total Monthly Payment: £
©2026 The Guild of Property Professionals. All rights reserved. Terms and Conditions | Privacy Policy | Cookie Policy | Complaints Policy | Members Login
The Guild of Property Professionals Trading Address: 121 Park Lane, London W1K 7AG. GPEA Limited. Registered in England & Wales.  Company No: 02819824.  Registered Office Address: 2 St. Stephen's Court, St. Stephen's Road, Bournemouth, Dorset, England, BH2 6LA.  VAT Registration No: 576 8795 61
Book a Property Valuation Update Cookies Preferences