Llechrhyd Terrace, Builth Road

Offers Over
£290,000

3 Bedroom Semi-Detached House for sale in Builth Wells

1 3 2
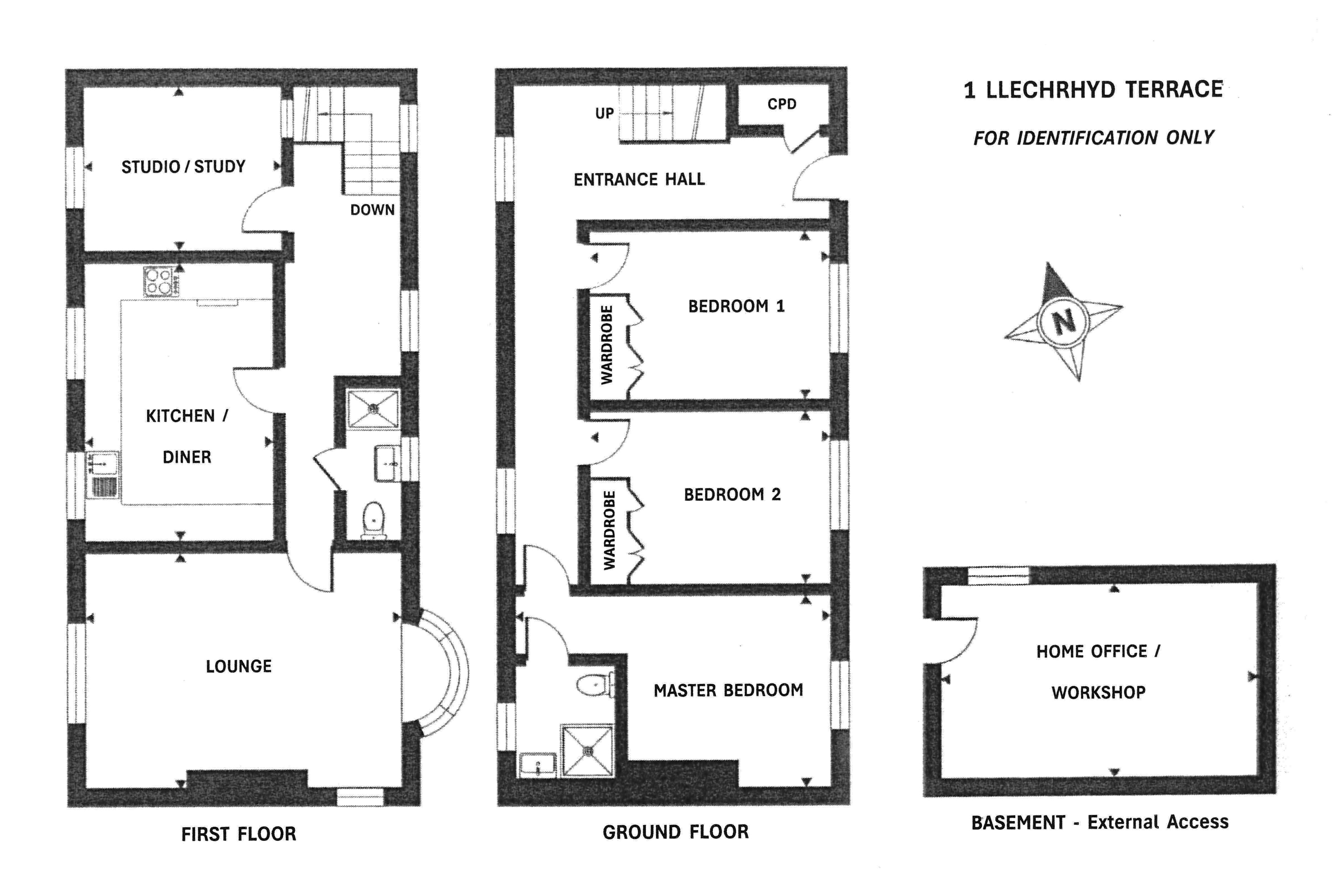
  • 3 Bed Semi-Detached Former Railway Station
  • 2 Bathrooms
  • Kitchen / Diner
  • Basement Home Office / Workshop
  • Large Garden
  • Excellent Views
  • Tenure is Freehold
  • EPC Rating: D
  • Council Tax: Band C

An attractive semi-detached property that was built in 1866 as the “High-Level Station” from brick walls under a slate roof. It was comprehensively refurbished and modernised in 2022 to form a beautiful home with lovely kitchen and shower room suites, PVC double-glazed windows, electric heating, multifuel stove and it briefly provides: - Ground Floor: Entrance Hall, three double Bedrooms (one with en-suite Shower Room), First Floor: Landing Office, Studio / Study, Shower Room, Kitchen / Diner and Lounge. In addition there is parking for two cars, a Basement Office / Workshop and a 0.17-acre of South-facing, sloping gardens incorporating two patio areas, arbour, pergola, flower borders, Tool Bunker and flower meadow. Council Tax - Band C EPC - D ( 55 )

Important Information

  • This is a Freehold property.
  • This Council Tax band for this property is: C
  • EPC Rating is D

Property Ref: MOR250060

Share:

Similar Properties

Ashgrove, Broadway

3 Bedroom Detached House | Offers Over £290,000

A spacious 3-bed detached house, with 3 receptions, garage, parking for 2 cars and hard landscaped gardens, set in a pop...

Gwar Capel, Cefn Gorwydd

4 Bedroom Detached House | Offers Over £290,000

A well appointed, spacious, modern 4-bed, 2-bath detached house with fine views, oil central heating, PVC double-glazing...

Little Hedges, Rock Road

3 Bedroom Detached Bungalow | Offers Over £280,000

A well proportioned 3-bed detached bungalow with beautiful views, oil CH, PVC DG, garage and 1/3 acre gardens that join...

The Gables, Western Promenade

4 Bedroom Detached House | Offers Over £300,000

A most spacious split-level detached property with 4 double bedrooms, 2 receptions, recently fitted kitchen, gas CH, PVC...

Cortay Park, Llanyre

4 Bedroom Detached House | Offers Over £300,000

An attractive 4-bed, 2-bath detached house with 2 receptions, Conservatory, gas CH, PVC DG, garage and mature level gard...

Cartrefle & Cuddfan, Irfon Terrace

Not Specified | Offers Over £300,000

RESIDENTIAL INVESTMENT PROPERTYAn attractive, Victorian end of terrace property, containing 5 good quality fully let fla...

Morgan & Co (Llandrindod Wells)

Temple Street, Llandrindod Wells, Powys, LD1 5DL

01597 825 682

How much is your home worth?

Use our short form to request a valuation of your property.

Request a Valuation

Mortgage Calculator

Amount Borrowed: £
Total Amount Repayable: £
Total Monthly Payment: £
©2026 The Guild of Property Professionals. All rights reserved. Terms and Conditions | Privacy Policy | Cookie Policy | Complaints Policy | Members Login
The Guild of Property Professionals Trading Address: 121 Park Lane, London W1K 7AG. GPEA Limited. Registered in England & Wales.  Company No: 02819824.  Registered Office Address: 2 St. Stephen's Court, St. Stephen's Road, Bournemouth, Dorset, England, BH2 6LA.  VAT Registration No: 576 8795 61
Book a Property Valuation Update Cookies Preferences