Oakwood Close, Builth Wells, LD2

£120,000
SSTC
This property listing is now SSTC

2 Bedroom Apartment for sale in Builth Wells

1 2 1
  • Desirable first-floor two-bedroom apartment located in the sought-after market town of Builth Wells
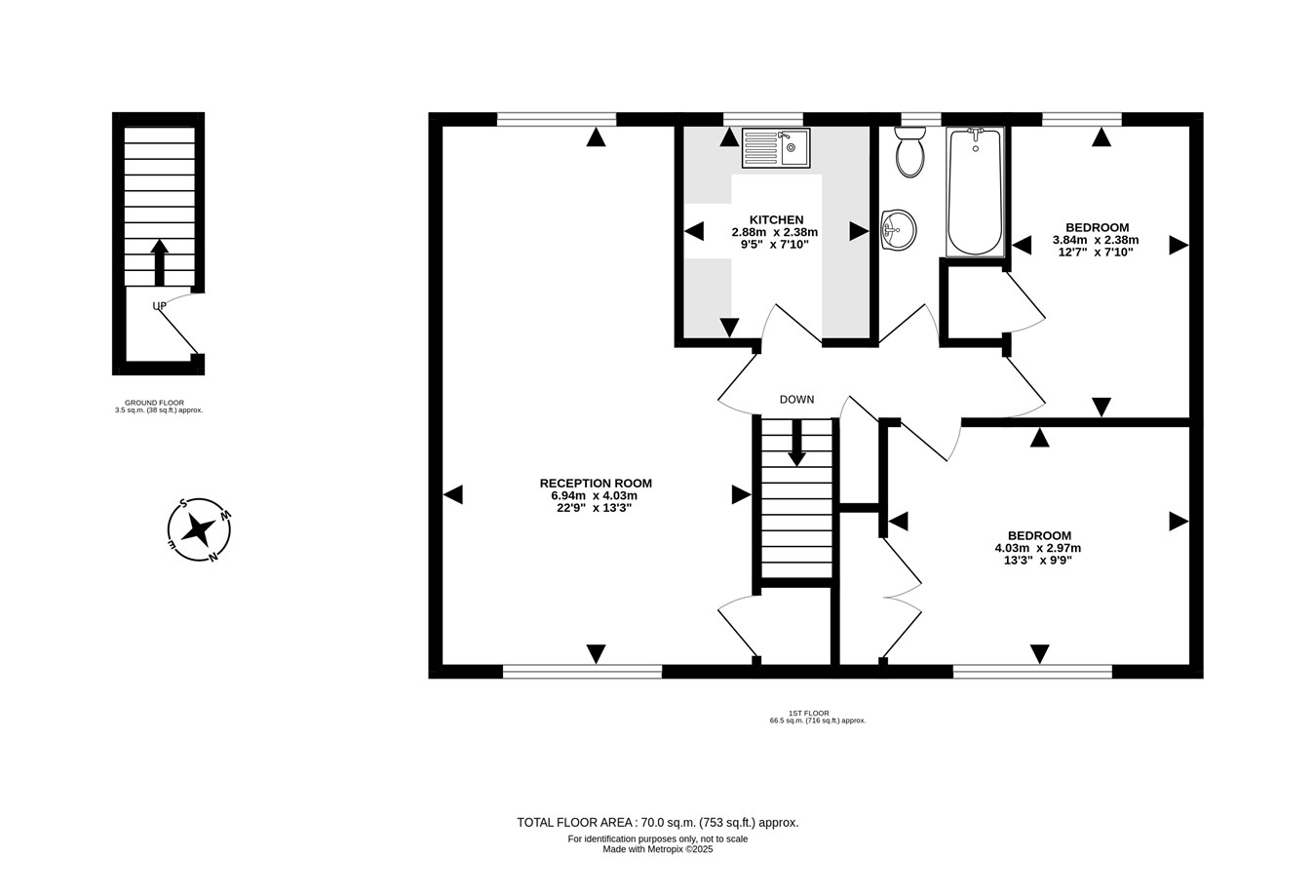
  • Private ground-floor entrance with stairs to a bright landing and useful built-in storage
  • Two well-proportioned double bedrooms, both with built-in storage
  • Spacious front-to-rear reception room offering flexible living and dining space
  • Low-maintenance external areas, including a south-west facing courtyard for drying and a north-east off-road parking area
  • Offered as a freehold apartment, including the freehold reversion of the apartment below
  • Lower apartment held on a 999-year lease from 1985, £1 ground rent, with maintenance costs shared equally
  • Recent improvements: PVC double-glazed windows (2017), new gutters and soffits (2018), and new kitchen units (2020)
  • Council tax band - B (2025-6 £1770.12)
  • Energy performance certificate - C / No onward chain

Situated in the highly desirable town of Builth Wells, this first-floor two-bedroom apartment offers generous accommodation, private access, and appealing potential, all within easy reach of local amenities. Builth Wells – Llanfair-ym-Muallt in Welsh – boasts a rich and fascinating history, having once been an important medieval settlement dominated by Edward I’s 13th-century castle. Today, the town is celebrated for its welcoming community, picturesque riverside walks along the River Wye, and its international profile as host of the Royal Welsh Show, one of the most significant agricultural events in the UK.

The property is approached via a private ground-floor entrance, with stairs rising to a bright first-floor landing incorporating a useful built-in storage cupboard. The accommodation comprises two well-proportioned double bedrooms, both benefiting from built-in storage, and a spacious reception room extending from front to rear, creating a versatile and comfortable living space. Additional storage above the stairwell makes efficient use of space. The kitchen and bathroom are fully functional, with the bathroom fitted with a panelled bath, low-flush WC, and pedestal wash hand basin, while the property as a whole offers scope for light modernisation to suit individual tastes.

The apartment has benefited from several notable improvements in recent years, including new PVC double-glazed windows installed in 2017, replacement gutters and soffits in 2018 (with costs shared equally between Numbers 7 and 8 Oakwood Close), and new kitchen units installed in 2020, enhancing both practicality and presentation.

Externally, the property enjoys low-maintenance outside space, ideal for those seeking convenience rather than upkeep. To the south-west of the building is a small courtyard area, designated for a drying “whirly” clothes line, while to the north-east there is a shared off-road parking area, providing valuable practicality for everyday living.

The property is offered as a freehold apartment, which includes the freehold reversion of the apartment below. The lower apartment is held on a 999-year lease commencing in 1985, subject to a nominal ground rent of £1 per annum. The lease stipulates that all maintenance costs for the building are shared equally between the two apartments, providing clarity and long-term security. This tenure structure, combined with the property’s location, accommodation, and manageable upkeep, makes it an attractive proposition for owner-occupiers and investors alike, within one of Mid Wales’ most sought-after market towns.

Due to the nature of the tenure, whereby the property is held as a freehold apartment, and noting that some mortgage lenders can be cautious when lending on freehold flats, we would strongly recommend that any purchaser requiring mortgage finance makes preliminary enquiries with their chosen lender or broker prior to arranging a viewing, to ensure the property meets their lending criteria.

The property sits just a short distance from the heart of Builth Wells, a lively market town offering an excellent range of amenities including both Primary and Secondary Schools, a cinema, leisure centre and a variety of sports clubs spanning cricket, rugby, football and golf. Builth Wells is also famed for hosting the internationally renowned Royal Welsh Show - the largest agricultural show in Europe - bringing a vibrant atmosphere to the town each year. The area is well connected, with regular bus services running between Cardiff and North Wales, and rail links available from nearby Builth Road Station on the picturesque Heart of Wales Line. Set within the stunning Wye Valley and close to the breathtaking Elan Valley at Rhayader, the town is a haven for walkers and outdoor enthusiasts. Nearby Gigrin Farm adds to the appeal, offering the unforgettable experience of watching the rare and majestic Red Kites feed daily.

Important Information

  • This is a Freehold property.

Property Ref: 29775187

Share:

Similar Properties

Temple Street, Llandrindod Wells, LD1

2 Bedroom Flat | Offers in excess of £95,000

This spacious, top floor, two bed apartment is in a convenient location and would make an ideal first time buy or invest...

Park Terrace, Llandrindod Wells, LD1

2 Bedroom Apartment | £89,950

A spacious Victorian apartment with sweeping views over the famous Rock Park. Blending period heritage with modern comfo...

High Street, Llandrindod Wells, LD1

2 Bedroom Apartment | £88,000

An exceptional opportunity to acquire a stylish and well-presented first floor apartment, perfectly positioned just mome...

Irfon Terrace, Llanwrtyd Wells, LD5

6 Bedroom End of Terrace House | £125,000

A versatile period property in the heart of Llanwrtyd Wells, currently arranged as two self-contained flats. Full of pot...

Parc Y Castell, Builth Wells, LD2

2 Bedroom Terraced House | £125,000

A well-proportioned two-bedroom mid-terrace home, conveniently located within easy walking distance of the centre of Bui...

Riverside, Llanwrtyd Wells, LD5

2 Bedroom Semi-Detached House | Guide Price £130,000

A unique “upside-down” home in picturesque Llanwrtyd Wells - newly renovated, light-filled, and full of charm. Enjoy ope...

James Dean The Estate Agents Builth (Builth Wells)

Builth Wells, Powys, LD2 3AB

01982 552 537

How much is your home worth?

Use our short form to request a valuation of your property.

Request a Valuation

Mortgage Calculator

Amount Borrowed: £
Total Amount Repayable: £
Total Monthly Payment: £
©2026 The Guild of Property Professionals. All rights reserved. Terms and Conditions | Privacy Policy | Cookie Policy | Complaints Policy | Members Login
The Guild of Property Professionals Trading Address: 121 Park Lane, London W1K 7AG. GPEA Limited. Registered in England & Wales.  Company No: 02819824.  Registered Office Address: 2 St. Stephen's Court, St. Stephen's Road, Bournemouth, Dorset, England, BH2 6LA.  VAT Registration No: 576 8795 61
Book a Property Valuation Update Cookies Preferences