High Bank Road, Burton-On-Trent

Offers Over
£185,000
SSTC
This property listing is now SSTC

2 Bedroom Semi-Detached House for sale in Burton-On-Trent

2 2 1
  • Popular Location
  • Entrance Hall
  • Two Reception Rooms
  • Spacious Kitchen & Conservatory
  • Two Double Bedrooms
  • First Floor Bathroom
  • Generously Sized Mature Garden
  • Rear Access to Garage/Potential Parking
  • Close to an Excellent Range of Amenities
  • Close to Nearby Transport Links

A well-positioned, two double bedrooms, bay fronted, semi-detached residence occupying an elevated plot on High Bank Road in Winshill. The property is sold with the benefit of a garage/off-road parking to the rear (accessed from Herbert Street).

The property comprises double glazed accommodation with entrance hall, two reception rooms, good sized fitted kitchen and rear lean-to/conservatory. The first floor landing leads to two double bedrooms and a spacious bathroom.

There is an extensive, well-established, mature garden and the aforementioned rear access to the garage which requires attention.

The Location - The property's location is highly convenient for a full range of amenities in Burton-upon-Trent with a varied selection of shops, leisure pursuits, river side walks, nearby schooling and train station. The property is also convenient for the A38 and A50.

Accommodation -

Ground Floor -

Hallway - 3.91 x 1.77 (12'9" x 5'9") - A UPVC double glazed entrance door provides access to hallway with central heating radiator and panelled staircase to first floor with understairs cupboard.

Lounge - 3.92 x 3.36 (12'10" x 11'0") - With fabulous feature fireplace and tiled hearth, central heating radiator, coving to ceiling, picture rail and box bay window to front.

Sitting Room - 3.97 x 3.75 (13'0" x 12'3") - Having a feature fire surround and fire grate, central heating radiator, coving to ceiling, picture rail and windows to side and rear.

Spacious Kitchen - 5.52 x 2.94 (18'1" x 9'7") - Comprising roll edged preparation surfaces with tiled surrounds, inset stainless steel sink unit with mixer tap, fitted base cupboards and drawers, complementary wall mounted cupboards, inset four plate electric hob, built-in double oven, appliance spaces suitable for fridge freezer, additional fridge or freezer, dishwasher, washing machine and tumble dryer, wall mounted gas fired boiler, two windows to the side and one to the rear and panelled and glazed door to conservatory.

Conservatory - 2.95 x 2.34 (9'8" x 7'8") - A UPVC double glazed construction offering useful additional storage with potential to extend out into the garden subject to necessary planning consents. There is also access to the garden.

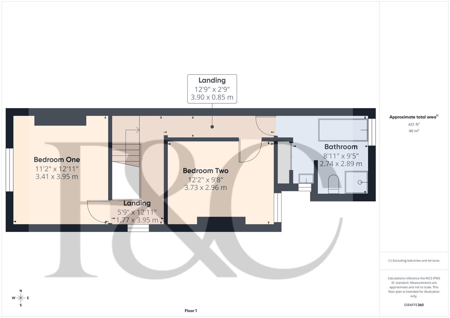
First Floor Landing - 3.95 x 3.90 x 1.77 x 0.85 (12'11" x 12'9" x 5'9" x - A semi-galleried landing with feature balustrade, central heating radiator and window to side.

Bedroom One - 3.95 x 3.41 (12'11" x 11'2") - Having a central heating radiator, feature cast iron fire surround, picture rail and window to front.

Bedroom Two - 3.73 x 2.96 (12'2" x 9'8") - With central heating radiator and window to rear.

Bathroom - 2.89 x 2.74 (9'5" x 8'11") - A period style suite comprising low flush WC, wash handbasin, free standing roll edge bath, separate shower cubicle, central heating radiator, wood panelled walling, airing cupboard and windows to side and rear.

Outside - The property occupies an elevated plot from the pavement beyond steps and a mature fore-garden. There is side access to the property into the rear where there is a lengthy garden with feature patio area and extremely well-stocked flower beds and borders. To the foot of the garden there is hard standing for a garage/shed or alternatively off-road parking if removed.

Council Tax Band B -

Property Ref: 34409193

Share:

Similar Properties

Knowles View, Swadlincote

2 Bedroom Terraced House | Guide Price £185,000

Situated within a quiet cul-de-sac location, this well-presented two bedroom end terrace home offers peaceful surroundin...

Attlee Avenue, Anslow, Burton on Trent

3 Bedroom Town House | Offers in region of £145,000

A 65% shared ownership residence which is a superbly presented, three storey, three bedroom, end townhouse situated on a...

Welland Road, Hilton, Derby

2 Bedroom Flat | Offers Over £130,000

A well-presented third floor apartment occupying a quiet and desirable position, enjoying pleasant views across Hilton R...

Bittern View, Willington, Derby

2 Bedroom Town House | Guide Price £195,000

Nestled in the charming village of Willington, Bittern View presents a superbly presented modern townhouse, perfect for...

Zetland Crescent, Stenson Fields, Derby

2 Bedroom Bungalow | Offers in region of £199,950

A well-positioned, two-bedroom, semi-detached bungalow located in popular Sinfin. The property is sold with the benefit...

The Potlocks, Willington

2 Bedroom Town House | Offers in excess of £210,000

This is a tastefully presented, two-bedroom, mid-townhouse, occupying a quiet cul-de-sac location in the desirable villa...

Fletcher & Company (Willington)

Mercia Marina, Findern Lane, Willington, Derby, DE65 6DW

01283 241500

How much is your home worth?

Use our short form to request a valuation of your property.

Request a Valuation

Mortgage Calculator

Amount Borrowed: £
Total Amount Repayable: £
Total Monthly Payment: £
©2026 The Guild of Property Professionals. All rights reserved. Terms and Conditions | Privacy Policy | Cookie Policy | Complaints Policy | Members Login
The Guild of Property Professionals Trading Address: 121 Park Lane, London W1K 7AG. GPEA Limited. Registered in England & Wales.  Company No: 02819824.  Registered Office Address: 2 St. Stephen's Court, St. Stephen's Road, Bournemouth, Dorset, England, BH2 6LA.  VAT Registration No: 576 8795 61
Book a Property Valuation Update Cookies Preferences