Silverlands, Buxton

£595,000
SSTC
This property listing is now SSTC

6 Bedroom Semi-Detached House for sale in Buxton

2 6 2

Situated in the highly sought-after of Silverlands area of Buxton, this impressive late 1800's semi-detached home offers spacious accommodation across four floors and retains a number of attractive period features.

The property boast six generously sized double bedrooms and two bathrooms, making it an ideal choice for growing families or those seeking flexible living space. The well-proportioned rooms throughout create a real sense of space and comfort.

Two reception rooms provide excellent areas for both relaxing and entertaining, with a layout that flows easily and enhances the home's welcoming feel. The Lounge is particularly impressive in size and benefits from a desirable south-facing aspect.

Well-presented throughout, this substantial property combines character with practicality, offering versatile accommodation to suit a variety of needs.

Directions - From our Buxton office turn left and proceed through the traffic lights up Terrace Road to the Market Place. Turn first left into Market Street and immediate left into Hardwick Square South. Follow the road and after a short while the road flows into Silverpark. Proceed ahead and number 15 will be seen on the left hand side.

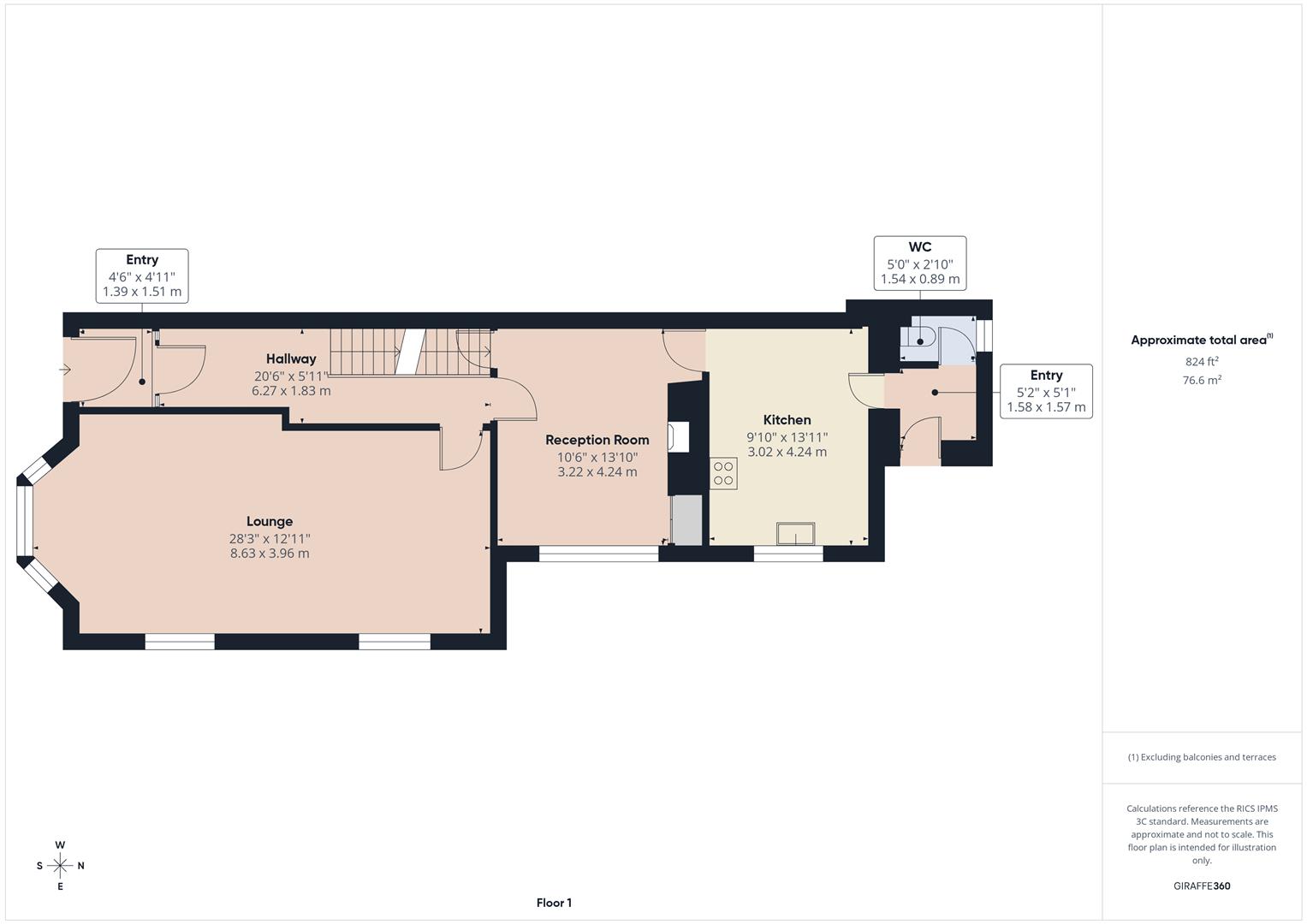
Ground Floor - Large entrance door with decorative glass panels to entrance porch.

Entrance Porch - 1.50m x 1.37m (4'11" x 4'6") - Vinyl wood effect flooring. Glass panelled door.

Entrance Hallway - 6.25m x 1.80m (20'6 x 5'11") - Cornicing to ceiling. Radiator. Wood effect vinyl flooring. Stairs to first floor.

Lounge - 8.61m x 3.94m (28'3 x 12'11") - Sash bay to window to front. Two double glazed windows to side. Cornice to ceiling. Skirting. Original wooden floorboards. Feature fireplace with marble insert and hearth.

Reception Room - 4.22m x 3.20m (13'10" x 10'6") - Two sash windows to side. Radiator. Original built in storage cupboards to recess. Feature Victorian Fireplace with tiled hearth and surround. Door to cellar and door to kitchen.

Cellar - 3.78m x 3.73m and 4.24m x 3.20m (12'5" x 12'3" and - Two rooms currently used for storage with exposed stone walls and floor. Power and light connected.

Kitchen - 4.24m x 3.00m (13'11 x 9'10") - Range of base and eye level units. Integrated dishwasher and washing machine. Worksurfaces with electric induction hob and extractor over. Built in double oven. One and a half bowl stainless steel sink unit. Breakfast bar. Window to side. Spot lighting. Karndean tiled effect flooring. Door to rear porch.

Rear Porch - 1.57m x 1.55m (5'2" x 5'1") - Storage cupboards. Karndean tiled effect flooring. Sliding door to W.C.

W.C - 1.52m x 0.86m (5'0" x 2'10") - Low level W.C. Window to rear. Karndean flooring.

First Floor -

Landing - 4.57m x 4.29m and 5.36m x 0.91m (15'15" x 14'1" an - Split level landing with radiator stairs to second floor. Sash window to front.

W.C - 1.60m x 0.91m (5'3" x 3'0") - High level cistern. Tiling to walls. Window to rear.

Bathroom - 3.00m x 2.49m (9'10" x 8'2") - Double glazed window to side. Panel enclosed bath. Pedestal wash basin. Radiator. Tiling to walls. Vinyl tiled effect flooring. Storage cupboard housing combination boiler with shelving.

Bedroom One - 307.85m x 3.18m (1010" x 10'5") - Bay window to front and window to side. Wooden flooring. Radiator. Range of built in over bed storage cupboards.

Bedroom Two - 3.96m x 3.30m (13'0" x 10'10") - Double glazed window to side. Radiator. Built in wardrobes.

Bedroom Three - 3.30m x 3.18m (10'10 x 10'5") - Double glazed window to side. Cast iron feature fireplace. Radiator.

Second Floor -

Landing - 4.37m x 0.91m (14'4" x 3'0") - Split level landing with window to front. Radiator

Bathroom Two - 3.35m x 3.00m (11'0" x 9'10") - Window to rear with far reaching views of Buxton and surrounding rolling countryside. Low level W.C . Pedestal wash basin. Clawfoot roll top bath. Separate double shower enclosure. Eaves cupboard housing combination boiler. Towel rail and radiator. Karndean flooring.

Bedroom Four - 4.24m x 3.91m (13'11" x 12'10") - Sash window to side. Cast iron fireplace. Radiator.

Bedroom Five - 3.96m x 3.73m (13'0" x 12'3") - Sash window to side. Cast iron feature fireplace. Radiator.

Bedroom Six / Office - 3.33m x 3.20m (10'11" x 10'6") - Double glazed window to side. Radiator.

Outside - Gate with pathway to entrance door. Lawned area with flower and shrub borders enclosed by mature trees and hedging. Double wooden gates to side.

Garden - Patio area. Storage shed. Gate to rear leading to access road with potential to make off road parking. Lawned area with flower borders to the side of the house enclosed by fencing.

Property Ref: 34576923

Share:

Similar Properties

Green Lane, Buxton

4 Bedroom Detached House | Guide Price £595,000

Situated in the highly desirable Green Lane, this delightful detached house offers a perfect blend of comfort and style....

Hall Bank, Buxton

5 Bedroom Terraced House | £595,000

Constructed in 1795 this superb Grade II listed character property is fabulously located in central Buxton overlooking T...

Robertson Road, Buxton

4 Bedroom Semi-Detached House | £575,000

Situated in the highly desirable Robertson Road in Buxton, this charming four-storey semi-detached period home beautiful...

Hardwick Square South, Buxton

6 Bedroom End of Terrace House | £599,950

Centrally situated for the town centre and it's many amenities, we are delighted to offer for sale a substantial six bed...

The Park Apartments, Broad Walk, Buxton

2 Bedroom Flat | £600,000

A most impressive first floor apartment in this recently converted development known as The Park. Presented to the highe...

Temple Road, Buxton

4 Bedroom Town House | £615,000

We are delighted to be able to offer for sale this exclusive and unique development of luxury apartments, town houses an...

Mellors Estate Agents (Buxton)

1 Grove Parade, Buxton, Derbyshire, SK17 6AJ

01298 24383

How much is your home worth?

Use our short form to request a valuation of your property.

Request a Valuation

Mortgage Calculator

Amount Borrowed: £
Total Amount Repayable: £
Total Monthly Payment: £
©2026 The Guild of Property Professionals. All rights reserved. Terms and Conditions | Privacy Policy | Cookie Policy | Complaints Policy | Members Login
The Guild of Property Professionals Trading Address: 121 Park Lane, London W1K 7AG. GPEA Limited. Registered in England & Wales.  Company No: 02819824.  Registered Office Address: 2 St. Stephen's Court, St. Stephen's Road, Bournemouth, Dorset, England, BH2 6LA.  VAT Registration No: 576 8795 61
Book a Property Valuation Update Cookies Preferences