Bluebell View, Llanbradach, Caerphilly

£165,000
SSTC
This property listing is now SSTC

2 Bedroom Coach House for sale in Caerphilly

1 2 1
  • FREEHOLD TWO BEDROOM COACH-HOUSE & GARAGE
  • LOCATED ON THE BLUE BLUEBELL VIEW ESTATE IN LLANBRADACH
  • GOOD ROAD LINKS TO THE A470
  • OPEN PLAN LOUNGE/KITCHEN
  • BATHROOM
  • ENTRANCE HALL
  • GARAGE
  • PATIO GARDEN TO THE REAR, ACCESS FROM THE GARAGE
  • EPC RATING C/COUNCIL TAX BAND C
  • NO ONWARD CHAIN

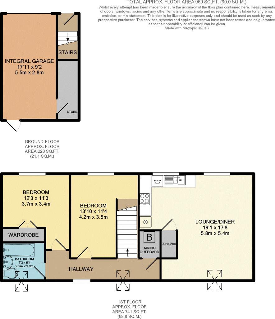
**NICELY PRESENTED TWO BEDROOM COACH HOUSE** Located in the village of Llanbradach on the sought after Bluebell View estate. Good road links to Ystrad Mynach & the A470 commuting to Cardiff. The property benefits from:- Entrance hall, stairs leading to the coach house. Spacious open plan lounge/kitchen, Two bedrooms, fitted wardrobes to the master bedroom, bathroom. Landing area with airing cupboard. Gas central heating & double glazing. Garage with door access to the coach house and garden, The flat is freehold, there are additional garages underneath the coach house these are lease hold on a 999 year lease (no money passes). EPC RATING C. COUNCIL TAX BAND C. **NO ONWARD CHAIN**

Entrance Hall - Via double glazed door to entrance hall. Laminate flooring, radiator, stairs to the first floor. Door access to the garage.

Landing - Upvc double glazed window to the rear. Double glazed sky light window to the rear. Airing cupboard housing Baxi gas central heating boiler.

Open Plan Lounge/Kitchen - 5.36m x 5.82m (l shape) (17'7" x 19'1" (l shape)) - Two Upvc double glazed windows to the front. Double glazed sky light window to the rear. Two radiator's. Open plan to the kitchen. Fitted wall and base units. roll over preparation surface with 1.5 sink drainer, tiled splash back, integrated electric oven with inset gas hob, overhead extractor fan, Plumbing and space for automatic washing machine, space for fridge freezer. Spot lighting to the kitchen area. Laminate flooring.

Bedroom One - 3.73m x 3.43m (12'3 x 11'3) - Upvc double glazed window to the front. Radiator, fitted wardrobes with ample hanging space and shelving. Fitted carpet.

Bedroom Two - 4.22m x 4.37m (l shape) (13'10 x 14'4 (l shape)) - Upvc double glazed window to the front. Radiator, fitted carpet.

Bathroom - 2.21m x 1.93m (7'3 x 6'4) - Double glazed sky light window to the rear. Panelled bath, mains shower, glass shower screen, pedestal wash hand basin. low level W.C. Tiled splash back, extractor fan. Chrome heated towel rail.

Garage - 5.46m x 2.82m (17'11 x 9'3) - Up and over door. Double glazed door giving access to the rear garden, door access to the entrance hall.

Garden To The Rear - Fenced boundaries. Paved patio garden.

No Onward Chain -

Property Ref: 34397497

Share:

Similar Properties

Trapwell, Rudry, Caerphilly

2 Bedroom Flat | £165,000

**TWO DOUBLE BEDROOM GROUND FLOOR FLAT** Rarely available for sale in a sought after area. Good road links to A470 and N...

Trapwell, Rudry, Caerphilly

2 Bedroom Flat | £165,000

**TWO DOUBLE BEDROOM FIRST FLOOR FLAT** Rarely available for sale in a sought after area. Good road links to A470 and Ne...

Lon Yr Odyn, Caerphilly

2 Bedroom Terraced House | £165,000

**NICELY PRESENTED TWO BEDROOM END OF TERRACE HOUSE** Within walking distance to Caerphilly Town and the Historic Caerph...

Energlyn Terrace, Caerphilly

3 Bedroom Terraced House | Offers in region of £170,000

**THREE BEDROOM MID TERRACED HOUSE WITH IN WALKING DISTANCE TO CAERPHILLY TOWN CENTRE** Good road links to the A470, wal...

Grove Street, Llanbradach, Caerphilly

3 Bedroom Terraced House | Offers in region of £170,000

**THREE BEDROOM MID TERRACE HOUSE** Located in the village of Llanbradach, walking distance to the shops and train stati...

Craig Ysguthan., Llanbradach, Caerphilly

2 Bedroom Terraced House | £170,000

**NICELY PRESENTED EXTENDED TWO BEDROOM MID TERRACE HOUSE** Good road links to the A470 commuting to Cardiff. Located on...

Aktons Estate Agents (Caerphilly)

Caerphilly, Wales, CF83 1NX

02920 881 441

How much is your home worth?

Use our short form to request a valuation of your property.

Request a Valuation

Mortgage Calculator

Amount Borrowed: £
Total Amount Repayable: £
Total Monthly Payment: £
©2026 The Guild of Property Professionals. All rights reserved. Terms and Conditions | Privacy Policy | Cookie Policy | Complaints Policy | Members Login
The Guild of Property Professionals Trading Address: 121 Park Lane, London W1K 7AG. GPEA Limited. Registered in England & Wales.  Company No: 02819824.  Registered Office Address: 2 St. Stephen's Court, St. Stephen's Road, Bournemouth, Dorset, England, BH2 6LA.  VAT Registration No: 576 8795 61
Book a Property Valuation Update Cookies Preferences