Blenheim Avenue, Magor, NP26

£525,000
SSTC
This property listing is now SSTC

4 Bedroom Detached House for sale in Caldicot

2 4 3

Number One Agent, Dee Corp is delighted to offer this four bedroom, detached property for sale in Magor.

This beautifully presented home in Magor offers a welcoming community atmosphere with charming shops and local pubs nearby. Its convenient location features excellent road and rail links to Bristol and London, with Severn Tunnel Junction train station just a ten-minute drive away. Transport for Wales are currently consulting on the designs for a new Magor train station which would be a 10 minute walk from the property.

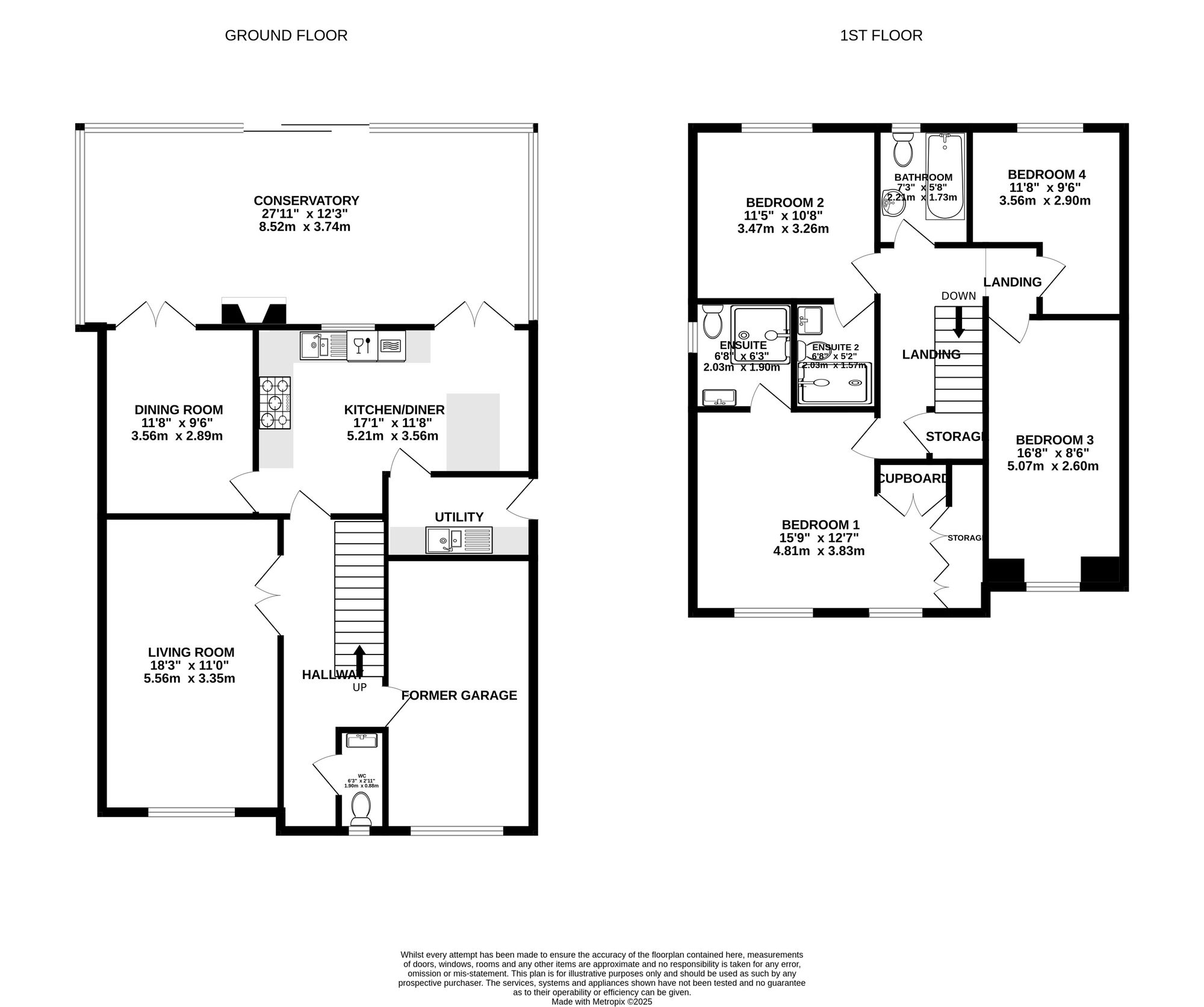
Upon entering, you’re greeted by a spacious hallway. To the left is a generous living room accessible via double doors, and to the right, the former garage. At the rear, the kitchen/diner boasts navy shaker-style units and integrated appliances, including a Neff oven, microwave, dishwasher, wine cooler, and a Neff five-ring gas hob with a separate utility room. A breakfast bar seats five, while the adjacent dining room is perfect for entertaining. Both spaces lead to an impressive conservatory with a log burner and sliding doors opening to a fully enclosed garden home to two sheds and featuring a patio and lawn. The property also includes a driveway with ample parking and an electric car charging pod, along with a convenient WC in the hallway.

Upstairs, the landing leads to four double bedrooms. The principal bedroom enjoys abundant natural light from two windows and extensive fitted wardrobes. Both the principal and second bedrooms feature modern en-suite shower rooms, with a family bathroom accessible from the landing.

The property also benefits from a new front door and plastic soffits installed in 2017.

Agents note: The property has been altered (conservatory and garage conversion) for which building regulation or approval documents have not been made available. We would inform interested parties to rely on their own inspections, searches and surveys before committing to any transactional decision.

Measurements: 
Living Room: 3.3m x 5.5m 
Dining Room: 2.8m x 3.5m 
Kitchen/Diner: 5.2m x 3.5m 
Utility: 2.7m x 1.5m 
Conservatory: 8.5m x 3.7m
WC: 0.8m x 1.9m 
Bedroom 1: 4.8m x 3.8m
Ensuite: 1.9m x 2.0m
Bedroom 2: 3.4m x 3.2m 
Ensuite 2: 1.5m x 2.0m 
Bedroom 3: 2.6m x 5.0m 
Bedroom 4: 2.9m x 3.5m 

Bathroom: 2.21m x 1.73m 

Council Tax Band F

All services and mains water are connected to the property.

Please contact Number One Real Estate for more information or to arrange a viewing.

Energy Efficiency Current: 70.0
Energy Efficiency Potential: 78.0

Important Information

  • This is a Freehold property.
  • This Council Tax band for this property is: F

Property Ref: 613cd15c-7c3b-446d-9e24-05cde576833e

Share:

Similar Properties

Pentre Lane, Llantarnam, NP44

5 Bedroom Detached House | Guide Price £525,000

* GUIDE PRICE £525,000 - £550,000 * FIVE BEDROOMS * SPACIOUS LIVING ROOM * DINING ROOM * WELL APPOINTED KITCHEN * MASTER...

Penrhiw Lane, Machen, CF83

4 Bedroom Detached House | Guide Price £525,000

GUIDE PRICE £525,000 - £550,000**IMMACULATELY PRESENTED**DETACHED FAMILY HOME**FOUR DOUBLE BEDROOMS**THREE BATHROOMS**OP...

Rossers Field, Govilon, NP7

4 Bedroom Detached House | £519,995

BRAND NEW DETACHED HOME**FOUR DOUBLE BEDROOMS WITH PRIMARY EN-SUITE**LIVING ROOM**OPEN PLAN KITCHEN/DINER**CLOAKROOM**EN...

Llandevaud, Newport, NP18

3 Bedroom Detached House | £535,000

* DETACHED BUNGALOW * 3 BEDROOMS * FABULOUS KITCHEN * BREAKFAST BAR + DINING ROOM * UTILITY ROOM * LARGE DECK + REAR GAR...

Pentre Lane, Llantarnam, NP44

3 Bedroom Detached House | Guide Price £540,000

*GUIDE PRICE £540,000 - £560,000*BEAUTIFULLY PRESENTED*EXECUTIVE DETACHED PROPERTY*THREE BEDROOMS*THREE RECEPTION ROOMS*...

Station Road, Llanwern, NP18

4 Bedroom Semi-Detached House | Guide Price £550,000

*GUIDE PRICE £550,000 - £575,000*BEAUTIFULLY PRESENTED*SPACIOUS SEMI-DETACHED*FOUR DOUBLE BEDROOMS*TWO EN-SUITE & FAMILY...

Number One Real Estate (Newport)

Newport, Monmouthshire, NP20 4AQ

01633 492777

How much is your home worth?

Use our short form to request a valuation of your property.

Request a Valuation

Mortgage Calculator

Amount Borrowed: £
Total Amount Repayable: £
Total Monthly Payment: £
©2025 The Guild of Property Professionals. All rights reserved. Terms and Conditions | Privacy Policy | Cookie Policy | Complaints Policy | Members Login
The Guild of Property Professionals Trading Address: 121 Park Lane, London W1K 7AG. GPEA Limited. Registered in England & Wales.  Company No: 02819824.  Registered Office Address: 2 St. Stephen's Court, St. Stephen's Road, Bournemouth, Dorset, England, BH2 6LA.  VAT Registration No: 576 8795 61
Book a Property Valuation Update Cookies Preferences