North End, Calne

Asking Price
£150,000

Not Specified for sale in Calne

  • Approved Planning With Conditions
  • Two One Bedroom Apartments
  • Open Plan Living
  • Bedroom With Fitted Wardrobes
  • Private Gardens
  • Allocated Parking
  • EV Charging Points
  • Walking Distance To The Town And Surrounding Amenities.

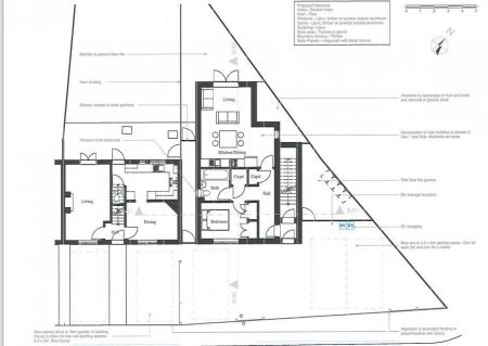
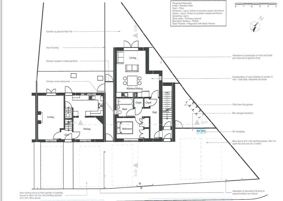
A building plot with approved planning permission with conditions for two new one bedroom apartments. These properties will offer open plan living dining kitchen, one double bedroom, allocated parking and a private garden for each property. There will be a double bedroom with two double built in wardrobes, a bathroom and ample storage. In the ground floor apartment the open plan living dining kitchen has patio doors out to the rear garden, the first floor apartment having it own garden to the side of the properties. The plot also includes allocated parking for both the properties, EV Charging points and solar panels. Application number PL/2025/04025



LOCATION The plot is placed within level walking distance of the town centre and local surrounding amenities.



AREAS CLOSE BY
The town of Calne is surrounded by some of the most beautiful countryside Wiltshire has to offer. There are also local historic sites Avebury, Bowood House and the surrounding towns include Marlborough, Devizes with the Caen Hill Locks and canal, Chippenham and Royal Wootten Bassett both providing easy access to the M4.



ADJACENT HOME
The plot was formally part of the neighbouring semi detached property.



If you have any questions or require further information do please get in touch.

Important Information

  • This is a Freehold property.

Property Ref: EAXML9783_12796022

Share:

Similar Properties

Horsebrook, Calne

1 Bedroom Ground Floor Apartment | Asking Price £142,000

This exceptional and beautifully presented ground floor apartment is situated within a lovely riverside setting and is s...

Penn Court, Calne

1 Bedroom Ground Floor Apartment | Asking Price £140,000

CHAIN FREE! A beautifully presented one bedroom ground floor retirement apartment designed to specifically meet the need...

Penn Court, Calne

1 Bedroom Apartment | Asking Price £140,000

This superb retirement apartment is situated on the first floor of this purpose built development and benefits from grea...

Charlotte Court, Calne

2 Bedroom Apartment | Asking Price £155,000

***CHAIN FREE!***MOTIVATED SELLER***TWO DOUBLE BEDROOMS*** This light, spacious two bedroom maisonette is situated close...

London Road, Calne

2 Bedroom Cottage | Asking Price £169,995

Take a look at the VIRTUAL TOUR available! CHAIN FREE . A quirky mid-terrace character Victorian cottage with an abundan...

Campion Close, Calne

2 Bedroom House | Offers Over £170,000

CHAIN FREE! **GARDEN**PARKING**A delightful two bedroom freehold maisonette situated at the end of a cul de sac which ha...

Charles Faye (Calne)

Calne, Wiltshire, SN11 0BS

01249 822555

How much is your home worth?

Use our short form to request a valuation of your property.

Request a Valuation

Mortgage Calculator

Amount Borrowed: £
Total Amount Repayable: £
Total Monthly Payment: £
©2025 The Guild of Property Professionals. All rights reserved. Terms and Conditions | Privacy Policy | Cookie Policy | Complaints Policy | Members Login
The Guild of Property Professionals Trading Address: 121 Park Lane, London W1K 7AG. GPEA Limited. Registered in England & Wales.  Company No: 02819824.  Registered Office Address: 2 St. Stephen's Court, St. Stephen's Road, Bournemouth, Dorset, England, BH2 6LA.  VAT Registration No: 576 8795 61
Book a Property Valuation Update Cookies Preferences