Buckhurst Road, Frimley Green

£525,000
SSTC
This property listing is now SSTC

3 Bedroom Semi-Detached House for sale in Camberley

3 3
  • Beautifully Renovated & Extended
  • Stunning Open Plan Kitchen Living Area
  • Sunny Rear Garden
  • Walking Distance Shops, Pubs & Schools
  • Village Location
  • Three Bathrooms
  • En suite to Master Bedroom

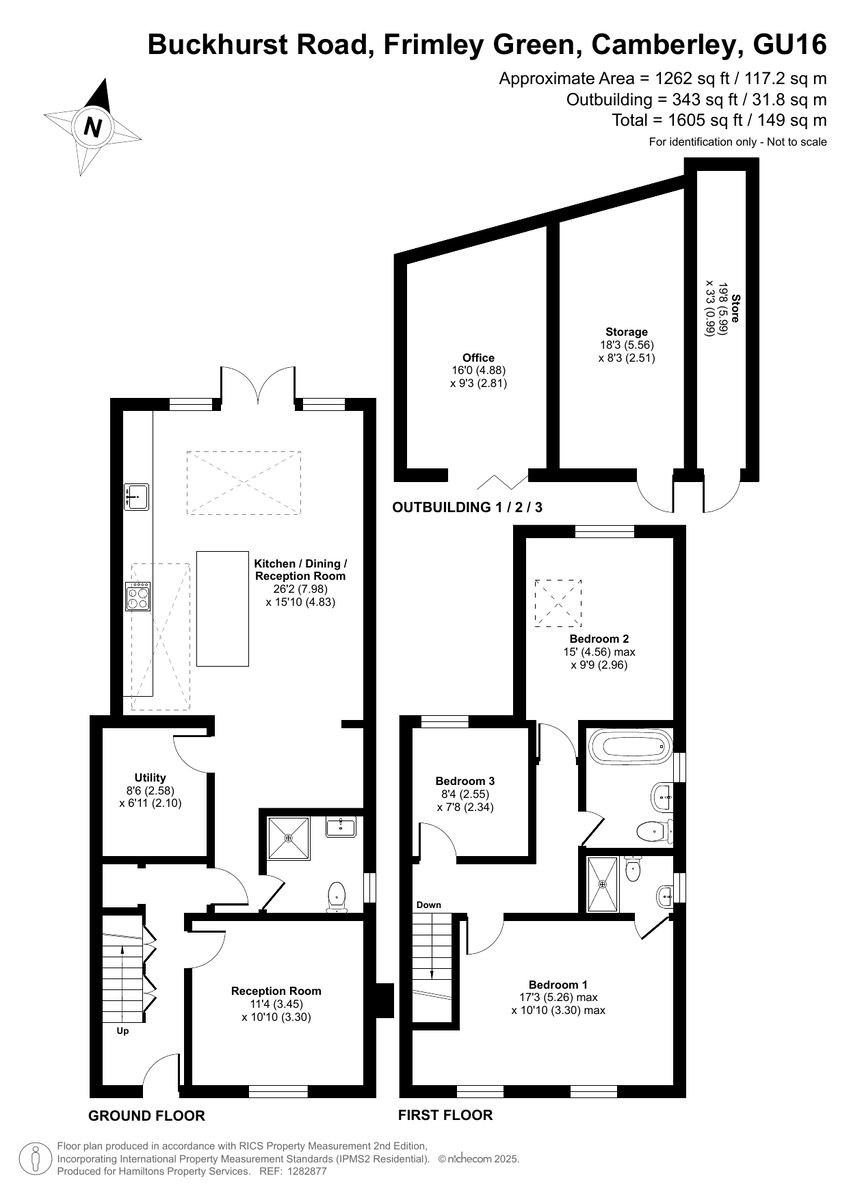
Hamiltons of Frimley Green are pleased to market this extended and refurbished three bedroom period property, that is situated along one of the villages most iconic roads, within walking distance of local schools, shops, pubs and Frimley Lodge Park with its playgrounds, café, miniature steam railway and the Basingstoke Canal, as well as being within easy reach of several train stations with direct links to London Waterloo.

The larger than expected ground floor accommodation comprises a front aspect living room with uPVC double glazed windows with Plantation Shutters overlooking the front of the property. To the rear of the property is a breathtaking open plan kitchen, dining, living space with French Doors leading out to the rear garden. The kitchen comprises a matching range of eye and low-level units with a matching island & separate utility room. The refitted downstairs shower room boasts a high flush WC, pedestal basin, wall mounted heated towel rail and shower cubicle.

To the first floor there are three bedrooms with an en suite shower room to the master bedroom in addition to the family bathroom with a claw foot bath, pedestal wash basin, basin with vanity unit under and WC with a concealed cistern.

The landscaped, sunny aspect rear garden features a patio to the rear of the property leading to the lawn with a path along the side leading to the garden room at the rear of the garden. The garden room has light and power as well as patio to the front.

To truly appreciate this property an internal viewing is recommended.


Council Tax Band D 

Property Ref: 58481_102401002307

Share:

Similar Properties

Milden Gardens, Frimley Green

3 Bedroom Semi-Detached Bungalow | £525,000

Hamiltons offer to the market an extended three-bedroom three bathroom Chalet style bungalow situated at the end of a qu...

Amber Hill, Camberley

3 Bedroom Detached House | £525,000

Hamiltons offer a modern detached house, situated in a cul-de-sac location within the highly popular Amber Hill developm...

Mytchett Road, Mytchett, Camberley

4 Bedroom Detached House | Offers in excess of £525,000

Hamiltons are pleased to bring to the market this larger than expected four bedroom family home, that is situated within...

Frimley Green Road, Frimley

3 Bedroom Detached House | Offers in excess of £550,000

A beautifully presented 1930’s family home that has been recently renovated, and extended to the ground floor creating a...

Broadlands, Frimley

4 Bedroom Link Detached House | £550,000

**No Onward Chain**Hamiltons are proud to bring to the market this larger than expected four bedroom family home, with i...

Gloucester Close, Frimley Green

4 Bedroom Semi-Detached House | £550,000

**No Onward Chain, Viewings Starting 17th September 2022 **A beautifully presented and much improved three-bedroom famil...

Hamiltons Property Services (Frimley Green)

227 - 229 Frimley Green Road, Frimley Green, Surrey, GU16 6LD

01276 409448

How much is your home worth?

Use our short form to request a valuation of your property.

Request a Valuation

Mortgage Calculator

Amount Borrowed: £
Total Amount Repayable: £
Total Monthly Payment: £
©2025 The Guild of Property Professionals. All rights reserved. Terms and Conditions | Privacy Policy | Cookie Policy | Complaints Policy | Members Login
The Guild of Property Professionals Trading Address: 121 Park Lane, London W1K 7AG. GPEA Limited. Registered in England & Wales.  Company No: 02819824.  Registered Office Address: 2 St. Stephen's Court, St. Stephen's Road, Bournemouth, Dorset, England, BH2 6LA.  VAT Registration No: 576 8795 61
Book a Property Valuation Update Cookies Preferences