Henley Drive, Frimley Green

£225,000

2 Bedroom Apartment for sale in Camberley

2 1
  • No Chain
  • Separate Kitchen
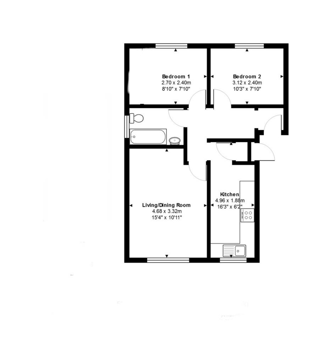
  • two double bedrooms
  • Cul De Sac Location
  • Refitted Kitchen
  • Walking Of Shops, Pubs & Schools
  • Garage with power

FULL DESCRIPTION **No Onward chain**

Hamiltons are proud to present this well presented and ideally situated two bedroom first floor flat, situated within walking distance of local schools, shops & pubs as well as Frimley Lodge Park with its playgrounds cafe,with great public transport links locally this property is great for first time buyers or investors.

The accommodation comprises of two double bedrooms, a larger than expected fitted kitchen, bathroom and a front aspect lounge/dinner the property also benefits from a garage with power

Further benefits include gas fired central heating, uPVC double glazed windows.

Council Tax Band £1,922.86pa 

Property Ref: 102401002465

Share:

Similar Properties

Hornchurch Square, Farnborough

2 Bedroom Apartment | £225,000

A modern two bed ground floor apartment in the Queensgate Development in Farnborough. Conveniently located within walkin...

Chapel Road, Camberley, Surrey

2 Bedroom Maisonette | £225,000

** Investment Opportunity** Hamiltons are pleased to offer to the market this well positioned two bedroom, first floor p...

Kimberley, Church Crookham, Fleet

1 Bedroom End of Terrace House | £220,000

Offered to the market is this one-bedroom house situated in a private location within the Church Crookham area of Fleet....

Guildford Road, Farnham

1 Bedroom Apartment | £229,950

*Share of freehold*Hamiltons are proud to present this charming one bedroom apartment offering split level accommodation...

Drifters Drive, Deepcut

2 Bedroom Apartment | £230,000

A two double bedroom first floor property with views overlooking woodland, situated on a private development on the outs...

Haskins Gardens, Farnborough

2 Bedroom Apartment | £240,000

**No Onward Chain**Hamiltons are pleased to bring to the market this redecorated and recarpeted, two double bedroom, two...

Hamiltons Property Services (Frimley Green)

227 - 229 Frimley Green Road, Frimley Green, Surrey, GU16 6LD

01276 409448

How much is your home worth?

Use our short form to request a valuation of your property.

Request a Valuation

Mortgage Calculator

Amount Borrowed: £
Total Amount Repayable: £
Total Monthly Payment: £
©2026 The Guild of Property Professionals. All rights reserved. Terms and Conditions | Privacy Policy | Cookie Policy | Complaints Policy | Members Login
The Guild of Property Professionals Trading Address: 121 Park Lane, London W1K 7AG. GPEA Limited. Registered in England & Wales.  Company No: 02819824.  Registered Office Address: 2 St. Stephen's Court, St. Stephen's Road, Bournemouth, Dorset, England, BH2 6LA.  VAT Registration No: 576 8795 61
Book a Property Valuation Update Cookies Preferences