Sycamore Drive, Frimley

£675,000
SSTC
This property listing is now SSTC

4 Bedroom Semi-Detached House for sale in Camberley

4 2
  • Stunning Open Plan Living Space
  • Four Bedrooms
  • Walking Distance of Tomlinscote & Ravenscote Schools
  • Landscaped Garden With Cabin
  • Large Patio To Rear Of Property

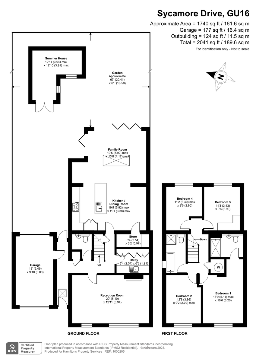
Hamiltons are proud to bring to the market this larger than expected family home, that has been substantially extended to create a fabulous family home with a total arear that is in excess of 2000sqft and is situated within walking distance of Tomlinscote & Ravenscote schools and Frimley Park Hospital.

The beautiful open plan kitchen/dining/living space is positioned at the rear of the property and boasts a recently fitted kitchen with a matching range of eye and low level units with solid oak worksurfaces, an island unit and integrated appliances including a full height fridge & separate freezer, dishwasher and wine chiller. To the rear of this space there is a lantern roof and bi folding doors on two sides meaning the living space flows seamlessly out to the sunny aspect rear garden. To the front of the property is the separate living room with a dual fuel fireplace. Further features to the ground floor include a separate utility room with basin and space and plumbing for a washing machine and tumble dryer, a cloakroom with WC and wash basin, ample storage including a cloaks cupboard.

To the first floor are four double bedrooms with a dressing area and recently fitted en suite shower room to the master bedroom in addition to the family bathroom.

Externally there is a landscaped rear garden with a patio to the rear of the property leading to the lawn. To the rear of the garden is an 'L' shaped cabin with light and power making this an ideal games room or garden bar. To the front of the property is a driveway proving off street parking leading to the garage which has a roller door to the front and back.
 

Property Ref: 102401001905

Share:

Similar Properties

Bramble Bank, Frimley Green

4 Bedroom Detached House | £675,000

**Planning permission granted for a double story side extension.**Hamiltons are proud to offer this exceptional example...

The Green, Frimley Green

4 Bedroom Detached Bungalow | £675,000

An individually built 1930's cottage with many original features, having been extended and occupying an enviable positio...

Frimley Grove Gardens, Frimley

4 Bedroom Detached House | Offers in excess of £670,000

A rare opportunity to purchase a substantial period family home dating back 100 years, that is ideally situated within w...

Hanson Close, Camberley

4 Bedroom Detached House | £700,000

A deceptively spacious four-bedroom family home situated in a quiet cul de sac overlooking a green on the ever popular W...

Potteries Lane, Mytchett, Camberley

5 Bedroom Detached House | £700,000

Hamiltons are very pleased to be able to offer to the market this rare opportunity to purchase a wonderful character pro...

Dettingen Crescent, Deepcut

5 Bedroom Town House | £700,000

Hamiltons are proud to bring to the market this exceptional example of a property where nothing has been left to chance...

Hamiltons Property Services (Frimley Green)

227 - 229 Frimley Green Road, Frimley Green, Surrey, GU16 6LD

01276 409448

How much is your home worth?

Use our short form to request a valuation of your property.

Request a Valuation

Mortgage Calculator

Amount Borrowed: £
Total Amount Repayable: £
Total Monthly Payment: £
©2026 The Guild of Property Professionals. All rights reserved. Terms and Conditions | Privacy Policy | Cookie Policy | Complaints Policy | Members Login
The Guild of Property Professionals Trading Address: 121 Park Lane, London W1K 7AG. GPEA Limited. Registered in England & Wales.  Company No: 02819824.  Registered Office Address: 2 St. Stephen's Court, St. Stephen's Road, Bournemouth, Dorset, England, BH2 6LA.  VAT Registration No: 576 8795 61
Book a Property Valuation Update Cookies Preferences