Worsley Road, Frimley

Offers in excess of
£525,000
SSTC
This property listing is now SSTC

3 Bedroom Semi-Detached House for sale in Camberley

3 2
  • NO CHAIN
  • Large rear extention
  • off street parking
  • Large garden
  • south facing garden

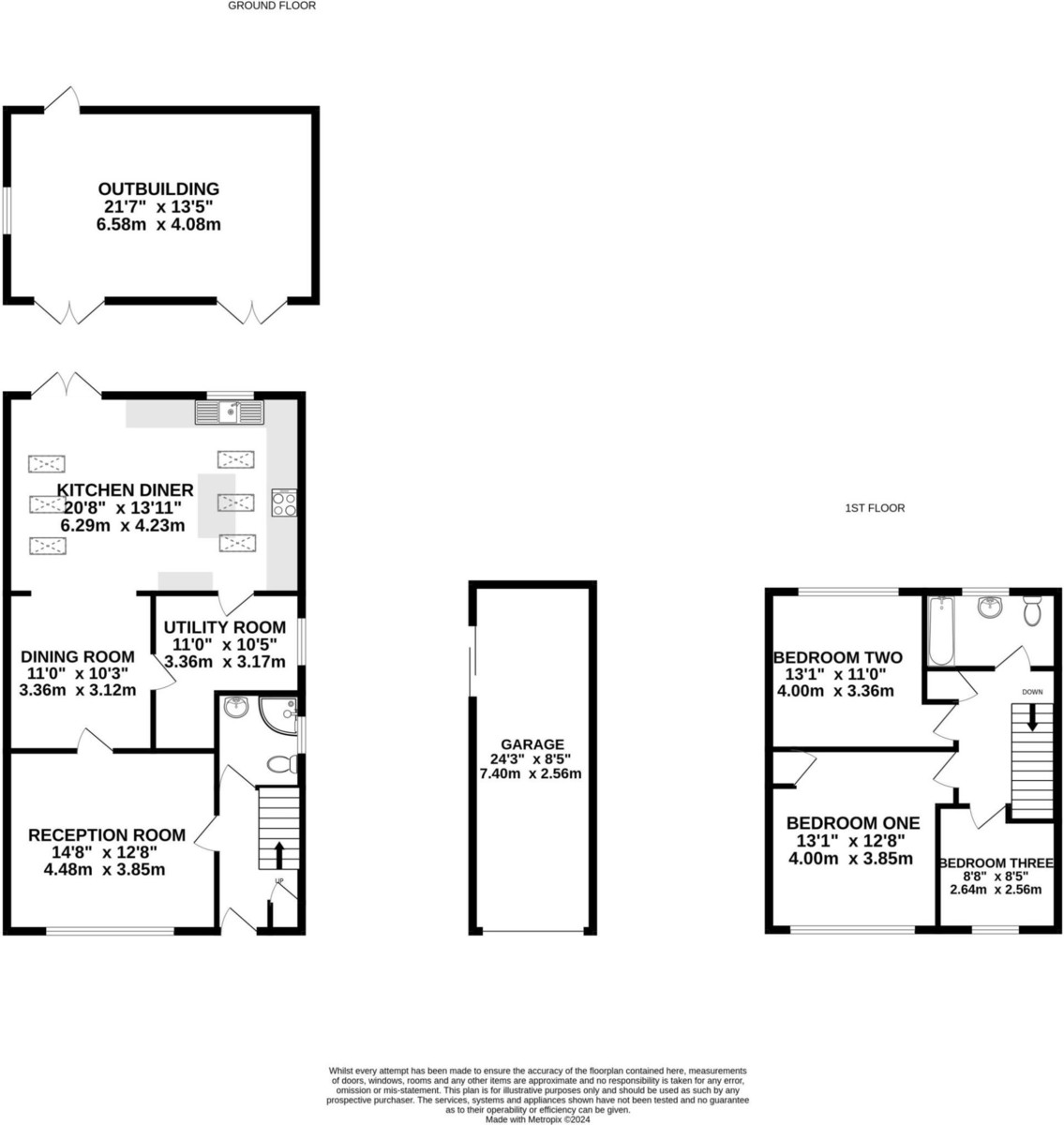
FULL DESCRIPTION **No Chain**

Hamiltons are proud to present this brilliantly extended three bedroom semi detached property within close proximity to local schools such as Tomlinscote secondary school and Sandringham Infant. The property is also close to other local amenities such as shops, pharmacy, parks and farnborough main train station.

This property offers an open plan kitchen/dinning room that consists of eye and low level units along with a central island with vaulted ceilings and bifold doors leading onto a sunny aspect garden. The property includes a utility room with space and plumbing for washing machine and tumble dryer. The front aspect living room provides a good amount of space and benefits from a downstairs bathroom with shower. The upstairs provides a family bathroom and three well proportioned bedrooms. The property includes a brilliant office/outbuilding at the end of the garden that would be ideal for working from home or as an annex.

This property also benefits from off road parking, side access, no chain, and a large south facing garden.

 

Property Ref: 102401002329

Share:

Similar Properties

Milden Gardens, Frimley Green

3 Bedroom Semi-Detached Bungalow | £525,000

Hamiltons offer to the market an extended three-bedroom three bathroom Chalet style bungalow situated at the end of a qu...

Amber Hill, Camberley

3 Bedroom Detached House | £525,000

Hamiltons offer a modern detached house, situated in a cul-de-sac location within the highly popular Amber Hill developm...

Mytchett Road, Mytchett, Camberley

4 Bedroom Detached House | Offers in excess of £525,000

Hamiltons are pleased to bring to the market this larger than expected four bedroom family home, that is situated within...

Kingsmead, Frimley Green

3 Bedroom Semi-Detached House | Guide Price £550,000

A larger-than-expected three-bedroom family home, extended to the rear on the ground floor to create a spacious kitchen/...

Coleford Bridge Road

3 Bedroom Detached House | £550,000

Hamiltons of Frimley Green are delighted to present this fantastic three-bedroom 1930s detached family home, offering en...

Caroline Way, Frimley

3 Bedroom Detached House | Offers in excess of £550,000

Hamiltons are pleased to bring to the market this three-bedroom family home, with oodles of potential, situated within a...

Hamiltons Property Services (Frimley Green)

227 - 229 Frimley Green Road, Frimley Green, Surrey, GU16 6LD

01276 409448

How much is your home worth?

Use our short form to request a valuation of your property.

Request a Valuation

Mortgage Calculator

Amount Borrowed: £
Total Amount Repayable: £
Total Monthly Payment: £
©2026 The Guild of Property Professionals. All rights reserved. Terms and Conditions | Privacy Policy | Cookie Policy | Complaints Policy | Members Login
The Guild of Property Professionals Trading Address: 121 Park Lane, London W1K 7AG. GPEA Limited. Registered in England & Wales.  Company No: 02819824.  Registered Office Address: 2 St. Stephen's Court, St. Stephen's Road, Bournemouth, Dorset, England, BH2 6LA.  VAT Registration No: 576 8795 61
Book a Property Valuation Update Cookies Preferences