Manns Hill, Bossingham, Canterbury

£1,295,000
Under Offer
This property listing is now Under Offer

5 Bedroom Detached House for sale in Canterbury

5 4
  • * WATCH OUR VIDEO WALK THROUGH TOUR *
  • High Specification Detached Home Built in 2019
  • Four Double Bedrooms & One Bedroom Annexe
  • 34ft Modern Kitchen/Dining/Living Room
  • Fully Fitted Cinema Room With Bar Area by Häcker
  • Principal Bedroom with En-Suite & Dressing Room
  • Tasteful Interior Design By Iggi
  • 160ft Garden Thoughtfully Designed & Large Patio
  • Off-Road Parking for Multiple Vehicles & Car Port
  • No Forward Chain

Elm Lodge offers an idyllic rural retreat nestled in the charming village of Bossingham and just a short drive from Canterbury. This stunning executive detached home, built in 2019 to an exceptional specification, effortlessly combines contemporary luxury with village charm. Thoughtfully designed to provide spacious and stylish living, it is the perfect family home.

Upon entering you are immediately welcomed into a grand vestibule entrance where vaulted ceilings and a striking porcelain feature staircase set the tone for this exceptional residence. The interior, tastefully curated by Iggi, maximizes every inch of space blending functionality with sophisticated design.

At the heart of the home lies an impressive 34ft open-plan kitchen, dining and living area where modern elegance meets everyday practicality. Oak bi-folding doors flood the space with natural light seamlessly connecting indoor and outdoor living. The sleek Häcker kitchen, complete with a range of high-end built-in appliances, offers both style and substance. A fully fitted utility room with a personal door leading to the garden ensures convenience is never compromised.

For those who enjoy home entertainment, the cinema room provides a truly immersive experience featuring an integrated Bowers & Wilkins surround sound system, a 9ft Grandview screen and a Sony Atmos SKRD 4K projector. The experience is elevated further by a bespoke bar area complete with Häcker units, a double wine fridge and drinks cabinets - ideal for entertaining.

The ground floor also features a study with built-in storage and a fully tiled shower room providing flexibility for home working or guest accommodation.

Upstairs the principal bedroom suite serves as a private sanctuary boasting a luxurious en-suite shower room and dedicated dressing room. A Juliet balcony with striking raking windows allows natural light to pour in enhancing the feeling of space. Three further double bedrooms provide ample accommodation for family and guests with a versatile games room/dressing room/ study room two accessible from bedroom four. A beautifully designed, fully tiled family bathroom serves these rooms.

Stepping outside the landscaped garden offers a tranquil escape. A large patio provides the perfect space for outdoor dining and entertaining, while the expansive lawn offers privacy and room to enjoy the surrounding countryside.

Adding to the home's appeal is a separate, self-contained annex, a stunning handmade oak-framed structure built by English Oak Buildings Ltd. This versatile space is currently used as an Airbnb rental generating additional income but would be equally suited as a guest suite or home office. The annex features a well-equipped kitchen/living area with built-in appliances, a spacious double bedroom with integrated storage and a stylish shower room along with the added benefit of solar panels.

At the front of the property gates provide secure access to ample off-road parking with a carport that offers potential for conversion into a garage for additional storage.

Elm Lodge presents a rare opportunity to enjoy tranquil rural living while remaining conveniently close to Canterbury's excellent amenities, schools and transport links. For those commuting or exploring the city, a local bus service to Canterbury city centre is just 0.4 miles away providing easy access to Canterbury Bus Station and Canterbury West Train Station which offers high-speed rail connections to London.

Everyday essentials are within easy reach with Stelling Minnis stores, Lower Hardres Farm Shop and C.A. Worgan's Butcher located within 4 miles. Families will appreciate the proximity to Stelling Minnis Primary School just 0.5 miles away, while sought-after secondary schools, including Simon Langton Grammar School (5.6 miles) and Kent College Canterbury (9 miles), offer excellent educational opportunities.

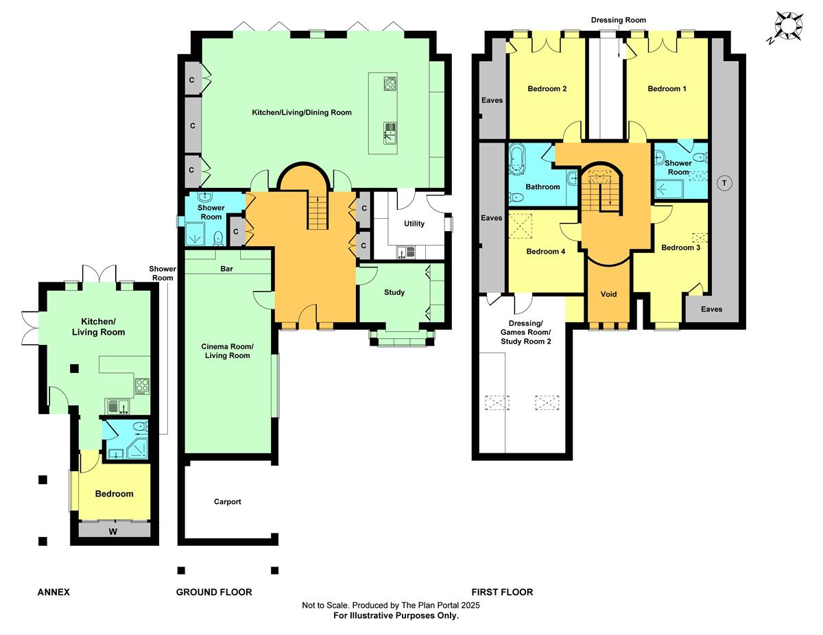
Entrance Hall   19' 8 x 11' 5 (6m x 3.48m)
Oak wood front entrance door with glazed side panels. Vaulted ceilings with raking feature window. Underfloor heating. Storage cupboards with shelves and hanging space. Separate cupboard housing network including junction for CAT 6 media points. Porcelain stone staircase leading to first floor. Airing cupboard with shelves housing lagged hot water cylinder and immersion heater. Tiled flooring.

Kitchen/Dining/Living Room   34' 2 x 21' 0 (10.42m x 6.41m)
The kitchen is planned with a matching range of wall and base units arranged on one wall with large island housing moulded corian 1.5 bowl sink unit. Corian work surfaces with drainer grooves. Inset Bora induction hob with draw down extractor cooker, built-in fan assisted electric double oven and combination microwave/plate warmer. Integrated dishwasher, fridge and wine cooler. Windows to rear overlooking garden. Underfloor heating. Tiled flooring. Bi-folding doors providing access to rear garden. Large media wall with built-in storage.

Utility Room   9' 10 x 9' 6 (3m x 2.75m)
Range of matching wall and base units. Corian work surfaces with moulded sink unit. Underfloor heating. Window to side. Integrated washing machine, tumble dryer and freezer. Door to side.

Study   10' 7 into bay x 9' 8 plus cupboards (3.23m x 2.75m)
Built-in cupboards. Bay window to front. Underfloor heating. Tiled flooring.

Cinema Room   28' 4 x 11' 11 (8.64m x 3.64m)
Feature bar with integrated stainless steel sink unit. Double wine fridge. Built-in drinks cabinet. Sony SKRD 4K projector. Bowers & Wilkins Atmos surround sound. Window to side and French door with electric blackout blind. Underfloor heating.

Shower Room   8' 1 x 7' 3 (2.47m x 2.14m)
Suite in white comprising full tiled walk-in shower with rainfall shower, wall hung wash hand basin set into vanity unit with drawer below and WC with concealed cistern. Underfloor heating. Chrome heated towel rail. Tiled walls. Frosted window to side. Tiled flooring. Extractor fan.

Galleried Landing   
Ceiling speakers. Feature raking window to front and sky light. Radiators.

Bedroom 1   14' 8 x 11' 5 (4.48m x 3.48m)
Window to rear with Juliet balcony. Radiator. Door to dressing room and en-suite.

Dressing Room   13' 10 x 4' 5 (4.22m x 1.22m)
Window to rear. Built-in wardrobes with shelves and hanging space.

En-suite   8' 2 x 7' 8 (2.49m x 2.34m)
Suite in book match white marble tiles comprising large fully tiled shower cubicle with rainfall shower, wall hung wash hand basin set into vanity unit with drawers below and WC with concealed cistern. Heated towel rail. Tiled walls. Velux window to side. Radiator. Tiled flooring. Extractor fan.

Bedroom 2   14' 8 x 10' 6 (4.48m x 3.05m)
Window to rear with Juliet balcony. Radiator. Access to eaves and storage. Vaulted ceiling.

Bedroom 3   16' 8 x 10' 7 max (5.08m x 3.23m)
Window to front and Velux to side. Radiator. Access to eaves and storage.

Bedroom 4   11' 9 x 9' 0 (3.59m x 2.75m)
Velux window to side. Radiator. Door to dressing room/ games room.

Dressing Room/Games room/ Study 2   22' 0 x 11' 11 (6.71m x 3.64m)
Velux windows to side. Radiator. Access to eaves and storage.

Bathroom   9' 1 x 8' 7 (2.77m x 2.62m)
Suite in white comprising freestanding bath with mixer tap and hand held shower attachment, large wall hung wash hand basin set into vanity unit with drawers below and WC with concealed cistern. Chrome heated towel rail. Tiled walls. Velux window to side. Tiled flooring. Extractor fan.

Front Garden   48' 0 x 52' 0 (14.64m x 15.85m)
Border fence and gates to front. Mainly laid to resin driveway. Access to car port. Driveway extending to the front of the property providing off road parking.

Rear Garden   45' 0 x 160' 0 (13.72m x 48.77m)
Mainly laid to lawn with flower beds, bushes and shrubs. Paved patio area. Greenhouse. Timber shed. Gated side access. Enclosed with fencing.

Annex   
Made by English Oak.

Kitchen/Living Room   17' 8 x 13' 11 (5.39m x 4.25m)
The kitchen is planned with a matching range of wall and base units arranged on three walls. Stainless steel 1½ bowl sink unit. Inset induction hob and built-in fan assisted electric microwave/oven. Integrated fridge/freezer and washing machine. Windows to side and rear. Tiled flooring. Underfloor heating. French doors to rear garden.

Bedroom   10' 0 x 9' 9 (3.05m x 2.98m)
Window to side. Built-in wardrobes.

Annex Shower Room   
Suite in white comprising fully tiled shower cubicle, wall hung wash hand basin set into vanity unit with drawers below and WC with concealed cistern. Chrome heated towel rail. Tiled walls. Window to side. Tiled flooring. Extractor fan.

Main Services
The following mains services are connected to the property electricity, water, drainage, a telephone line and BT broadband. All services will be subject to the appropriate companies transfer conditions.

Heating
Central heating is provided by a oil fired boiler situated in the front garden and hot water radiators and underfloor heating as indicated in these particulars.

Windows
The windows are generally of oak framed double glazed sealed units.

Tenure
The property is to be sold Freehold with vacant possession.

Council Tax
We are advised by the Valuation Office that the property is currently within Council Tax Band G. The amount payable under tax band G for the year 2025/2026 is £3,838.75.

Viewing
Please ring us to make an appointment. We are open from 9am to 6pm Monday to Friday, 9am to 5pm Saturdays and by appointment only on Sundays.

Agent Notes
Kent Estate Agencies gives notice for themselves and for the sellers of the property, whose agents they are that any floor plans, plans or mapping and measurements are approximate quoted in metric with imperial equivalents. All are for general guidance only and whilst every attempt has been made to ensure accuracy, they must not be relied on. The measurements are provided in accordance with the R.I.C.S. Code of Measuring Practice 6th edition. We have not carried out a structural survey and the services, appliances and specific fittings have not been tested and therefore no guarantee can be given that they are in working order. Photographs are reproduced for general information and it must not be inferred that any item shown is included with the property. Prospective purchasers or lessees should seek their own professional advice. Kent Estate Agencies retain the copyright in all advertising material used to market this property. No person in the employment of Kent Estate Agencies has any authority to make any representation or warranty whatever in relation to this property. Purchase prices, rents or other prices quoted are correct at the date of publication and, unless otherwise stated, exclusive of VAT. For a free valuation of your property contact the number on this brochure. Printed 6th May 2025

Important Information

  • This is a Freehold property.

Property Ref: 57749_80B2A4

Share:

Similar Properties

Cromwell Road, Canterbury

3 Bedroom Detached House | £650,000

This extended detached family home offers generous space, versatile features and a highly desirable location. Situated o...

Blean Common, Blean, Canterbury

4 Bedroom Semi-Detached House | Guide Price £500,000

** Guide Price - £500,000 - £525,000 **Situated in the ever-popular village of Blean, this thoughtfully extended semi-de...

Hackington Road, Tyler Hill, Canterbury

3 Bedroom Semi-Detached House | Offers in excess of £395,000

Set in the sought-after village of Tyler Hill and just a short distance from Canterbury city centre, this beautifully ex...

Kent Estate Agencies (Canterbury)

6 Castle Street, Canterbury, Kent, CT1 2QF

01227 213453

How much is your home worth?

Use our short form to request a valuation of your property.

Request a Valuation

Mortgage Calculator

Amount Borrowed: £
Total Amount Repayable: £
Total Monthly Payment: £
©2025 The Guild of Property Professionals. All rights reserved. Terms and Conditions | Privacy Policy | Cookie Policy | Complaints Policy | Members Login
The Guild of Property Professionals Trading Address: 121 Park Lane, London W1K 7AG. GPEA Limited. Registered in England & Wales.  Company No: 02819824.  Registered Office Address: 2 St. Stephen's Court, St. Stephen's Road, Bournemouth, Dorset, England, BH2 6LA.  VAT Registration No: 576 8795 61
Book a Property Valuation Update Cookies Preferences