Dovercourt House, Ferry Court, Cardiff

Asking Price
£150,000
SSTC
This property listing is now SSTC

1 Bedroom Flat for sale in Cardiff

1 1 1
  • Top floor flat with stunning views
  • One bedroom
  • Open plan living space and kitchen
  • Large balcony
  • Allocated undercroft parking space
  • No onward chain
  • On a modern development with concierge, gym and swimming pool

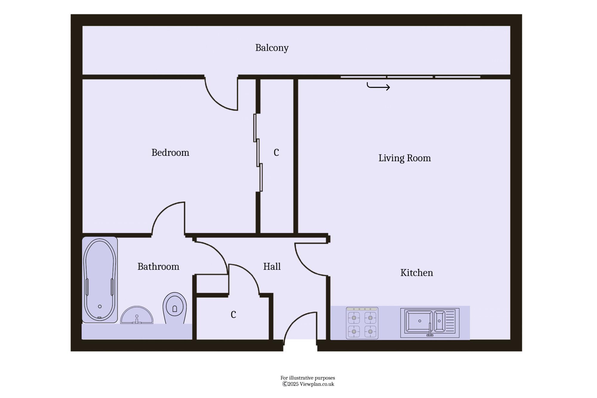
A one bedroom top floor flat with very impressive water views across Cardiff Bay, being sold with no onward chain and ideal for first time buyers and investors. The living accommodation comprises the entrance hall, open plan living room / kitchen, the bedroom and bathroom. The property has an allocated, undercroft parking space and a balcony that spans the full width of the flat, with space for chairs to make the most of the view. The development has use of a communal gym, swimming pool and has a 24-hour concierge. Viewing advised. EPC: D.

Accommodation

Hall

Fitted carpet. Power points. Wall mounted electric heater. Door entry phone. Large built-in cupboard with hot water cylinder and electrical consumer unit. Doors to the living room / kitchen, bedroom and bathroom.

Living Room
13' 9'' x 10' 0'' (4.18m x 3.05m)
Part of an open plan living space with kitchen, that has water views over Cardiff Bay. Fitted carpet. Aluminium double glazed sliding doors onto the balcony. Two wall mounted electric heaters. Power, phone and TV points.

Kitchen
11' 3'' x 7' 1'' (3.44m x 2.17m)
Vinyl flooring. Fitted kitchen comprising wall units and base units with laminate work surfaces. Integrated appliances including an electric oven, four zone electric hob, extractor hood and washing machine. Freestanding fridge freezer. One and a half bowl stainless steel sink. Part tiled walls. Power points. Recessed lighting.

Bedroom
11' 4'' plus wardrobes x 10' 0'' (3.45m plus wardrobes x 3.06m)
Double bedroom with fitted carpet, built-in wardrobes and an aluminium double glazed door onto the balcony and with views over Cardiff Bay. Wall mounted electric heater. Power, TV and phone points.

Bathroom
7' 3'' x 6' 9'' (2.2m x 2.06m)
Tiled floor and part tiled walls. Suite comprising a panelled bath with mixer shower and glass screen, WC and sink. Heated towel rail. Fitted mirror. Shaver point. Recessed lighting.

Outside

Balcony
28' 8'' x 3' 5'' (8.73m x 1.03m)
A balcony that spans the width of the property, with amazing water views over Cardiff Bay. Laid to paving. Glass and steel balustrade.

Parking

The property has one allocated, undercroft parking space.

Communal Facilities

The property benefits from the use of extensive communal facilities including gardens, gym and swimming pool with sauna.

Additional Information

Tenure

The property is leasehold (CYM493330) with 125 years to run from 1st January 2006 (105 years remaining).

Council Tax

The property is Council Tax band D, which equates to a charge of £1,922.19 for 2025/26.

Service Charge and Ground Rent

We have been informed by the seller that the current service charge for 2025 is £2874.47 which includes ground rent at £226.60 and buildings insurance at £528.51

Approximate Gross Internal Area

549 sq ft / 51.0 sq m.

Utilities

The property is connected to mains electricity, water and sewerage services.

Important Information

  • This is a Leasehold property.

Property Ref: EAXML13962_12748903

Share:

Similar Properties

Headlands, Hayes Point, Sully

2 Bedroom Flat | Asking Price £149,950

A very well presented and spacious two bedroom second floor flat with impressive southerly views over the communal garde...

Homeside House, Bradford Place, Penarth

1 Bedroom Flat | Asking Price £135,000

A ground floor (from the car park) one bedroom retirement flat in a very popular block, close to the town centre and wit...

Bridgeman Court, Bridgeman Road, Penarth

1 Bedroom Flat | Asking Price £129,950

A first floor one bedroom retirement property in this popular development just off The Esplanade and next to Alexandra P...

Park Road, Barry

2 Bedroom Ground Floor Flat | Asking Price £155,000

* GARAGE* A ground floor two bedroom flat with a long lease and share of the freehold, set in a sizeable development wit...

Hafan Yr Ysgol, High Street, Penarth

1 Bedroom Flat | Asking Price £160,000

A first floor one bedroom flat, situated in a modern, purpose built block close to Penarth town centre and being sold wi...

Woodlands, Hayes Point, Sully

2 Bedroom Flat | Asking Price £165,000

A spacious second floor two double bedroom flat located in this popular, gated development with concierge service, set i...

David Baker (Penarth)

Penarth, Cardiff, CF64 3EE

02920 702622

How much is your home worth?

Use our short form to request a valuation of your property.

Request a Valuation

Mortgage Calculator

Amount Borrowed: £
Total Amount Repayable: £
Total Monthly Payment: £
©2026 The Guild of Property Professionals. All rights reserved. Terms and Conditions | Privacy Policy | Cookie Policy | Complaints Policy | Members Login
The Guild of Property Professionals Trading Address: 121 Park Lane, London W1K 7AG. GPEA Limited. Registered in England & Wales.  Company No: 02819824.  Registered Office Address: 2 St. Stephen's Court, St. Stephen's Road, Bournemouth, Dorset, England, BH2 6LA.  VAT Registration No: 576 8795 61
Book a Property Valuation Update Cookies Preferences