High Street, Cardigan

£250,000

Commercial Property for sale in Cardigan

Extensive main street frontage. Former Natwest Bank. Approx 2000 sq. ft. ground floor space. Rear parking. Currently A2 planning use classification (professional and financial services), or A1 classification (shop). Potential for a variety of commercial purposes, including shop, office, eating house, etc. (STC). The First and Second Floors are substantial and ideal for conversion to some form of residential accommodation/flats/HMO, etc.
Occupying prime town centre location, fronting the main thoroughfare within the busy West Wales market town of Cardigan on the Teifi Estuary. Across the road to Barclays Bank, Specsavers, close to Vision Express and other major national and local retailers.

Description - A Grade II listed building of attractive proportions, which was trading as a Natwest Bank premises up to 2018.

Solid oak entrance door with glazed inner doors leading through to:-

Front Reception Room/Office - 8.36m x 4.78m (27'5" x 15'8") - Plus alcove with 3 windows to the front street, various passageways lead through to other rooms viz:-

Waiting Room - 2.26m x 2.16m (7'5" x 7'1") -

Former Managers Office - 5.51m x 3.61m (18'1" x 11'10") -

Inner Hallway -

Filing Room - 3.38m x 2.84m (11'1" x 9'4") -

Rear Hallway/Office Area - 10.06m x 5.69m (33' x 18'8") -

Rear Office - 5.74m x 3.43m (18'10" x 11'3") -

Rear Passageway - 7.01m x 3.73m (23' x 12'3") -

Walk-In Vault - 5.69m x 2.92m (18'8" x 9'7") - With steel door.

Rear Passageway - Leads to:-

Kitchenette/Utility Room -

2nd Walk-In Vault - 3.12m x 2.79m (10'3" x 9'2") - With steel door.

Ladies & Gents Toilets -

Staff Room/Kitchen - 3.94m x 3.23m (12'11" x 10'7") - With stainless steel single drainer sink unit, hot water geyser, rear fire doors lead to:-

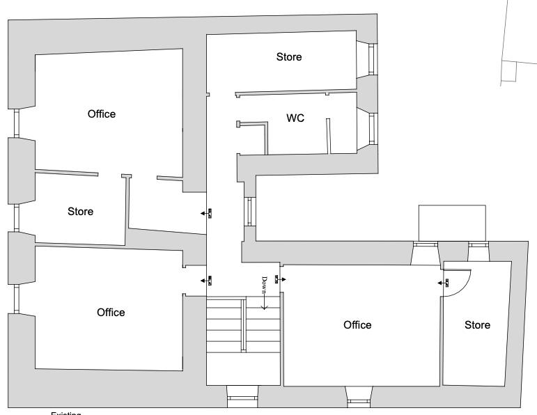
First Floor -

Landing -

Office - Four windows to the front.

Office - Window to the front.

Office - Two windows to the rear and window to the side

Store Room - Window to the side

Office - Window to the side.

Wc - Low flush wc, sink, window to the side.

Office - Windows to the side and and rear, door to:

Store Room - Window to the side.

Second Floor -

Consisting of three offices with three storage rooms and a WC.

Outside Yard And Parking -

Services, Etc. - Services - Mains water, electricity, drainage and gas.
Local Authority - Ceredigion County Council
Rateable Value - �12,500
what3words:- ///upwardly.someone.genetics

Property Ref: 278594_32233955

Share:

Similar Properties

Station Road, Cardigan

Light Industrial | £250,000

For sale is the former railway station, complete with its historic platform. Previously utilised as a mechanics garage,...

Myrtle Hill, Penparc Road, Cardigan

3 Bedroom Semi-Detached House | £250,000

A three bedroom semi detached house situated on the outskirt of Cardigan enjoying a pleasant open aspect with a generous...

Alltfach, St. Dogmaels, Cardigan

4 Bedroom Cottage | £250,000

Situated in the charming coastal village of St. Dogmaels, this delightful detached cottage offers a perfect blend of tra...

Castle Street, Cardigan

3 Bedroom Detached House | £265,000

An exciting opportunity to acquire a freehold, commercial premises with residential element above within Cardigan. Previ...

Castle Street, Cardigan

3 Bedroom Commercial Property | £265,000

An exciting opportunity to acquire a freehold, commercial premises with residential element above within Cardigan. Previ...

Blaenffos, Boncath

3 Bedroom Detached Bungalow | £265,000

A spacious Three Bedroom Detached Bungalow situated in the village of Blaenffos with accommodation comprising: Sun Porch...

JJ Morris (Cardigan)

5 High Street, Cardigan, SA43 1HJ

01239 612343

How much is your home worth?

Use our short form to request a valuation of your property.

Request a Valuation

Mortgage Calculator

Amount Borrowed: £
Total Amount Repayable: £
Total Monthly Payment: £
©2025 The Guild of Property Professionals. All rights reserved. Terms and Conditions | Privacy Policy | Cookie Policy | Complaints Policy | Members Login
The Guild of Property Professionals Trading Address: 121 Park Lane, London W1K 7AG. GPEA Limited. Registered in England & Wales.  Company No: 02819824.  Registered Office Address: 2 St. Stephen's Court, St. Stephen's Road, Bournemouth, Dorset, England, BH2 6LA.  VAT Registration No: 576 8795 61
Book a Property Valuation Update Cookies Preferences