Pendre, Cardigan

£300,000

Shop for sale in Cardigan

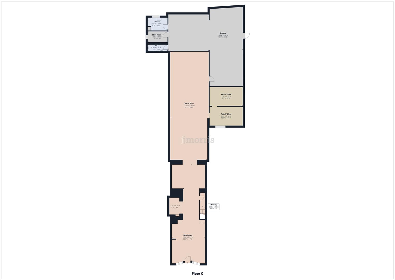
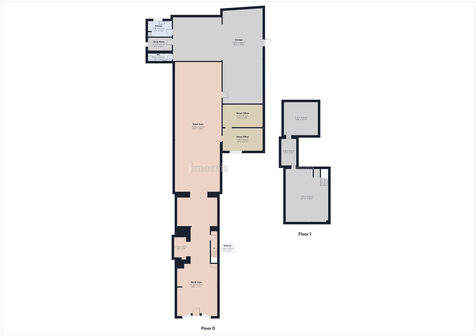
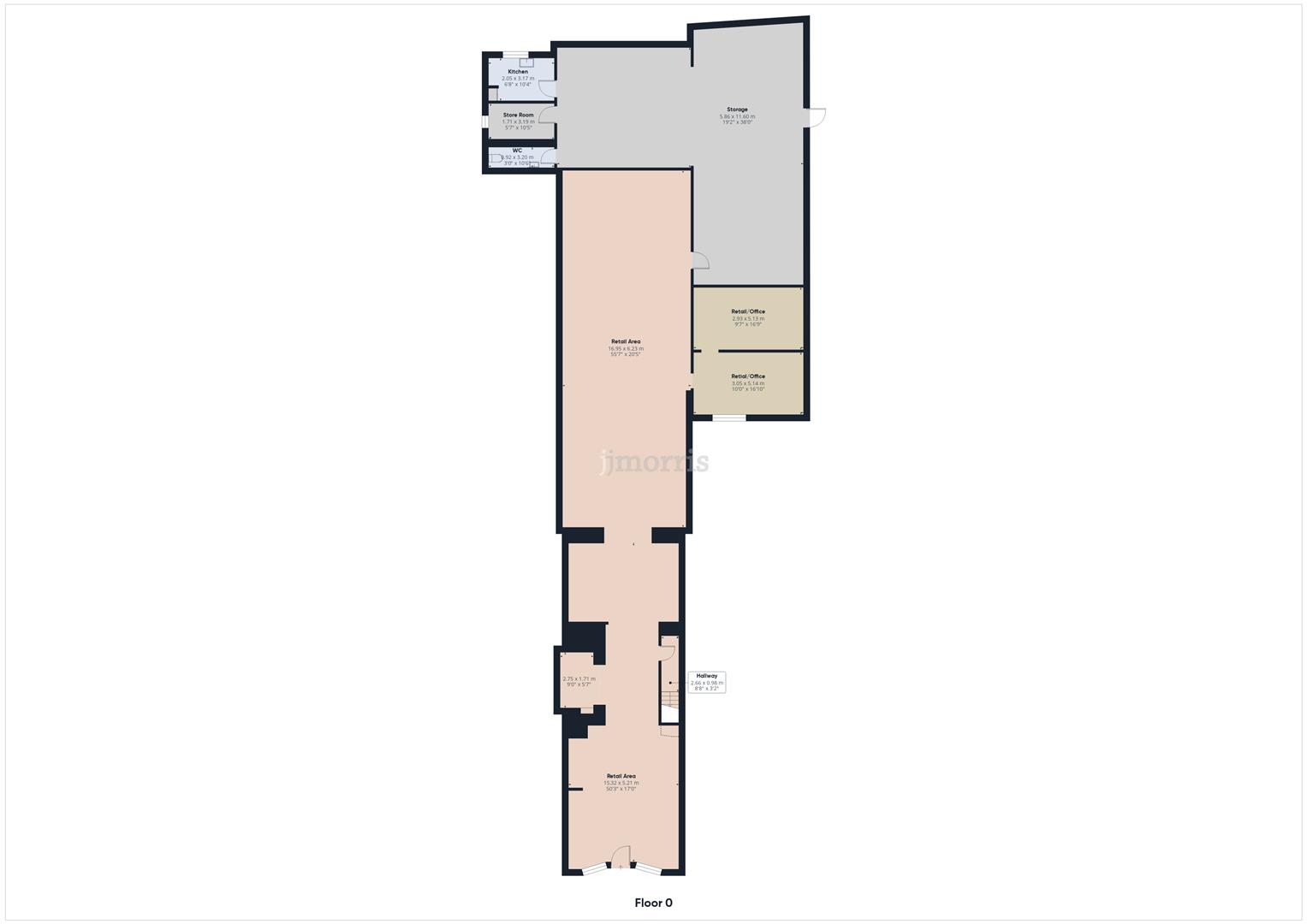
A rare opportunity to purchase a substantial commercial premises situated on Pendre, Cardigan. The shop front is deceiving as the property extends significantly to the rear and sides.
The retail unit is currently laid out with a large retail area, along with additional rooms that could be utilised as office space if required. To the rear there is a storage area, providing scope for development (stc). There is also rear access and parking available. The first floor currently comprises storage, but again offers potential.

Property Ref: 278594_34325978

Share:

Similar Properties

Brongest, Newcastle Emlyn

Land | Guide Price £300,000

** Quality parcel of land extending to 20 acres or thereabouts in one level enclosure **** Suitable for grazing, croppin...

Parc Teifi Business Park, Cardigan

Land | £300,000

A rare opportunity to purchase 6.3 acres (2.5 ha) of land currently designated as employment land within the local devel...

Blaenporth, Cardigan

5 Bedroom Cottage | £300,000

A Three Bedroom cottage with a Two Bedroom Annex set within a generous plot of 0.32 acres or thereabouts situated in the...

Bowls road, Blaenporth, Cardigan

3 Bedroom Detached Bungalow | £319,995

A spacious Three Bedroom Detached Bungalow, enjoying views to the rear over open countryside, set on a generous plot in...

Aberporth, Cardigan

5 Bedroom Semi-Detached House | £320,000

The property has been in the same family since it was built and has never been put on the market for sale. It contains m...

Efailwen, Clynderwen

3 Bedroom Detached Bungalow | £325,000

Situated in the peaceful rural hamlet of Efailwen in the heart of Carmarthenshire, Maesmeini offers a beautifully tranqu...

JJ Morris (Cardigan)

5 High Street, Cardigan, SA43 1HJ

01239 612343

How much is your home worth?

Use our short form to request a valuation of your property.

Request a Valuation

Mortgage Calculator

Amount Borrowed: £
Total Amount Repayable: £
Total Monthly Payment: £
©2025 The Guild of Property Professionals. All rights reserved. Terms and Conditions | Privacy Policy | Cookie Policy | Complaints Policy | Members Login
The Guild of Property Professionals Trading Address: 121 Park Lane, London W1K 7AG. GPEA Limited. Registered in England & Wales.  Company No: 02819824.  Registered Office Address: 2 St. Stephen's Court, St. Stephen's Road, Bournemouth, Dorset, England, BH2 6LA.  VAT Registration No: 576 8795 61
Book a Property Valuation Update Cookies Preferences