Lumley Street, Castleford

Offers in excess of
£650,000

4 Bedroom Detached House for sale in Castleford

2 4 3
  • Investment Opportunity
  • Large Four bedroom Home
  • Three Tenanted One Bedroom Flats
  • Past Planning to Convert The Family Home
  • 1200m2 Plot
  • Off Road Parking
  • Scope for Many Options
  • Period Property
  • Great Location
  • Viewing is Essential

A fantastic investment opportunity! Four bedroom detached home (previous planning for 4 flats) with THREE tenanted ONE bedroom flats. Sat on just over 1200m2 plot, this opportunity has a great deal of potential for an investor/developer or even a family looking to upsize and acquire investment properties. For full information please get in touch.

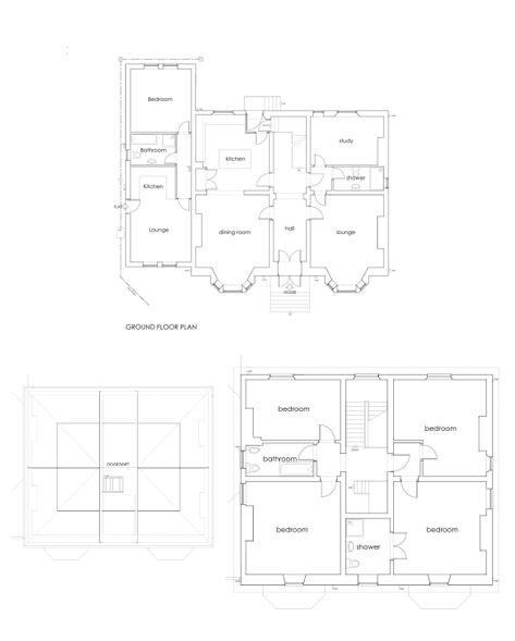
Ground Floor -

Entrance Hall - Double doors lead you into a period entrance hall with tiled flooring, central heating radiators and access to all ground floor accommodation.

Kitchen/Dining Room - A good sized kitchen area with breakfast bar, range master cooker, 1 1/2 sink drainer and a window overlooking the rear garden.

Living Room - A great sized room with high ceilings, wooden flooring, log burner and feature bay window.

Sitting Room - A large social space with a stunning fire place, wooden floor, radiator and large bay window overlooking the front garden.

Second Kitchen/Laundry Room - Previously used as a commercial kitchen, this is now being used as a laundry room

Downstairs Shower Room - Walk in shower, WC, extractor fan, radiator and wash hand basin.

First Floor -

Principle Bedroom - A large room with panelled walls, two windows and double doors leading into a large en-suite.

En-Suite - Shower, bidet, wash hand basin, extractor fan, radiator and window to the front of the property.

Bedroom Two - A good sized double room with window over looking the rear garden.

Bedroom Three - A good sized double room overlooking the rear garden

Bedroom Four - A double room with a window overlooking the front garden.

Family Bathroom - Bath with over head shower, WC and wash hand basin.

Attic Space - A large open space that could very easily be converted.

Cellar - The full footprint of the ground floor, again, this may be converted into additionally accommodation.

External - Just over 1000m2 plot.

Tenanted Flats - At the bottom of the garden, the newly build building contains two 1 bedroom flats that are currently tenanted additionally with the side extension to the property there is a tenanted 1 bedroom flat. There was planning in place to convert the family home into four flats but this planning has now expired. Plans can be provided upon request.

Property Ref: 53422_33943768

Share:

Similar Properties

Ledgate Lane, Burton Salmon, Leeds

4 Bedroom Detached House | Offers in region of £500,000

Nestled on the picturesque peaceful and tranquil setting of Ledgate Lane in Burton Salmon, Leeds, this stunning detached...

Ackworth Road, Pontefract

4 Bedroom Detached House | Offers in excess of £300,000

This detached property WITH NO ONWARD CHAIN is ideal for families seeking a peaceful residential area while still being...

Netherwood Avenue, Castleford

4 Bedroom Detached House | £295,000

A spacious four-bedroom detached home situated in a sought-after residential area of Castleford. This well-presented pro...

Whitwood Lane, Castleford

6 Bedroom Detached House | £675,000

Discover Moor House, an exceptional Grade II listed six-bedroom detached residence, offering timeless elegance and refin...

Castle Dwellings (Castleford)

22 Bank Street, Castleford, West Yorkshire, WF10 1JD

01977 285 111

How much is your home worth?

Use our short form to request a valuation of your property.

Request a Valuation

Mortgage Calculator

Amount Borrowed: £
Total Amount Repayable: £
Total Monthly Payment: £
©2025 The Guild of Property Professionals. All rights reserved. Terms and Conditions | Privacy Policy | Cookie Policy | Complaints Policy | Members Login
The Guild of Property Professionals Trading Address: 121 Park Lane, London W1K 7AG. GPEA Limited. Registered in England & Wales.  Company No: 02819824.  Registered Office Address: 2 St. Stephen's Court, St. Stephen's Road, Bournemouth, Dorset, England, BH2 6LA.  VAT Registration No: 576 8795 61
Book a Property Valuation Update Cookies Preferences