The Walpole, Park View Road, Woldingham, CR3 7DJ

Guide Price
£3,150,000

6 Bedroom Detached House for sale in Caterham

5 6 5
  • Show Home Available to View by Appointment
  • A Minutes Walk to Woldingham Village
  • 5 Bedrooms
  • Landscaped Gardens
  • Private Gated Development
  • Located in an Area of Outstanding Natural Beauty
  • High Level Energy Efficiency
  • Detached Double Garage and Off street parking for several vehicles
  • Rare Opportunity to Acquire a Brand New House Near to Woldingham Village Centre
  • Near to Woldingham School and Easy Access to a Choice of Other Private Schools

 

The Walpole at Park View is one of just 4 brand new family houses currently under construction but close to completion.   This impressive residence is situated on the most generous plot at Park View which is Park View (approximately 0.59 of an acre).  Park View is a picturesque private cul-de-sac located in beautiful semi rural surrounding in an area designated as an Area of Outstanding Natural Beauty and only a minutes' walk to Woldingham Village. Woldingham is one of Surrey's most prestigious and sought after locations which enjoys a delightful village at it's centre and a mainline railway station providing access to Victoria and London Bridge in around half an hour.

With over 5,000sf (excluding large eves storage areas and double garage) of accommodation, built to exacting standards and finished to an exceptionally high specification; Park View surpasses expectations and brings a level of quality and refinement which is rarely matched.

Woldingham is a great location for easy access to London by train and around 4 miles from junction 6 of the M25 motorway. Gatwick Airport is about 20min drive and the South Coast is 45m.

Property Dimensions:

468.80m2 or 5,046 sq ft (excluding eaves storage and garage)

Entrance Hall – 7.56m x 3.47m (24ft 10in x 11ft 5in)
Kitchen & Family Room – 12.96m x 5.31m (42ft 6in x 17ft 5in)
Utility & Boot Room – 3.10m x 1.90m (10ft 2in x 6ft 3in)
Sitting Room – 7.98m x 5.31m (26ft 2in x 17ft 5in)
Study – 5.31m x 3.93m (17ft 5in x 12ft 11in)
Principal Bedroom – 5.31m x 4.48m (17ft 5in x 14ft 8in)
Principal En-suite – 4.30m x 3.47m (14ft 1in x 11ft 5in)
Principal Dressing Room – 4.51m x 1.95m (14ft 10in x 6ft 5in)
Bedroom Two – 5.31m x 3.94m (17ft 5in x 12ft 11in)
Bedroom Three – 5.31m x 5.01m (17ft 5in x 16ft 5in)
Bedroom Four – 5.31m x 5.01m (17ft 5in x 16ft 5in)
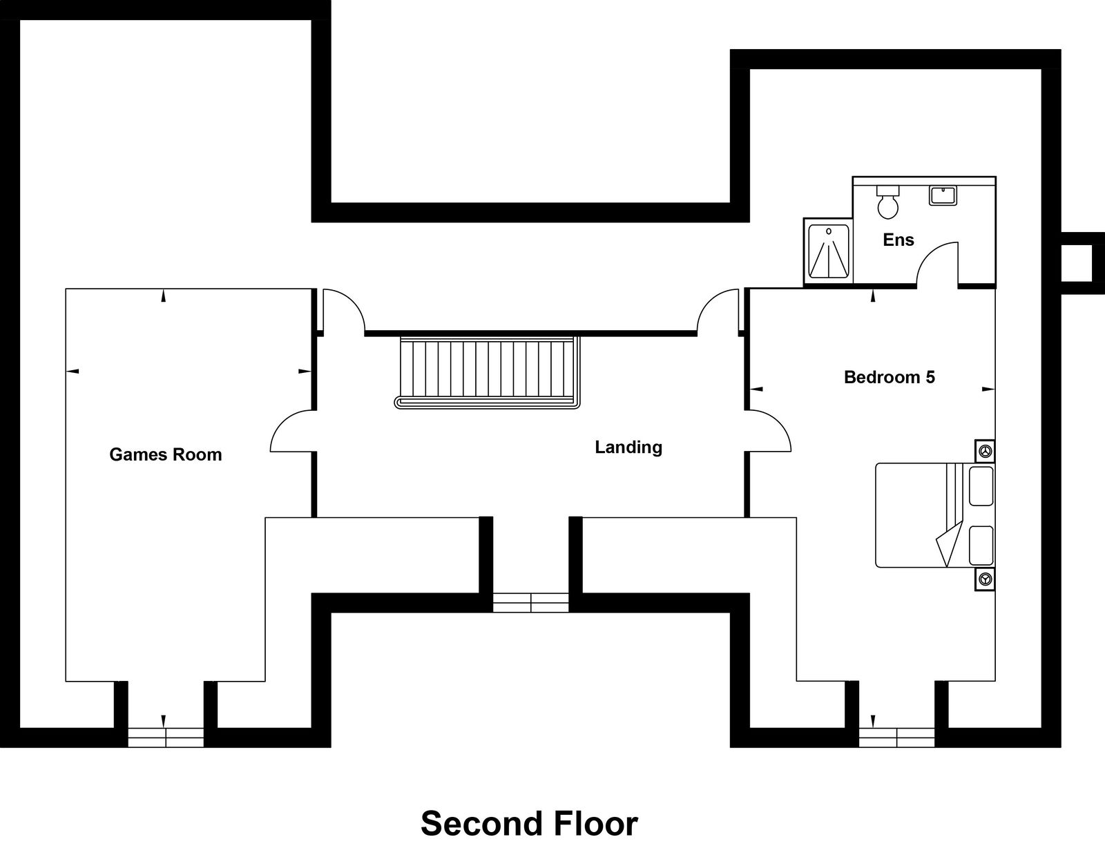
Bedroom Five – 4.48m x 4.17m (14ft 8in x 13ft 8in)
Games Room – 4.48m x 4.17m (14ft 8in x 13ft 8in)
Garage – 6.00m x 6.00m (19ft 8in x 19ft 8in)

Availability at Parkview

The Conniston - Sold Stc

The Marden - Sold 

The Clayton  - £2,800,000

The Walpole £3,150,000

 

Property Ref: 1417657

Share:

Similar Properties

Highwold - Woldingham

5 Bedroom Detached House | Guide Price £2,950,000

A unique opportunity to purchase an exceptional NEW HOME ready for occupation Summer 2026, providing approximately 6,000...

Clayton, Park View Road, Woldingham, Caterham, CR3 7DJ

5 Bedroom Detached House | Guide Price £2,800,000

Situated in an Exceptional Location in the Heart of the Surrey Hills, a Brand New 5,139sf Luxury Family Home Close to Wo...

Icehouse Wood, Oxted, RH8 9DW

5 Bedroom Detached House | Guide Price £2,500,000

Located within the highly sought after and peaceful private road of Icehouse Wood, Oxted, this 5-bedroom contemporary fa...

Robert Leech (Oxted)

72 Station Road East, Oxted, Surrey, RH8 0PG

01883 717272

How much is your home worth?

Use our short form to request a valuation of your property.

Request a Valuation

Mortgage Calculator

Amount Borrowed: £
Total Amount Repayable: £
Total Monthly Payment: £
©2026 The Guild of Property Professionals. All rights reserved. Terms and Conditions | Privacy Policy | Cookie Policy | Complaints Policy | Members Login
The Guild of Property Professionals Trading Address: 121 Park Lane, London W1K 7AG. GPEA Limited. Registered in England & Wales.  Company No: 02819824.  Registered Office Address: 2 St. Stephen's Court, St. Stephen's Road, Bournemouth, Dorset, England, BH2 6LA.  VAT Registration No: 576 8795 61
Book a Property Valuation Update Cookies Preferences