Peverells Wood Avenue, Peverells Wood, Chandlers Ford

£310,000
SSTC
This property listing is now SSTC

3 Bedroom Terraced House for sale in Chandlers Ford

1 3 1

Offered with no forward chain and falling within Scantabout & Thornden catchment, this modern and well proportioned three bedroom home is close to central Chandler's Ford with all is amenities. The property benefits from three good sized bedrooms, sitting/dining area, rear garden and a garage in a block. The property appeals to a whole host of different purchasers making it perfect for first time buyers, families looking for school catchment, professionals searching for an easier commute and even investors for buy to let purposes. The property is just a short distance to the M3 & M27 motorway junctions, Eastleigh & Chandler's Ford train stations and Southampton Airport and Parkway.

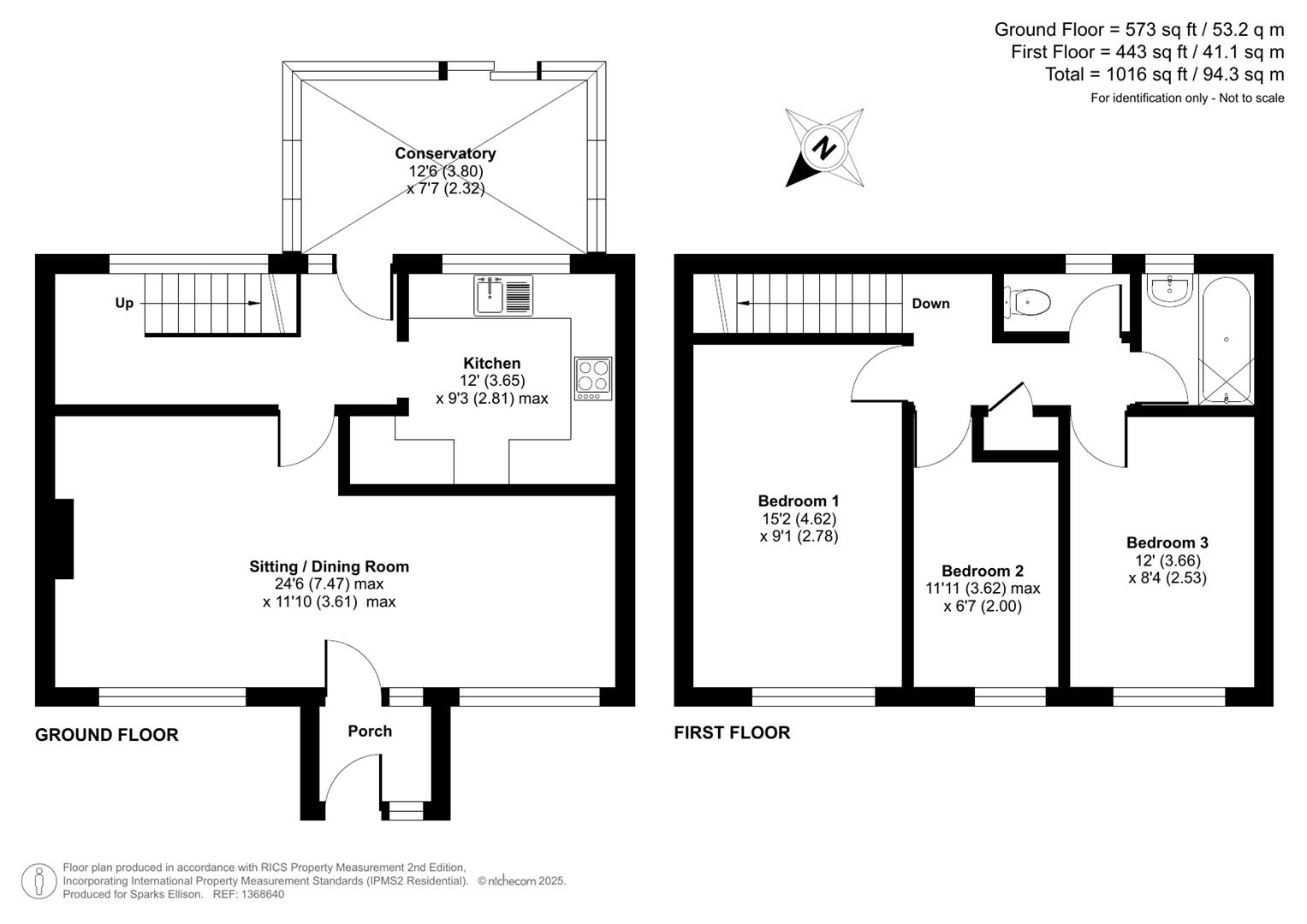
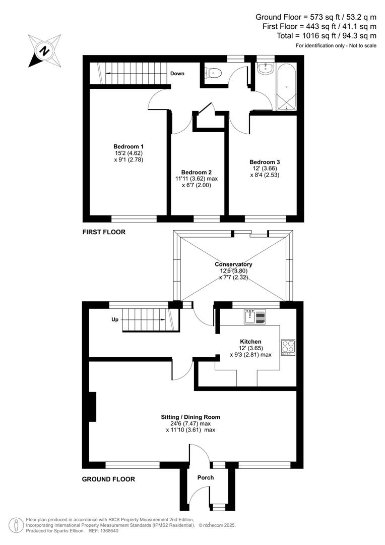
Accommodation -

Ground Floor -

Entrance Porch: - Space for hanging coats and shoe storage.

Sitting/Dining Room: - 24'6" x 11'10" (7.47m x 3.61m) Gas fireplace, serving hatch into the kitchen.

Hallway: - Stairs to first floor.

Kitchen: - 12' x 9'3" (3.65m x 2.81m) Modern kitchen with a range of units, integral hob & oven with extractor overhead, space for washing machine, space for dishwasher.

Conservatory: - 12'6" x 7'7" (3.80m x 2.32m)

First Floor -

Landing: - Airing cupboard housing modern combination boiler, access to loft space.

Bedroom 1: - 15'2" x 9'1" (4.62m x 2.78m)

Bedroom 2: - 11'11" x 6'7" (3.62m x 2.00m)

Bedroom 3: - 12' x 8'4" (3.66m x 2.53m)

Bathroom: - Modern Bathroom comprising of bath with shower over, wash basin with cupboard under.

Separate Wc: - WC.

Front: - Area laid to lawn, path to front door.

Rear Garden: - East facing rear garden measuring approximately 18' x 25'. Shed with gate to the rear of the property for access.

Garage: - Located in nearby block with communal parking.

Other Information -

Tenure: - Freehold

Approximate Age: - 1970

Approximate Area: - 94.3sqm/1016sqft

Sellers Position: - No forward chain

Heating: - Gas central heating

Windows: - UPVC double glazed windows

Infant/Junior School: - Scantabout Primary School

Secondary School: - Thornden Secondary School

Council Tax: - Band C

Local Council: - Eastleigh Borough Council - 02380 688000

Agents Note: - If you have an offer accepted on a property we will need to, by law, conduct Anti Money Laundering Checks. There is a charge of £60 including vat for these checks regardless of the number of buyers involved.

Property Ref: 34529104

Share:

Similar Properties

Fairbairn Walk, Knightwood Park, Chandler's Ford

2 Bedroom Terraced House | £310,000

Located in the desirable Knightwood Park area of Chandler's Ford, this modern terraced house on Fairbairn Walk presents...

Coach Hill Close, South Millers Dale, Chandler's Ford

2 Bedroom Semi-Detached House | £310,000

Positioned within South Millers Dale, this two bedroom semi-detached home places you within the Thornden School catchmen...

Belmont Road, Chandler's Ford

3 Bedroom Terraced House | £300,000

A delightful three bedroom home presented in excellent condition throughout and offers a host of wonderful attributes to...

Solent Close, Chandler's Ford

3 Bedroom Terraced House | £315,000

Welcome to this modern three-bedroom terraced home on Solent Close in Chandler's Ford. The property offers well proporti...

Viscount Gardens, Eastleigh

3 Bedroom End of Terrace House | £320,000

Positioned at Viscount Gardens in Eastleigh, this well-presented three bedroom end-terrace home offers balanced accommod...

Oakmount Road, Chandler's Ford

3 Bedroom Semi-Detached House | £325,000

A conveniently situated three bedroom semi-detached home offered for sale with no forward chain, that would also benefit...

Sparks Ellison (Chandler's Ford)

Chandler's Ford, Hampshire, SO53 2GJ

02380 255333

How much is your home worth?

Use our short form to request a valuation of your property.

Request a Valuation

Mortgage Calculator

Amount Borrowed: £
Total Amount Repayable: £
Total Monthly Payment: £
©2026 The Guild of Property Professionals. All rights reserved. Terms and Conditions | Privacy Policy | Cookie Policy | Complaints Policy | Members Login
The Guild of Property Professionals Trading Address: 121 Park Lane, London W1K 7AG. GPEA Limited. Registered in England & Wales.  Company No: 02819824.  Registered Office Address: 2 St. Stephen's Court, St. Stephen's Road, Bournemouth, Dorset, England, BH2 6LA.  VAT Registration No: 576 8795 61
Book a Property Valuation Update Cookies Preferences