Mead Road, Chandler's Ford, Eastleigh

£325,000
SSTC
This property listing is now SSTC

2 Bedroom Semi-Detached Bungalow for sale in Chandler's Ford

1 2 1

This delightful two-bedroom semi-detached bungalow presents an excellent opportunity for those seeking a comfortable and well-maintained home. The property is in lovely condition, reflecting the care and attention it has received over the years. Ideal for downsizers, this bungalow offers a practical layout that maximises space and convenience. In addition to this the property provides a modern kitchen and bathroom as well as a cosy sitting room. Situated close to the heart of Chandler's Ford, residents will benefit from easy access to local amenities, including shops, cafes, and parks. The vibrant community and excellent transport links further enhance the appeal of this property, making it a perfect choice for those looking to enjoy a peaceful yet connected lifestyle. In summary, this semi-detached bungalow on Mead Road is a wonderful opportunity for anyone looking to downsize or simply enjoy a well-kept home in a desirable location, with its lovely condition and proximity to central Chandler's Ford.

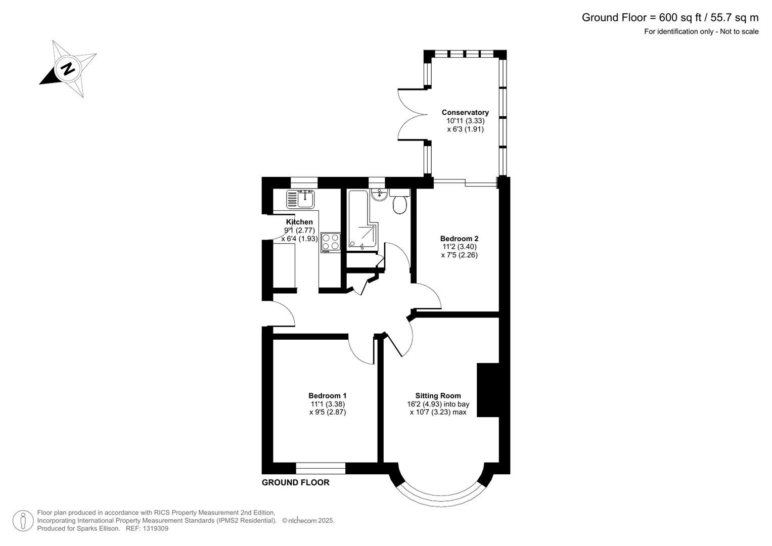
Accommodation -

Hallway: - Storage cupboard.

Sitting Room: - 16'2 into bay x 10'7" (4.93m x 3.23m) Bay window, open fireplace.

Conservatory: - 10'11" x 6'3" (3.33m x 1.91m) Double doors to garden.

Kitchen: - 9'1" x 6'4" (2.77m x 1.93m) Modern units comprising built in gas hob, electric oven, fridge/freezer and washing machine.

Bedroom 1: - 11'1" x 9'5" (3.38m x 2.87m)

Bedroom 2: - 11'2" x 7'5" (3.40m x 2.26m)

Bathroom: - Fitted in 2019, white suite comprising bath with shower over, WC, wash basin with cupboard under.

Outside -

Front: - Pathway leading to front door and driveway parking for one car.

Rear Garden: - Laid to lawn with patio area.

Other Information -

Tenure: - Freehold

Approximate Age: - 1930's

Approximate Area: - 55.7sqm/600sqft

Sellers Position: - No forward chain

Heating: - Gas central heating

Windows: - UPVC double glazed windows

Loft Space: - Partially boarded with ladder and light connected

Infant/Junior School: - Chandler's Ford Infant/Merdon Junior School

Secondary School: - Toynbee Secondary School

Council Tax: - Band C

Local Council: - Eastleigh Borough Council - 02380 688000

Agents Note: - If you have an offer accepted on a property we will need to, by law, conduct Anti Money Laundering Checks. There is a charge of £60 including vat for these checks regardless of the number of buyers involved.

Property Ref: 34023160

Share:

Similar Properties

Peverells Wood Close, Peverells Wood, Chandler's Ford

3 Bedroom Terraced House | £325,000

A three bedroom home situated in a cul-de-sac within the popular Peverells Wood area. The convenient location is within...

Valley Road, Chandler's Ford, Eastleigh

2 Bedroom Semi-Detached House | £325,000

Located in the heart of Chandler's Ford, this delightful two-bedroom semi-detached house on Valley Road offers two spaci...

Hiltingbury Road, Hiltingbury, Chandler's Ford

2 Bedroom Flat | £325,000

A two bedroom second floor apartment built in 2009 by the reputable Bargate Homes, this property is part of a charming p...

Monmouth Close, Valley Park, Chandler's Ford

2 Bedroom Semi-Detached Bungalow | Offers in excess of £335,000

A modern two bedroom semi detached bungalow situated in a sought-after cul-de-sac within the Valley Park development. Th...

Hamble Court, Chandler's Ford

3 Bedroom Terraced House | £335,000

Welcome to this wonderful terraced house located in the peaceful cul-de-sac of Hamble Court, Chandler's Ford. This delig...

Westmorland Way, Chandlers Ford

3 Bedroom Terraced House | £335,000

Located on Westmorland Way, Chandlers Ford, and built around 1970, the property has been beautifully presented and thoug...

Sparks Ellison (Chandler's Ford)

Chandler's Ford, Hampshire, SO53 2GJ

02380 255333

How much is your home worth?

Use our short form to request a valuation of your property.

Request a Valuation

Mortgage Calculator

Amount Borrowed: £
Total Amount Repayable: £
Total Monthly Payment: £
©2026 The Guild of Property Professionals. All rights reserved. Terms and Conditions | Privacy Policy | Cookie Policy | Complaints Policy | Members Login
The Guild of Property Professionals Trading Address: 121 Park Lane, London W1K 7AG. GPEA Limited. Registered in England & Wales.  Company No: 02819824.  Registered Office Address: 2 St. Stephen's Court, St. Stephen's Road, Bournemouth, Dorset, England, BH2 6LA.  VAT Registration No: 576 8795 61
Book a Property Valuation Update Cookies Preferences