Kingsway, Chandler's Ford, Eastleigh

£500,000
SSTC
This property listing is now SSTC

3 Bedroom Semi-Detached House for sale in Chandler's Ford

2 3 2

Located on lower Kingsway, Chandler's Ford, this stunning 1930s semi-detached family home has been thoughtfully extended and refurbished by its current owners, creating a perfect blend of classic charm and modern living. The property boasts an impressive open plan kitchen and dining area, ideal for family gatherings and entertaining guests. The snug and sitting room provide additional spaces for relaxation, ensuring that every member of the family has their own retreat. This delightful home features three spacious double bedrooms, along with a useful study and bathroom on the first floor, making it perfect for families of all sizes. The ground floor shower room also adds convenience to daily routines, catering to the needs of a busy household. Outside, you will find a large garage, providing ample storage or potential for conversion or a workshop. The wonderful 69' south-west facing garden is a true highlight, offering a serene outdoor space for children to play, gardening enthusiasts to thrive, or simply for enjoying the sunshine. Situated in a convenient central location, this property is within walking distance to local shops, schools, and bus services, making it an ideal choice for families seeking both comfort and accessibility. This home is not just a property; it is a lifestyle waiting to be embraced. Don't miss the opportunity to make this exquisite house your new family home.

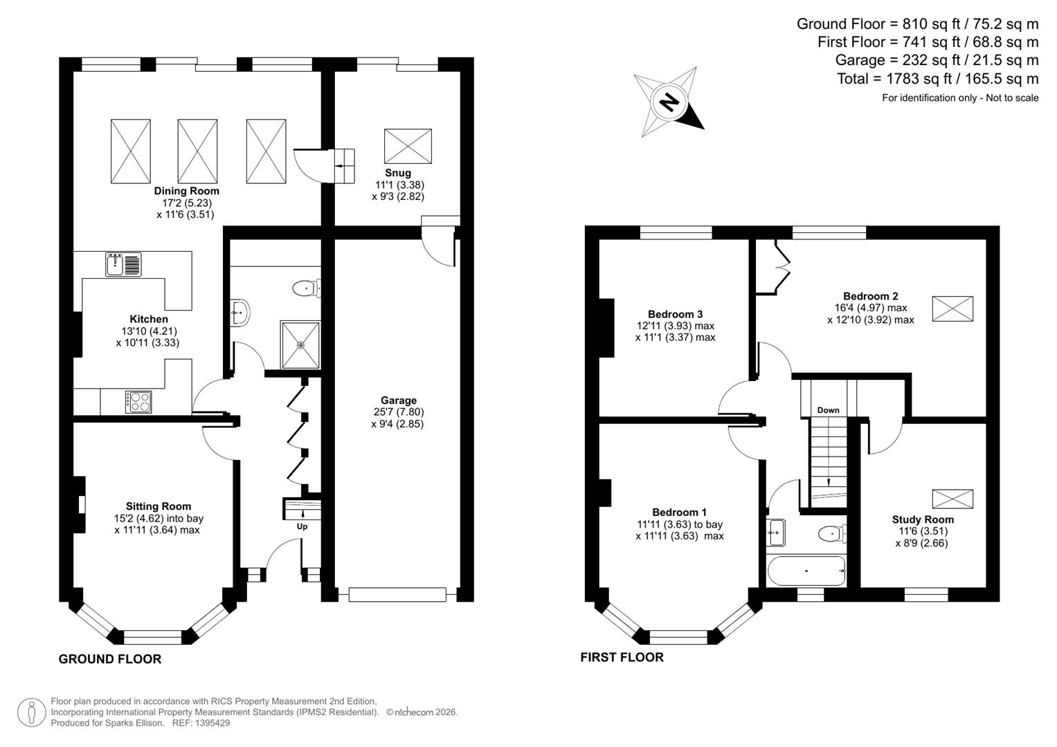
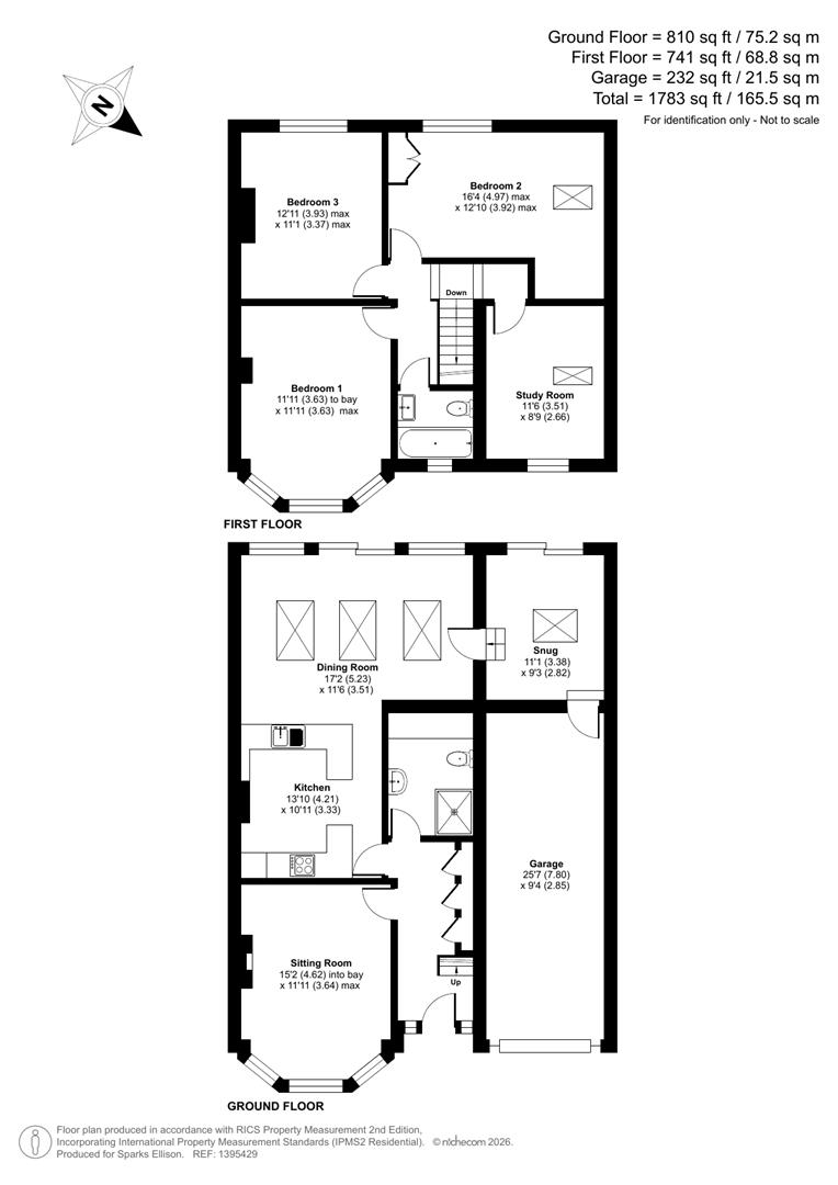
Accommodation -

Ground Floor -

Open Entrance Porch: - Front door to:-

Reception Hall: - Stairs to first floor with useful storage cupboards under, wooden floor.

Sitting Room: - 15'2" x 11'11" (4.62m x 3.64m) Bay window ,chimney breast with inset log burner.

Kitchen/Dining Room: - 13'10" x 10'11" (4.21m x 3.33m) The kitchen area has been fitted with a range of units with quartz worktops over, electric oven, electric oven/microwave, induction hob with extractor hood over, integrated dishwasher. Open plan to the dining room.

Dining Room: - 17'2" x 11'6" (5.23m x 3.51m) The dining room affords plenty of space for table and chairs and sofa with part vaulted ceiling and three Velux windows and sliding double doors to rear garden, wooden flooring throughout.

Snug: - 11'1" x 9'3" (3.38m x 2.82m) Sliding door to rear garden, wooden floor, skylight, door to garage.

Shower Room/Utility Room: - Suite comprising corner shower cubicle with glazed screen, wash basin, WC, work surface area with integrated fridge and freezer under and space and plumbing for washing machine.

First Floor -

Landing: - Hatch to loft space.

Bedroom 1: - 11'11" x 11'11" (3.63m x 3.63m) Bay window, fitted wardrobes.

Bedroom 2: - 16'4" x 12'10" (4.97m x 3.92m) Airing cupboard.

Bedroom 3: - 12'11" x 11'1" (3.93m x 2.82m)

Study Room: - 11'6" x 8'9" (3.51m x 2.66m) Please note restricted ceiling height

Bathroom: - Suite comprising bath with mixer tap, wash basin with cupboard under, WC.

Outside -

Front: - To the front of the property is a gravel driveway affording parking for two vehicles with adjacent lawned area, enclosed by hedging.

Rear Garden: - The rear garden is a particularly attractive feature of the property measuring approximately 69' x 30'9" enjoying a pleasant south westerly aspect. Adjoining the property is a patio with glass balustrade and steps down to a lawned area surrounded by well stocked borders enclosed by fencing, feature brick built pizza oven, garden shed.

Garage: - 25'7" x 9'4" (7.80m x 2.85m) Electric door to the front, light and power, boiler, door to snug.

Other Information -

Tenure: - Freehold

Approximate Age: - 1939

Approximate Area: - 1783sqft/165.5sqm (Including garage)

Sellers Position: - Looking for forward purchase. Possibility of no forward chain

Heating: - Gas central heating

Windows: - UPVC, Wooden Velux windows, Aluminium rear doors to garden

Loft Space: - Partially boarded with ladder and light connected

Infant/Junior School: - Chandlers Ford infant School / Merdon Junior School

Secondary School: - Toynbee Secondary School

Local Council: - Eastleigh Borough Council 02380 688000

Council Tax: - Band D

Agents Notes: - If you have an offer accepted on a property we will need to, by law, conduct Anti Money Laundering Checks. There is a charge of £60 including vat for these checks regardless of the number of buyers involved.

Property Ref: 34390880

Share:

Similar Properties

Swanton Gardens, South Millers Dale, Chandler's Ford

4 Bedroom Semi-Detached House | £500,000

A magnificent four bedroom semi detached family home impeccably finished throughout with a stylish interior and host of...

Pitmore Road, Eastleigh

4 Bedroom Semi-Detached House | £499,950

Located on the popular Pitmore Road in Allbrook, this delightful semi-detached house from the 1920s offers a perfect ble...

Allbrook Knoll, Eastleigh

4 Bedroom Detached House | £499,950

Located in the desirable area of Allbrook Knoll, this immaculate detached family home is presented to an exceptionally h...

Tees Close, Valley Park, Chandler's Ford

3 Bedroom Detached House | £520,000

Situated in the sought after cul-de-sac of Tees Close, Valley Park, this delightful detached house offers a perfect blen...

Westwood Gardens, Hiltingbury, Chandler's Ford

4 Bedroom Detached House | £525,000

Situated in a popular cul de sac, this four-bedroom detached family home in Hiltingbury, presents an excellent opportuni...

Clausentum Close, Peverells Wood, Chandler's Ford

2 Bedroom Detached Bungalow | £525,000

Located in the highly sought-after location of Clausentum Close, Peverells Wood, Chandler's Ford, this delightful detach...

Sparks Ellison (Chandler's Ford)

Chandler's Ford, Hampshire, SO53 2GJ

02380 255333

How much is your home worth?

Use our short form to request a valuation of your property.

Request a Valuation

Mortgage Calculator

Amount Borrowed: £
Total Amount Repayable: £
Total Monthly Payment: £
©2026 The Guild of Property Professionals. All rights reserved. Terms and Conditions | Privacy Policy | Cookie Policy | Complaints Policy | Members Login
The Guild of Property Professionals Trading Address: 121 Park Lane, London W1K 7AG. GPEA Limited. Registered in England & Wales.  Company No: 02819824.  Registered Office Address: 2 St. Stephen's Court, St. Stephen's Road, Bournemouth, Dorset, England, BH2 6LA.  VAT Registration No: 576 8795 61
Book a Property Valuation Update Cookies Preferences