Bodycoats Road, Chandler's Ford

£375,000
SSTC
This property listing is now SSTC

3 Bedroom Semi-Detached House for sale in Chandler's Ford

1 3 1

Located on Bodycoats Road, this delightful semi-detached family home benefits from three well-proportioned bedrooms along with an open plan kitchen/breakfast room and sitting/dining room.
One of the standout features of this property is its generous 56' rear garden, providing ample outdoor space. Additionally, the property benefits from a driveway and garage, offering secure parking and extra storage options. Its prime location near the centre of Chandler's Ford means that residents can easily access local amenities, schools, and transport links, making daily life both practical and enjoyable.
Offered for sale with no forward chain, this home is ready for you to move in and make it your own. Whether you are a first-time buyer or looking to upsize, this semi-detached house is a wonderful opportunity not to be missed.

Accommodation -

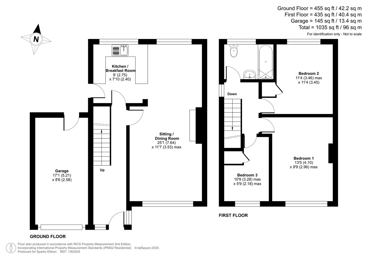
Ground Floor -

Entrance Hall: - Stairs to first floor.

Sitting/Dining Room: - 25'1" x 11'7" (7.64m x 3.53m)

Kitchen/Breakfast Room: - 9' x 7'10" (2.75m x 2.40m) Built in oven, built in electric hob, integrated fridge freezer, integrated dishwasher, breakfast bar.

First Floor -

Bedroom 1: - 13'5" x 9'9" (4.10m x 2.96m)

Bedroom 2: - 11'4" x 11'4" (3.46m x 3.45m) Built in wardrobe.

Bedroom 3: - 10'9" x 5'9" (3.28m x 2.18m) Built in airing cupboard housing boiler.

Bathroom: - Comprising bath with mixer tap and shower attachment, wash hand basin with drawer under, WC.

Outside -

Front: - Comprising block paved driveway providing off road parking.

Rear Garden: - Measures approximately 56' x 27' and comprises paved patio area, outside tap, area laid to lawn, mature tree.

Garage: - 17'1" x 8'6" (5.21m x 2.58) With up and over door, power and light.

Other Information -

Tenure: - Freehold

Approximate Age: - 1960's

Approximate Area: - 96sqm/1035sqft (Including garage)

Sellers Position: - No forward chain

Heating: - Gas central heating

Windows: - UPVC double glazed windows

Infant/Junior School: - Fryern Infant/Junior School

Secondary School: - Toynbee Secondary School

Council Tax: - Band C

Local Council: - Eastleigh Borough Council - 02380 688000

Agents Note: - If you have an offer accepted on a property we will need to, by law, conduct Anti Money Laundering Checks. There is a charge of £60 including vat for these checks regardless of the number of buyers involved.

Property Ref: 34228514

Share:

Similar Properties

Bodycoats Road, Chandler's Ford

2 Bedroom Detached Bungalow | £375,000

Located in the heart of Chandler's Ford on Bodycoats Road, this charming detached bungalow offers a delightful blend of...

Basing Way, Valley Park, Chandler's Ford

3 Bedroom Semi-Detached House | £375,000

This delightful three bedroom semi-detached home offers beautifully proportioned accommodation throughout. Upstairs, the...

Windsor Gate, Eastleigh

3 Bedroom Link Detached House | £375,000

A delightful 3 bedroom detached family home presented in excellent condition throughout affording a number of wonderful...

Flexford Close, Parish Of Ampfield, Chandler's Ford

3 Bedroom Semi-Detached House | £389,995

Located in the tranquil cul-de-sac of Flexford Close, backing onto woodland, within the highly desirable Parish of Ampfi...

Common Close, Hiltingbury, Chandler's Ford

2 Bedroom Detached Bungalow | £390,000

A two bedroom detached bungalow situated in a popular cul-de-sac location in a central location providing convenient acc...

Fircroft Drive, Chandler's Ford, Eastleigh

3 Bedroom Link Detached House | £395,000

A three-bedroom link-detached family home in Chandler's Ford presents an excellent opportunity for those looking to crea...

Sparks Ellison (Chandler's Ford)

Chandler's Ford, Hampshire, SO53 2GJ

02380 255333

How much is your home worth?

Use our short form to request a valuation of your property.

Request a Valuation

Mortgage Calculator

Amount Borrowed: £
Total Amount Repayable: £
Total Monthly Payment: £
©2026 The Guild of Property Professionals. All rights reserved. Terms and Conditions | Privacy Policy | Cookie Policy | Complaints Policy | Members Login
The Guild of Property Professionals Trading Address: 121 Park Lane, London W1K 7AG. GPEA Limited. Registered in England & Wales.  Company No: 02819824.  Registered Office Address: 2 St. Stephen's Court, St. Stephen's Road, Bournemouth, Dorset, England, BH2 6LA.  VAT Registration No: 576 8795 61
Book a Property Valuation Update Cookies Preferences