Chestnut Rise, Chandler's Ford

£450,000
SSTC
This property listing is now SSTC

3 Bedroom Semi-Detached House for sale in Chandler's Ford

1 3 1

Nestled in the corner of this idyllic Georgian style cul de sac location, this immaculate three bedroom semi detached home offers multiple benefits and comfortable living. The home has been completely renovated internally and externally by its current owner to a high standard throughout, enjoying a large master bedroom with built in wardrobes, two more good sized bedrooms and a family bathroom with underfloor heating on the top floor. On the ground floor the property has a separate hallway, a beautiful open kitchen/dining/living space, a downstairs cloakroom and utility area. Externally, the rear garden has been landscaped, there is a garage, parking for two cars and front garden. The home is conveniently located and is within easy reach of a public house, shops, other amenities also providing easy access to the M3, the M27, Southampton Parkway, Eastleigh train station and Southampton Airport.

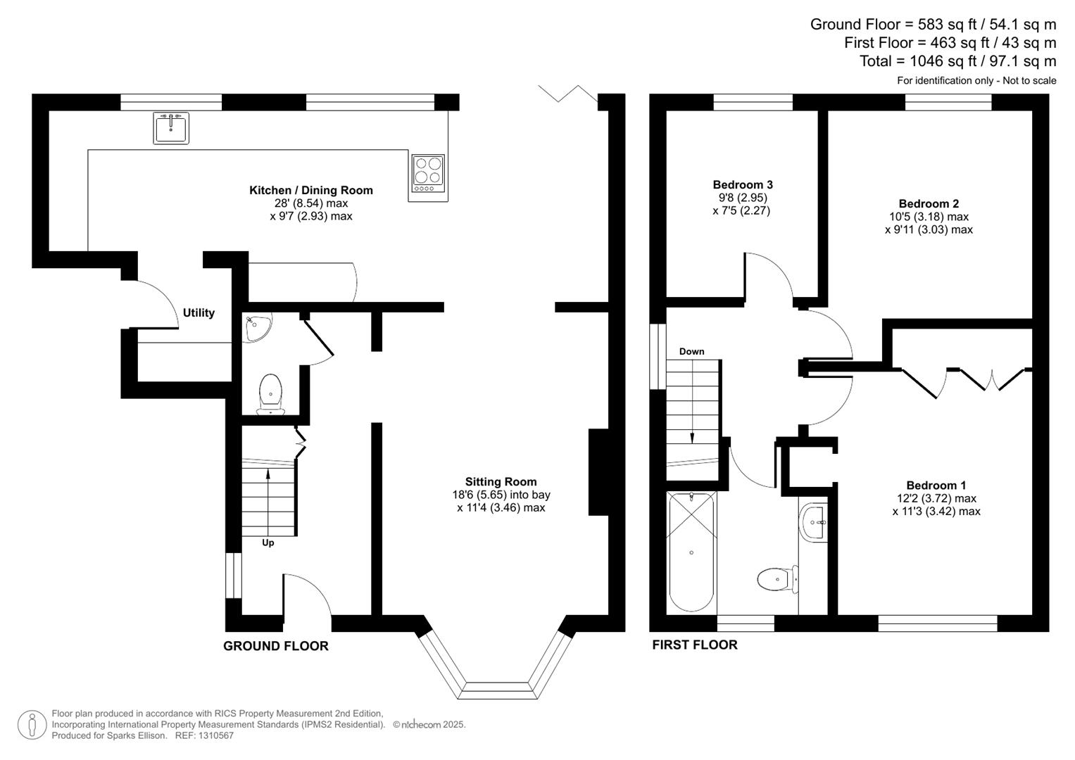
Accommodation -

Ground Floor -

Entrance Hall: - Stairs to first floor with under stairs cupboard.

Cloakroom: - White suite comprising wash basin with cupboard under, W.C.

Sitting Room: - 18'6" into bay x 11'4" (5.65m into bay x 3.46m) Large bay window, fireplace.

Kitchen/Dining Room: - 28' x 9'7" (8.54m x 2.93m) Beautiful re-fitted kitchen comprising integrated oven with electric hob, fridge, freezer, water softener, dining area with bi- fold doors into the garden.

Utility Area: - Integrated washing machine and tumble dryer, cupboard housing boiler, side door into rear garden.

First Floor -

Landing: - Access to loft space.

Bedroom 1: - 12'2" x 11'3" (3.72m x 3.42m) Two built in single wardrobes and one double.

Bedroom 2: - 10'5" x 9'11" (3.18m x 3.03m)

Bedroom 3: - 9'8" x 7'5" (2.95m x 2.27)

Bathroom: - Suite comprising white basin with grey cupboard under, bath with shower overhead, W.C, extractor, underfloor heating.

Outside -

Front: - Parking in tandem for 2 cars, area laid to Lawn. EV charging point.

Rear Garden: - Garden has been landscaped in 2020 and has an upper and lower tier. The top tier comprises of a patio area with various shrubs whilst the lower tier comprises of patio and artificial grass. There is a rear and side access.

Garage: - Single garage with electric door and power.

Other Information -

Tenure: - Freehold

Approximate Age: - 1970's

Approximate Area: - 97.1sqm/1046sqft

Sellers Position: - Looking for forward purchase

Heating: - Gas central heating with electric under floor heating in bathroom

Loft Space: - Partially boarded with ladder and light connected

Infant/Junior School: - Nightingale Primary School

Secondary School: - Crestwood Community School

Council Tax: - Band C

Local Council: - Eastleigh Borough Council - 02380 688000

Agents Note: - If you have an offer accepted on a property we will need to, by law, conduct Anti Money Laundering Checks. There is a charge of £60 including vat for these checks regardless of the number of buyers involved.

Property Ref: 33984000

Share:

Similar Properties

Common Close, Chandler's Ford, Eastleigh

4 Bedroom Detached Bungalow | £450,000

Situated in the cul-de-sac of Common Close, this detached bungalow offers a wonderful opportunity for those looking to c...

Six Oaks Road, North Baddesley, Southampton

4 Bedroom Semi-Detached House | £450,000

With a perfect blend of modernism and character features, this is a fantastic opportunity to purchase a home boasting sp...

Tuscan Walk, Peverells Wood, Chandler's Ford

3 Bedroom Detached Bungalow | £450,000

Located in the highly sought-after Peverells Wood area of Chandler's Ford is this delightful detached bungalow. With no...

Flexford Close, Parish Of Ampfield, Chandler's Ford

4 Bedroom Detached House | £465,000

A well proportioned four bedroom detached family home situated in a popular cul de sac location and located within catch...

Donnington Drive, Valley Park, Chandler's Ford

3 Bedroom Detached House | £465,000

Positioned within Donnington Drive in Chandler's Ford, this three bedroom home offers a flexible layout suited to a rang...

Leigh Road, Chandler's Ford

3 Bedroom Detached House | Offers in excess of £475,000

A fantastic opportunity to purchase a superb three bedroom family home located just a short distance to the motorway jun...

Sparks Ellison (Chandler's Ford)

Chandler's Ford, Hampshire, SO53 2GJ

02380 255333

How much is your home worth?

Use our short form to request a valuation of your property.

Request a Valuation

Mortgage Calculator

Amount Borrowed: £
Total Amount Repayable: £
Total Monthly Payment: £
©2026 The Guild of Property Professionals. All rights reserved. Terms and Conditions | Privacy Policy | Cookie Policy | Complaints Policy | Members Login
The Guild of Property Professionals Trading Address: 121 Park Lane, London W1K 7AG. GPEA Limited. Registered in England & Wales.  Company No: 02819824.  Registered Office Address: 2 St. Stephen's Court, St. Stephen's Road, Bournemouth, Dorset, England, BH2 6LA.  VAT Registration No: 576 8795 61
Book a Property Valuation Update Cookies Preferences