Castle Lane, Chandler's Ford

£495,000
SSTC
This property listing is now SSTC

3 Bedroom Semi-Detached House for sale in Chandler's Ford

1 3 1

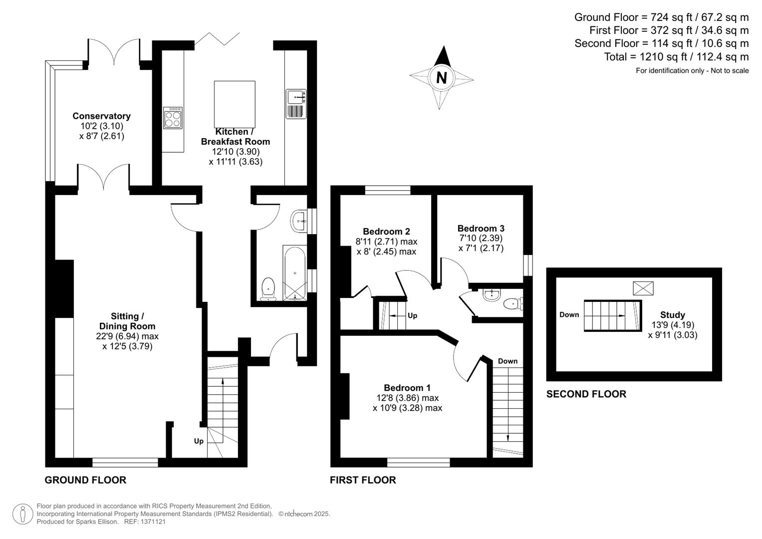
A delightful character cottage presented to an exceptionally high standard throughout benefiting from a magnificent rear garden measuring approximately 108' together with other outstanding features such as a kitchen/breakfast room with vaulted ceiling, 22'10" sitting room/dining room with fitted log burner, modern bathroom and off street parking to the front for three cars. Castle Lane is a highly regarded road located towards the southern end of Chandler's Ford providing easy and convenient access to the centre of Chandler's Ford, nearby towns and the motorway network.

Accommodation -

Ground Floor -

Reception Hall: - Under stairs cupboard, fitted cupboard housing boiler.

Sitting Room/Dining Room: - Fitted log burner, space for table and chairs, fitted cupboards and shelves in recesses, door leading to staircase to first floor, double doors to conservatory.

Conservatory: - Double doors to rear garden.

Kitchen/Breakfast Room: - Built in electric oven built in electric hob, fitted extractor hood, integrated dishwasher, integrated washing machine, integrated fridge/freezer, central island incorporating breakfast bar, bi-fold doors to rear garden, feature beam and vaulted ceiling.

Bathroom: - White suite with chrome fitments comprising bath with shower unit over, wash basin, wc.

First Floor -

Landing: - Steps up to loft space.

Bedroom 1: -

Bedroom 2: - Built in wardrobe.

Bedroom 3: -

Cloakroom: - White suite with chrome fitments comprising wash basin, wc.

Loft Space: - Velux window to rear.

Outside -

Front: - Gravel driveway affording parking for three cars, electric vehicle charging point, planted area and side access to rear garden.

Rear Garden: - Measures approximately 108' in length and representing a truly outstanding feature of the property. Adjoining the house is a full width patio with space for table and chairs and sofas leading onto a large lawn enclosed by fencing. There is a variety of mature bushes and trees along with a large log store.

Other Information -

Tenure: - Freehold

Approximate Age: - 1897

Approximate Area: - 112.4sqm/1210sqft

Sellers Position: -

Heating: - Gas central heating

Windows: - UPVC double glazed windows

Loft Space: - Fully boarded with ladder and light connected

Infant/Junior School: - St Francis Primary School

Secondary School: - Toynbee Secondary School

Council Tax: - Band D

Local Council: - Eastleigh Borough Council - 02380 688000

Agents Note: - If you have an offer accepted on a property we will need to, by law, conduct Anti Money Laundering Checks. There is a charge of £60 including vat for these checks regardless of the number of buyers involved.

Property Ref: 6224678_34261337

Share:

Similar Properties

Swanton Gardens, Chandler's Ford

4 Bedroom Detached House | £489,950

An impressive three/four bedroom detached home affording spacious well proportioned accommodation set within this quiet...

Avonborne Way, North Millers Dale, Chandler's Ford

4 Bedroom Detached House | £489,950

A four bedroom detached home situated on the popular North Millers Dale development which itself benefits from a gastro...

Leigh Road, Chandler's Ford

3 Bedroom Detached Bungalow | £475,000

A beautifully presented, and deceptively spacious, three bedroom chalet bungalow situated towards the southern end of Ch...

Shawford Road, Shawford, Winchester

2 Bedroom Flat | £500,000

Situated in the charming area of Shawford, Winchester, this modern flat on Shawford Road offers a delightful blend of co...

Wychwood Grove, Hiltingbury, Chandlers Ford

4 Bedroom Detached House | £500,000

*CASH BUYERS ONLY* A delightful 4 bedroom detached home pleasantly situated in a quiet cul-de-sac on the edge of Hilting...

Paulson Close, Chandler's Ford

3 Bedroom Detached House | £500,000

A charming three bedroom detached family home situated in an enviable central Chandler's Ford location offering easy acc...

Sparks Ellison (Chandler's Ford)

Chandler's Ford, Hampshire, SO53 2GJ

02380 255333

How much is your home worth?

Use our short form to request a valuation of your property.

Request a Valuation

Mortgage Calculator

Amount Borrowed: £
Total Amount Repayable: £
Total Monthly Payment: £
©2025 The Guild of Property Professionals. All rights reserved. Terms and Conditions | Privacy Policy | Cookie Policy | Complaints Policy | Members Login
The Guild of Property Professionals Trading Address: 121 Park Lane, London W1K 7AG. GPEA Limited. Registered in England & Wales.  Company No: 02819824.  Registered Office Address: 2 St. Stephen's Court, St. Stephen's Road, Bournemouth, Dorset, England, BH2 6LA.  VAT Registration No: 576 8795 61
Book a Property Valuation Update Cookies Preferences