Stonehill, near Charlton

£700,000
SSTC
This property listing is now SSTC

3 Bedroom Detached House for sale in Charlton

4 3 2
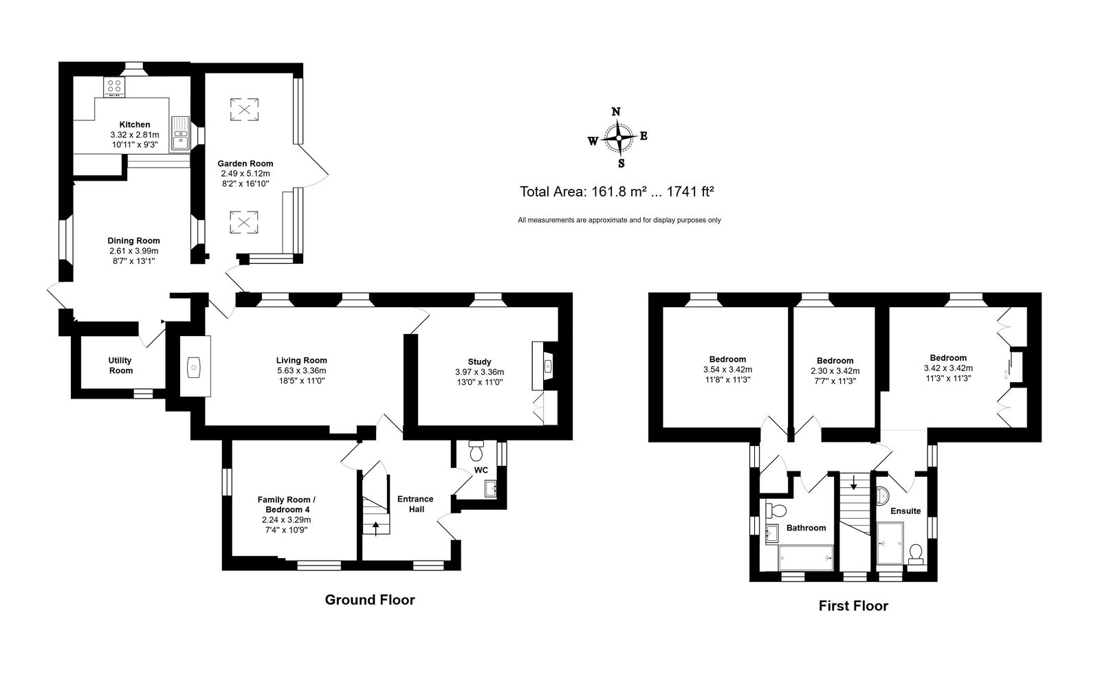
  • Detached period cottage
  • 3 bedrooms
  • 4 reception rooms
  • Kitchen/dining room
  • Large plot of 0.68 acres
  • Gated private off-street parking
  • Landscaped mature garden
  • Rural location between Charlton and Minety

Description
Foxleigh is a charming detached Cotswold cottage set within large, beautifully landscaped gardens and grounds of about 0.68 acre. The cottage has been the subject of many improvements including an oak garden room extension in recent times. The property is located in a rural location between the villages of Charlton and Minety with excellent connections to the towns of Malmesbury and Cricklade.  
 
There is ample reception space with four reception rooms as well as an excellent open plan kitchen/dining room with a high vaulted ceiling above. The living room features a magnificent inglenook stone fireplace with a wood-burning stove inset. On the first floor, there are three bedrooms, the principal of which with an en-suite, alongside a further shower room. One of the ground floor reception rooms could be utilised as a fourth bedroom if required. 
 
The property lends itself to further enlargement and in March 2024 planning permission was granted to create the a wraparound fashionable kitchen/family room at the rear. This has potential to add a further bedroom above (subject to additional planning). 
 
The exterior of the property is a fantastic feature having been thoughtfully designed with a large paved terrace ideal for entertaining and a hot tub area looking across the fields beyond. The grounds are laid mostly to lawn interspersed with vibrant flower beds. A gated driveway opens to ample parking over a gravelled driveway while there is a secondary driveway access. 
Situation
The property is rurally located between the villages of Charlton and Minety. Charlton is a desirable village with an excellent public house 'The Horse & Groom', a parish church and village hall as well as a beautiful cricket ground and playing fields close by. Located 2 miles to the east, Minety has a village shop, primary school, and pre-school. Malmesbury is the nearest town (about three miles) and is reputed to be the oldest borough in England created by Charter in 880 AD by Alfred the Great. Today, the High Street has numerous independent shops, pubs, restaurants and cafes, there is also a new Waitrose store and a regular weekly Farmer's market. The town has an excellent choice of both primary and secondary schools and very good recreational and leisure facilities. The M4 motorway Junction 17 to the south provides fast road access to Bristol and the West Country while Junction 16 gives access to London. Main line rail services are available from Chippenham, Swindon and Kemble (Paddington in about 75 minutes).
Additional Information
The property is Freehold with oil-fired heating, private drainage, mains water and electricity. Ultrafast broadband is available and there is good mobile phone coverage with some limitations. Information taken from the Ofcom mobile and broadband checker website, please check the website for more information. Wiltshire Council Tax Band F. 

Important Information

  • This is a Freehold property.
  • This Council Tax band for this property is: F

Property Ref: 840465

Share:

Similar Properties

The Street, Crudwell

4 Bedroom Cottage | £700,000

A charming semi-detached 3-bedroom Victorian cottage with a 1-bedroom annexe. Situated in this highly sought-after villa...

Waterside, Castle Combe

4 Bedroom Cottage | Guide Price £695,000

A magnificent Grade II listed double-fronted period cottage commanding Castle Combe's most iconic setting overlooking th...

The Tarters, Sherston

3 Bedroom Detached House | £695,000

Boasting a fantastic position backing onto countryside with a south-facing garden, this detached modern home has been ex...

Pinkney, Near Sherston

4 Bedroom Semi-Detached House | £725,000

Thoughtfully upgraded and extended, a beautifully presented Victorian semi-detached home. 4 bedrooms, 3 reception rooms,...

Farleaze, near Sherston

3 Bedroom Barn Conversion | £725,000

A stunning contemporary barn conversion with 1 acre of grounds, set amongst beautiful countryside with westerly views. 

Dormers Close, Tetbury

4 Bedroom Detached House | £725,000

Situated within this sought-after leafy close backing onto fields, this attractive double fronted detached house is an e...

James Pyle & Co (Sherston)

Swan Barton, Sherston, Wiltshire, SN16 0LJ

01666 840886

How much is your home worth?

Use our short form to request a valuation of your property.

Request a Valuation

Mortgage Calculator

Amount Borrowed: £
Total Amount Repayable: £
Total Monthly Payment: £
©2026 The Guild of Property Professionals. All rights reserved. Terms and Conditions | Privacy Policy | Cookie Policy | Complaints Policy | Members Login
The Guild of Property Professionals Trading Address: 121 Park Lane, London W1K 7AG. GPEA Limited. Registered in England & Wales.  Company No: 02819824.  Registered Office Address: 2 St. Stephen's Court, St. Stephen's Road, Bournemouth, Dorset, England, BH2 6LA.  VAT Registration No: 576 8795 61
Book a Property Valuation Update Cookies Preferences