Campion Close, Chatham, ME5

Offers in excess of
£315,000
SSTC
This property listing is now SSTC

3 Bedroom Terraced House for sale in Chatham

1 3 1
  • Three Bedroom Terrace
  • Modern Fitted Kitchen/Diner
  • Conservatory
  • Immaculate Condition Throughout
  • Parking for Two Cars
  • Ideal First Time Buyers Home
  • Excellent Order Throughout

You will not be disappointed as we offer to the market this three bedroom home. This lovely home is ready to move into and would suit the first time buyer or the growing family. On entering the property comprises of an entrance porch and hallway leading through to a good size lounge with patio doors which lead through to the conservatory. The kitchen/diner is a great space as it offers a range of modern fitted floor to ceiling units with worksurfaces and breakfast bar. Also with integrated appliances, this to include double oven, gas hob, extractor oven and wine cooler. French doors lead out to the rear garden.

Moving upstairs you are welcomed to three good size bedrooms, all fitted with contemporary style slide wardrobes. Externally, the garden is mainly laid to lawn with fence surround patio area and brick built storage, shared side access to the front with driveway for two cars. Access to local schools and amenities and convenient location to Chatham Town Centre with its mainline station.

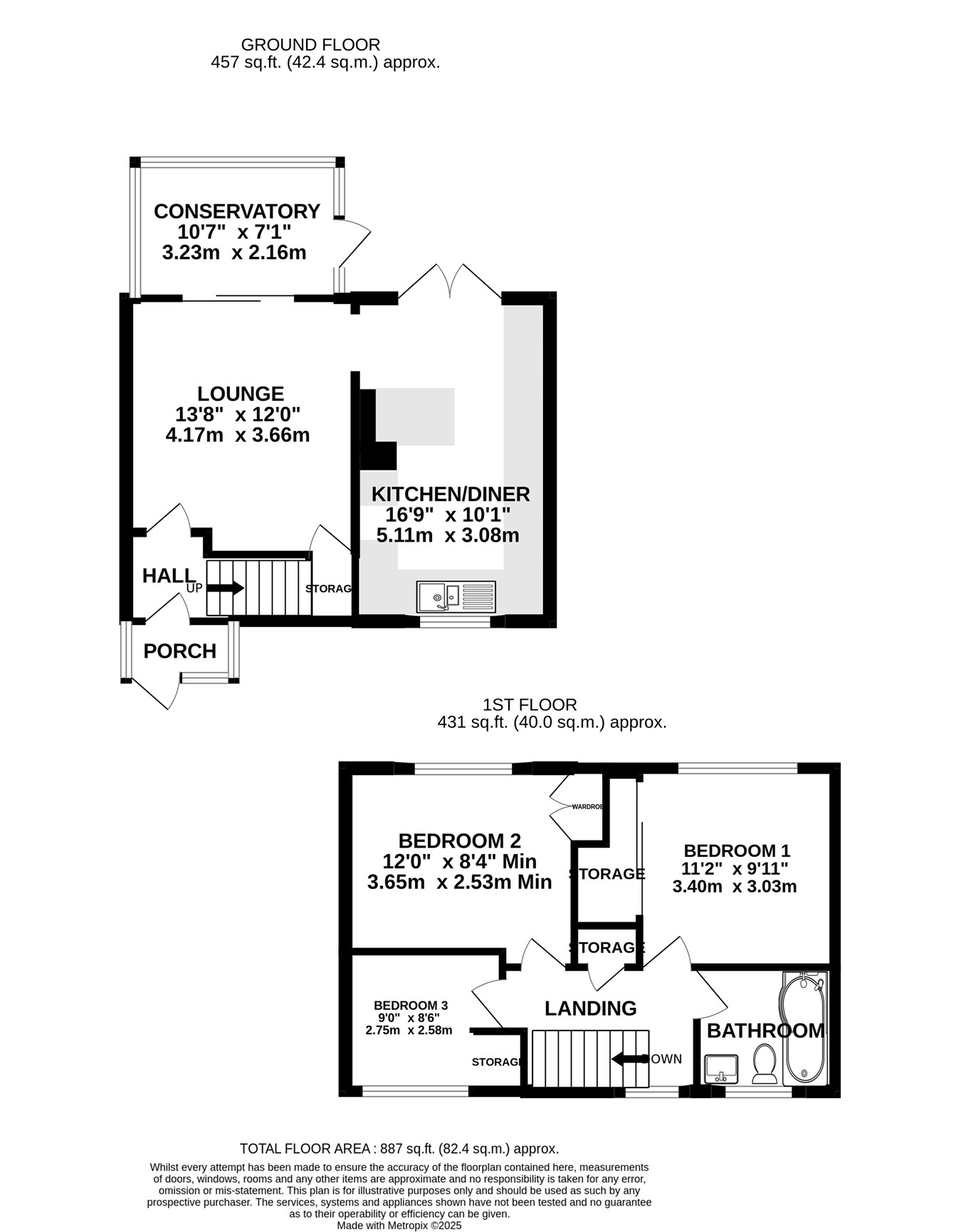
Ground Floor


Porch


Lounge
13' 8" x 12' 0" (4.17m x 3.66m)

Kitchen/Diner
16' 9" x 10' 1" (5.11m x 3.07m)

Conservatory
10' 7" x 7' 1" (3.23m x 2.16m)

First Floor


Bedroom 1
11' 2" x 9' 11" (3.40m x 3.02m)

Bedroom 2
12' 0" x 8' 4" (3.66m x 2.54m)

Bedroom 3
9' 0" x 8' 6" (2.74m x 2.59m)

Bathroom
7' 0" x 5' 7" (2.13m x 1.70m)

Important Information

  • This is a Freehold property.

Property Ref: 5093134_29408045

Share:

Similar Properties

Meadside Walk, Chatham, ME5

3 Bedroom End of Terrace House | Guide Price £300,000

Guide Price £300,000 - £325,000No chain. This end of terrace house is ideal for either first time buyers or a growing fa...

Birch Drive, Lordswood, Chatham, ME5

3 Bedroom Terraced House | Offers in excess of £300,000

Lordswood location. Popular cul-de-sac with convenient access to local amenities & M2/M20 road links. The current vendor...

Woodbury Road, Walderslade Woods, Chatham, ME5

2 Bedroom Semi-Detached House | Offers Over £300,000

Rarely do properties become available in this location. This is an opportunity for the first time buyer to purchase this...

Bower Green, Lordswood, Chatham, ME5

3 Bedroom End of Terrace House | Offers Over £320,000

No chain! Offering versatile living accommodation and situated in the popular Lordswood area with shops, schools & ameni...

Courtfield Avenue, Lordswood, Chatham, ME5

3 Bedroom Semi-Detached House | Guide Price £325,000

Guide Price £325,000 - £350,000Situated in a popular road in the Lordswood area with local schools and amenities. Lordsw...

Woodchurch Close, Walderslade, Chatham, ME5

3 Bedroom Semi-Detached House | Offers in excess of £325,000

No chain! Ideal first buy or investment for those looking for a property with local amenities and schools, plus easy acc...

Greyfox Sales & Lettings (Walderslade)

Walderslade Village Centre, Walderslade, Walderslade, Kent, ME5 9LR

01634 672227

How much is your home worth?

Use our short form to request a valuation of your property.

Request a Valuation

Mortgage Calculator

Amount Borrowed: £
Total Amount Repayable: £
Total Monthly Payment: £
©2025 The Guild of Property Professionals. All rights reserved. Terms and Conditions | Privacy Policy | Cookie Policy | Complaints Policy | Members Login
The Guild of Property Professionals Trading Address: 121 Park Lane, London W1K 7AG. GPEA Limited. Registered in England & Wales.  Company No: 02819824.  Registered Office Address: 2 St. Stephen's Court, St. Stephen's Road, Bournemouth, Dorset, England, BH2 6LA.  VAT Registration No: 576 8795 61
Book a Property Valuation Update Cookies Preferences