Rookes Crescent, Nr City Centre, Chelmsford

Offers in excess of
£230,000
SSTC
This property listing is now SSTC

2 Bedroom Apartment for sale in Chelmsford

1 2 2
  • NO ONWARD CHAIN!!
  • EXTENDED LEASE & ZERO (PEPPERCORN) GROUND RENT
  • EN-SUITE To Master Bedroom
  • Two DOUBLE Bedrooms
  • Modern FIRST FLOOR Apartment
  • Walking Distance to Chelmsford City Centre & Station
  • PRIVATE PARKING For Residents
  • Ideal For First Time Buyers & Investors!

**NO ONWARD CHAIN!!**Boasting an EXTENDED LEASE and ZERO (PEPPERCORN) GROUND RENT plus the benefit of an EN-SUITE and TWO DOUBLE BEDROOMS is this spacious first floor apartment located within walking distance to Chelmsford's mainline Station. Offering a SPACIOUS LOUNGE/DINER, fitted kitchen, entrance hall, fitted bathroom and PRIVATE PARKING for residents. Ideal as a first time buy, for commuters or buy to let!

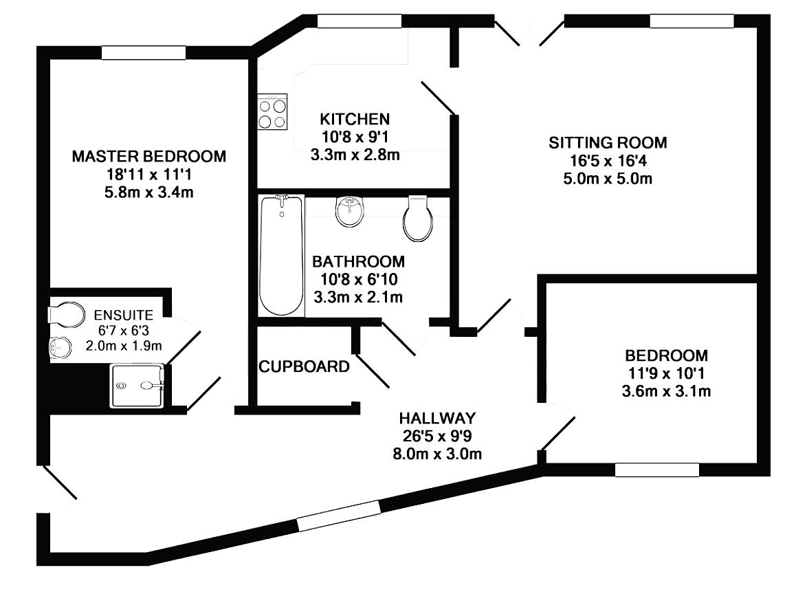
Communal Entrance: - Secure private telephone entry system, ***communal entrance only serving one other property***, stairs to first floor, entrance door to flat.

Entrance Hall: - Double glazed window to rear, doors to lounge, bedroom one, bedroom two, bathroom.

Lounge: - 4.42m > 3.66m x 4.22m (14'6" > 12' x 13'10") - Double glazed window to front, double glazed french doors to Juliet balcony, storage heater, door to kitchen, wood effect flooring.

Kitchen: - 2.82m x 2.59m (9'3" x 8'6") - Double glazed window to front, range of wall and base units, rolled edge work surfaces with stainless steel sink inset, integrated low level oven, electric hob, space for fridge freezer, washing machine, part tiled walls.

Bedroom One: - 5.00m > 2.90m x 3.15m (16'5" > 9'6" x 10'4") - Double glazed window to front, door to en-suite, storage heater, wood effect flooring.

En-Suite: - Fully tiled shower cubicle, wall mounted hand wash basin, low level W/C, part tiled walls.

Bedroom Two: - 3.23m x 2.51m (10'7" x 8'3") - Double glazed window to rear, storage heater.

Bathroom: - 2.21m x 1.68m (7'3" x 5'6") - Panel bath, wall mounted hand wash basin, low level W/C, part tiled walls, tiled flooring.

Agent Notes: - Council Tax Band: C

Leasehold Information: - Years Remaining: 189
Service Charge: £1489 Per Annum
Ground Rent: Peppercorn Ground Rent Under Terms of Extended Lease

For further information regarding this property, please Contact Hamilton Piers.

Property Ref: 42829_32001762

Share:

Similar Properties

Waveney Drive, Chelmsford

2 Bedroom Maisonette | £230,000

Having been RENOVATED THROUGHOUT, and due to shortly be fitted with NEW CARPET & FLOORING, is this IMMACULATE ground flo...

Derwent Court, Hobart Close, Chelmsford

2 Bedroom Apartment | £230,000

Boasting a VERY LONG LEASE plus two DOUBLE bedrooms and ALLOCATED PARKING is this IMMACULATELY PRESENTED ground floor ap...

Tamar Rise, Springfield, Chelmsford

2 Bedroom Not Specified | £230,000

Offered for sale is this GROUND FLOOR maisonette, boasting a spacious lounge, TWO DOUBLE BEDROOMS, modern kitchen and ba...

Springfield Road, Chelmsford, CM2

2 Bedroom Apartment | Guide Price £233,500

An IMMACULATELY PRESENTED apartment that boasts TWO GOOD-SIZED BEDROOMS and a LARGE OPEN-PLAN LOUNGE with a dining area...

Bonington Chase, Springfield, Chelmsford

1 Bedroom End of Terrace House | Offers in excess of £235,000

Hamilton Piers of Springfield are pleased to offer for sale THE PERFECT FREEHOLD STARTER HOME, offering a modern OPEN PL...

Rainsford Road, Chelmsford

1 Bedroom Flat | £235,000

Offered for sale is this IMMACULATE, CITY CENTRE, second floor apartment, within a stone's throw away from Chelmsford tr...

Hamilton Piers - Chelmsford (Chelmsford)

4 Torquay Road, Springfield, Chelmsford, Essex, CM1 6NF

01245 269777

How much is your home worth?

Use our short form to request a valuation of your property.

Request a Valuation

Mortgage Calculator

Amount Borrowed: £
Total Amount Repayable: £
Total Monthly Payment: £
©2026 The Guild of Property Professionals. All rights reserved. Terms and Conditions | Privacy Policy | Cookie Policy | Complaints Policy | Members Login
The Guild of Property Professionals Trading Address: 121 Park Lane, London W1K 7AG. GPEA Limited. Registered in England & Wales.  Company No: 02819824.  Registered Office Address: 2 St. Stephen's Court, St. Stephen's Road, Bournemouth, Dorset, England, BH2 6LA.  VAT Registration No: 576 8795 61
Book a Property Valuation Update Cookies Preferences