Lynmouth Avenue, Chelmsford, CM2

Guide Price
£695,000

4 Bedroom Detached House for sale in Chelmsford

3 4 2
  • Highly sought-after Old Moulsham location, within walking distance of Chelmsford city centre, Moulsham Street and the mainline station to London Liverpool Street.
  • Individually designed four-bedroom detached family home offering over 1,500 sq ft of versatile accommodation across three floors.
  • Spacious L-shaped lounge/dining room with Orangery extension, creating an ideal space for modern family living and entertaining.
  • Stylishly refitted kitchen featuring integrated appliances
  • Flexible second-floor room suitable as a fourth bedroom, family room, home office or playroom.
  • Approx. 80ft private rear garden and block paved driveway providing off-road parking, offered for sale with no onward chain.

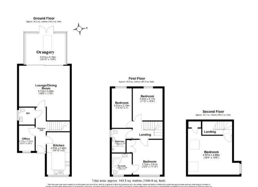
Situated in the highly sought-after Old Moulsham area of Chelmsford, this individually designed four-bedroom detached family home offers spacious and versatile accommodation arranged across three floors and is offered for sale with no onward chain.

The property has been thoughtfully improved by the current owners and provides over 1,500 sq ft of well-presented living space, ideal for modern family living. The ground floor features a welcoming reception hall, a useful study, and a contemporary cloakroom, together with a generous L-shaped lounge/dining room that forms the heart of the home. Double doors lead through to a bright and airy Orangery which overlooks and opens onto the rear garden, creating an excellent space for relaxing or entertaining.

The kitchen has been stylishly refitted and is equipped with a comprehensive range of units and work surfaces, integrated appliances and a freestanding Rangemaster cooker, with space for an American-style fridge freezer which is to remain.

The first floor provides three well-proportioned bedrooms, including a principal bedroom with fitted wardrobes and a modern en-suite shower room. A further contemporary family bathroom serves the remaining bedrooms.

The second floor offers a further spacious room which is currently utilised by the vendors as an additional reception area; however, it would equally serve well as a fourth bedroom, family room, playroom, home office, library or reading room, offering excellent flexibility to suit a range of lifestyles.

Externally the property benefits from a private rear garden extending to approximately 80ft, commencing with a paved patio area and mainly laid to lawn with mature planting and a decked seating area to the rear. To the front of the property there is a block paved driveway providing off road parking.

Old Moulsham remains one of Chelmsford’s most desirable residential areas, being within walking distance of Moulsham Street’s independent shops, restaurants and cafés, highly regarded schools and Chelmsford city centre with its mainline railway station providing direct services to London Liverpool Street.

Recessed Porch
Covered entrance with front door leading to:

Reception Hall
A welcoming entrance with engineered oak flooring, radiator and staircase rising to the first floor.

Cloakroom
Refitted modern suite comprising low level WC and vanity wash hand basin. Tiled flooring, radiator and double glazed window.

Study
8'1 x 5'7
Ideal home office with engineered oak flooring, radiator, fitted shelving and window to the front aspect.

Lounge / Dining Room
18'3 x 14'1
A spacious L-shaped reception room featuring engineered oak flooring, two radiators and an under-stairs storage cupboard. French doors with side panels lead through to the Orangery.

Orangery
13'2 x 10'1
A bright and attractive addition to the property, glazed on three sides with French doors opening to the garden. Skylight roof and recessed spot lighting.

Kitchen
14'0 x 8'0
Refitted with a range of modern base and wall mounted units with work surfaces over and integrated appliances. Space for American-style fridge freezer (to remain) and fitted Rangemaster cooker with extractor hood above. Tiled flooring, radiator, recessed lighting and window to the front aspect.

First Floor Landing
Stairs rising to the second floor and window to the side aspect.

Bedroom One
11'2 x 10'0
Double bedroom with fitted four door wardrobes, radiator and window to the front aspect.

En-Suite Shower Room
Modern suite comprising corner shower enclosure, low level WC and vanity wash hand basin. Heated towel rail, recessed lighting, underfloor heating and window to the front.

Bedroom Two
10'8 x 10'5
Double bedroom with fitted wardrobes and shelving, radiator and window overlooking the rear garden.

Bedroom Three
13'9 x 7'1
Radiator and window to the rear aspect.

Family Bathroom
Modern suite comprising panel enclosed bath with shower over, vanity wash hand basin and low level WC. Heated towel rail, recessed lighting and window to the side.

Second Floor Landing
Skylight window and built in storage cupboard.

Bedroom Four / Family Room
14'3 x 10'0 (max 15'5)
A versatile top floor room currently utilised by the vendors as an additional reception/family room. This space would also make an excellent fourth bedroom, playroom, reading room, library or home office. Three skylight windows provide excellent natural light and there are built-in storage cupboards and useful eaves storage.

Exterior
The property occupies a generous plot with a rear garden measuring approximately 80ft in length. The garden begins with a paved patio seating area, leading to a lawn with established flower and shrub borders and a timber decked seating area to the rear. The garden enjoys a good degree of privacy and seclusion.

Side access leads to the front of the property where a block paved driveway provides off road parking.

Important Information

  • This is a Freehold property.

Property Ref: 30015643

Share:

Similar Properties

Vicarage Road, Chelmsford, CM2

4 Bedroom Semi-Detached House | Guide Price £685,000

Charming 4-Bedroom Period Home in Sought-After Old Moulsham – No Onward ChainGuide Price: £685,000 - £700,000Welcome to...

Moulsham Drive, Chelmsford, CM2

4 Bedroom Semi-Detached House | Guide Price £535,000

If you're looking for a family home located within Old Moulsham, close to the City Centre and in the catchment area to p...

Goldlay Avenue, Chelmsford, CM2

3 Bedroom Semi-Detached House | Offers in excess of £525,000

Recently refurbished and offered with no onward chain, this beautifully modernised three-bedroom semi-detached home is s...

Oaklands Crescent, Chelmsford, CM2

6 Bedroom Detached House | Guide Price £800,000

*** GUIDE PRICE £800,000 to £850,000 ****** NO ONWARD CHAIN ***NO ONWARD CHAIN – RARELY AVAILABLE DETACHED HOME IN PRIME...

Hamlet Road, Chelmsford, CM2

3 Bedroom Detached House | Guide Price £950,000

Hamlet Road, Old Moulsham, Chelmsford, CM2A Rare Double Plot in the Heart of Old MoulshamGuide Price: £950,000Freehold A...

The Street, Roxwell, Chelmsford, CM1

7 Bedroom Country House | Guide Price £3,250,000

A rare opportunity to acquire an exceptional country home of outstanding historic interest, offering extensive and versa...

McCartney Estate Agents (Chelmsford)

74 Moulsham Street, Chelmsford, Essex, CM2 0JA

01245 266980

How much is your home worth?

Use our short form to request a valuation of your property.

Request a Valuation

Mortgage Calculator

Amount Borrowed: £
Total Amount Repayable: £
Total Monthly Payment: £
©2026 The Guild of Property Professionals. All rights reserved. Terms and Conditions | Privacy Policy | Cookie Policy | Complaints Policy | Members Login
The Guild of Property Professionals Trading Address: 121 Park Lane, London W1K 7AG. GPEA Limited. Registered in England & Wales.  Company No: 02819824.  Registered Office Address: 2 St. Stephen's Court, St. Stephen's Road, Bournemouth, Dorset, England, BH2 6LA.  VAT Registration No: 576 8795 61
Book a Property Valuation Update Cookies Preferences