Denbigh Road, Cheltenham

£130,000

Plot for sale in Cheltenham, Glos

  • A Fantastic Opportunity To Purchase A Rarely Available Building Plot
  • For A Desirable Detached Three Bedroom Family Home Spanning Over 1200sqft
  • Arranged Over Three Floors, Spacious Entrance Hall, Cloakroom
  • Open Plan Living/Dining/Kitchen Area With Featured Glazed Doors Onto The Private Rear Garden
  • Master Bedroom On The Second Floor With Velux Roof Lights
  • Off Road Parking, Enclosed Private Rear Garden

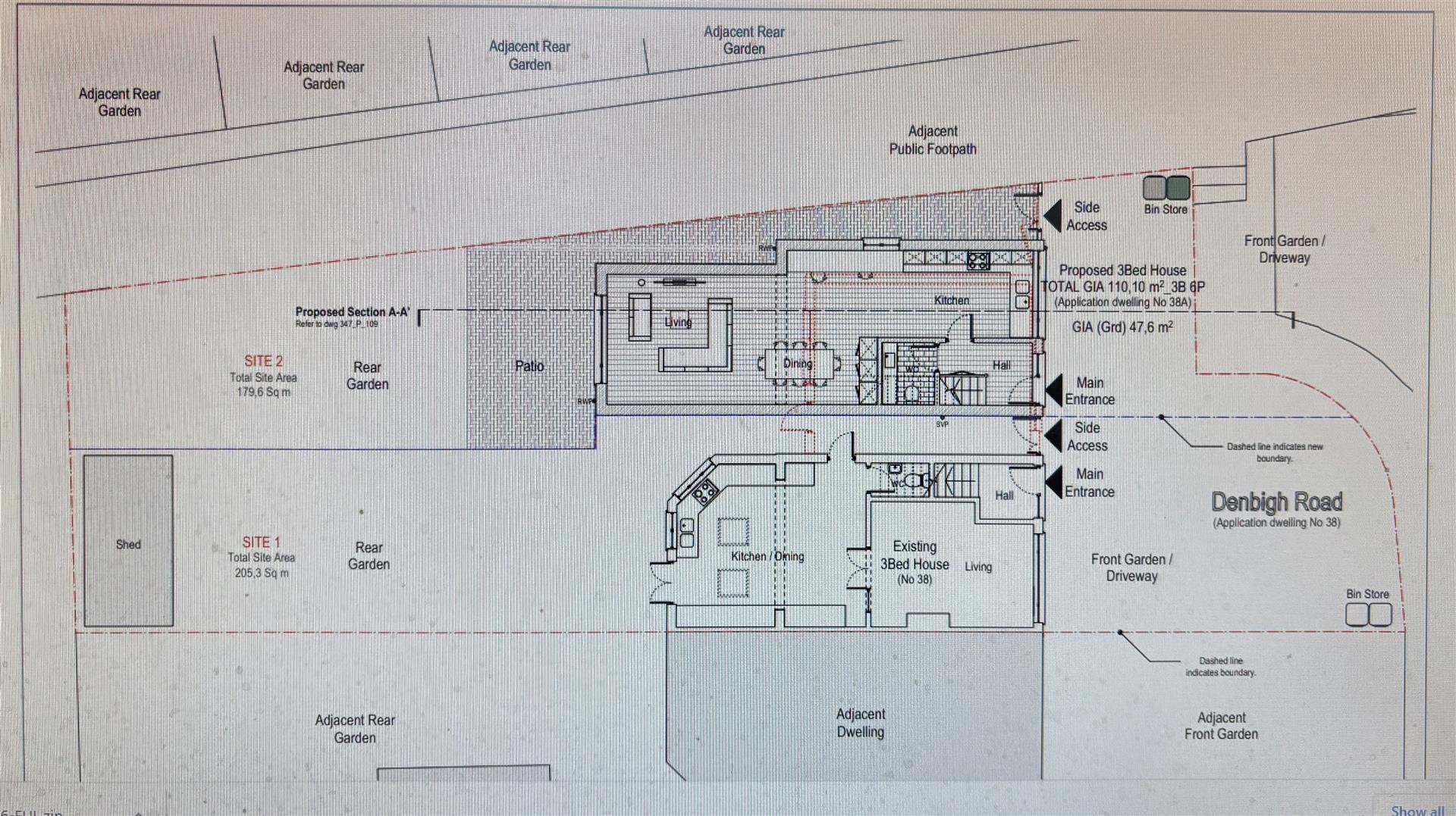
A FANTASTIC OPPORTUNITY to purchase a RARELY AVAILABLE BUILDING PLOT for a DESIRABLE DETACHED THREE BEDROOM FAMILY HOME spanning over 1200sqft in this desirable location.

The accommodation is arranged over three floors and comprises spacious entrance hall, cloakroom, open plan living/dining/kitchen area with featured glazed doors onto the private rear gardens. To the first floor are two double bedrooms and family bathroom with the master being located on the second floor with Velux roof lights, storage cupboard and eves storage.

The property will also benefit from OFF ROAD PARKING and an ENCLOSED REAR GARDEN.

We believe that the future value of the property once completed would be in the region of ?425,000 depending on the specification.

Cheltenham is a town in Gloucestershire, home to the renowned Cheltenham Festival, 4 days of horse jump racing culminating in the Gold Cup, held annually in March at Cheltenham Racecourse. It's also known for Regency buildings, including the Pittville Pump Room, a remnant of Cheltenham's past as a spa town. There's fine art at The Wilson museum, and the Victorian Everyman Theatre has an ornate auditorium.

Planning Reference Number - 21/00916/FUL

Additional Information - There is a CIL Payment (Community Infrastructure Levy) of ?12,259.00.

The drainage costs are estimated at ?15,000.

Directions - At the Arle Court roundabout that the 4th exit into Hatherley Lane then take the 1st exit and stay on Hatherley Lane. Turn left into Caernarvon Road left into Denbigh Road where the plot can be found on the right hand side.

Agents Note - Please note, the main images are an artists impression of the finished product.

Property Ref: 34509880

Share:

Similar Properties

Kiln Close, Gloucester

1 Bedroom Flat | £130,000

A WELL PRESENTED Leasehold first floor ONE DOUBLE BEDROOM flat situated in a GREAT LOCATION close to the city centre and...

Overbrook Road, Hardwicke, Gloucester

1 Bedroom Apartment | £108,000

VERY WELL PRESENTED ONE BEDROOM FIRST FLOOR APARTMENT with ALLOCATED OFF ROAD PARKING, upvc double glazing, MODERN FITTE...

Staverton Park, Staverton, Cheltenham

2 Bedroom Park Home | £99,950

CHAIN FREE TWO BEDROOM PARK HOME FOR THE OVER 45's that offers MAINS GAS FIRED CENTRAL HEATING, fitted kitchen units, a...

Thoresby Avenue, Tuffley, Gloucester

Plot | £139,950

A RARELY AVAILABLE BUILDING PLOT for the erection of TWO ATTACHED DWELLINGS with associated works situated in a convenie...

Harescombe Drive, Gloucester

2 Bedroom Maisonette | £140,000

PUBLIC NOTICE 9 Harescombe Drive, Gloucester, GL1 3LE We are acting in the sale of the above property and have received...

London Road, Gloucester

2 Bedroom Apartment | £150,000

A WELL PRESENTED GROUND FLOOR TWO BEDROOM APARTMENT situated in a convenient location and is offered with NO ONWARD CHAI...

Steve Gooch Estate Agents (Gloucester)

Tuffley, Gloucester, Gloucestershire, GL4 0QJ

01452 505566

How much is your home worth?

Use our short form to request a valuation of your property.

Request a Valuation

Mortgage Calculator

Amount Borrowed: £
Total Amount Repayable: £
Total Monthly Payment: £
©2026 The Guild of Property Professionals. All rights reserved. Terms and Conditions | Privacy Policy | Cookie Policy | Complaints Policy | Members Login
The Guild of Property Professionals Trading Address: 121 Park Lane, London W1K 7AG. GPEA Limited. Registered in England & Wales.  Company No: 02819824.  Registered Office Address: 2 St. Stephen's Court, St. Stephen's Road, Bournemouth, Dorset, England, BH2 6LA.  VAT Registration No: 576 8795 61
Book a Property Valuation Update Cookies Preferences