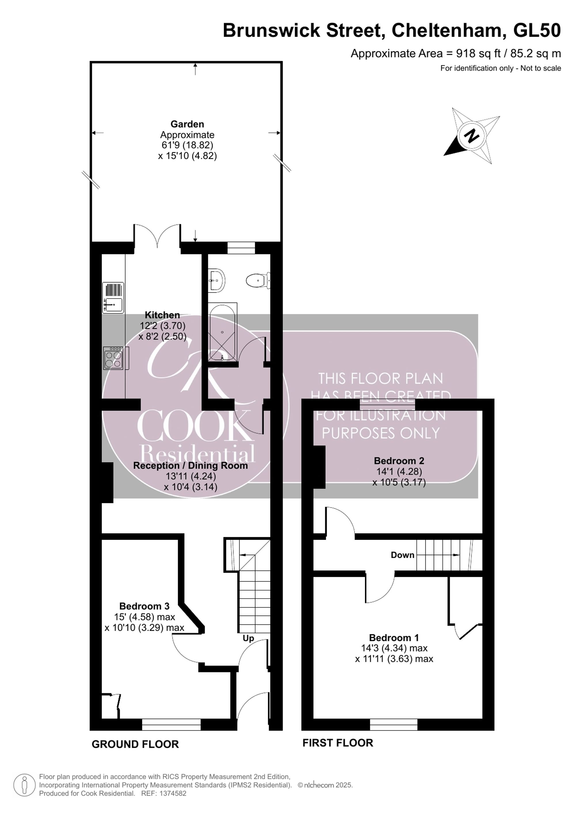
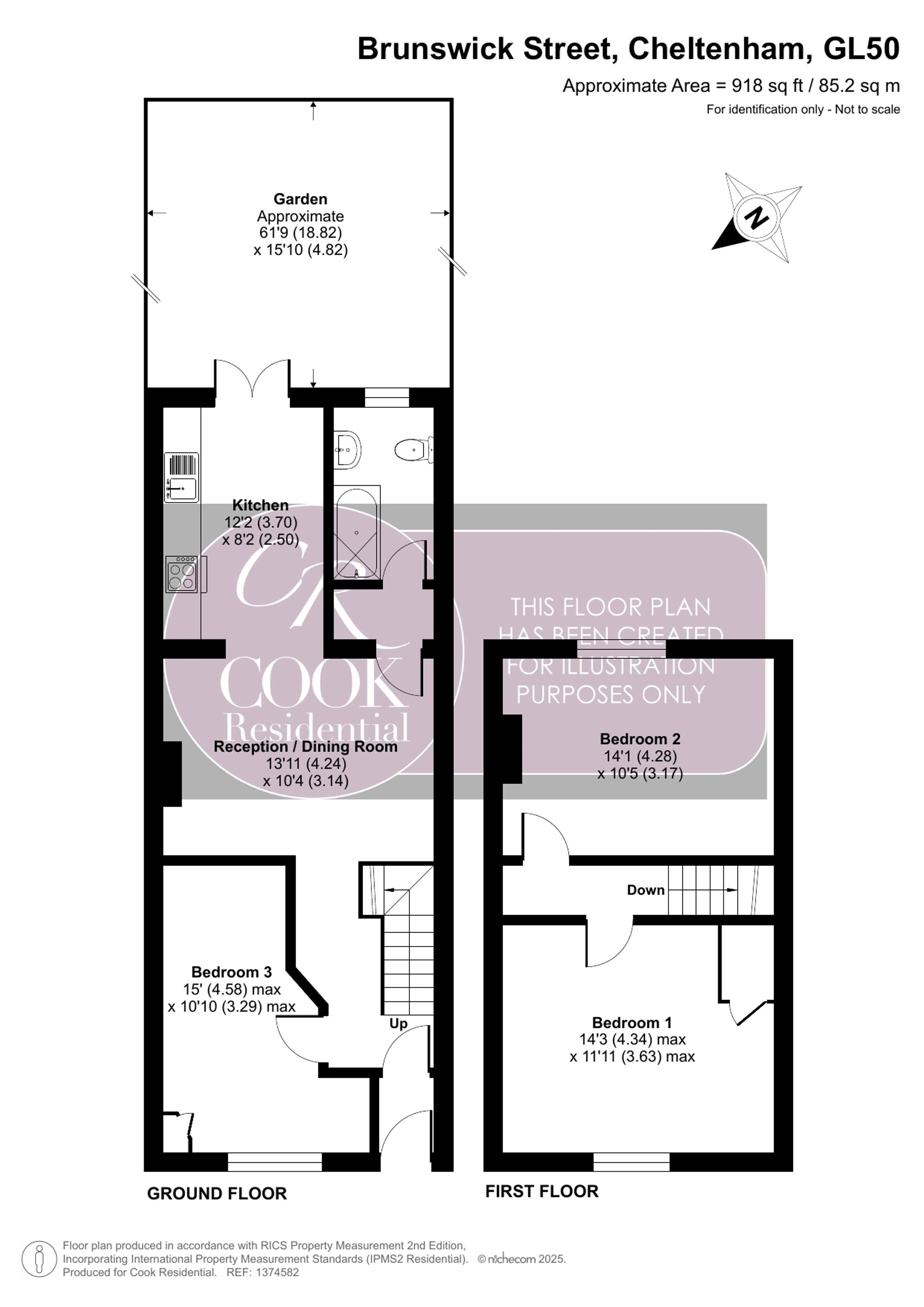
Brunswick Street, Cheltenham, GL50

Guide Price
£240,000

2 Bedroom Terraced House for sale in Cheltenham

2 2 1
  • No Onward Chain
  • Ideal Investment or First-Time Purchase
  • Two Double Bedrooms
  • Two Reception Rooms
  • Enclosed Rear Garden with Patio and Lawn
  • Popular Central Location Close to Town Centre and Brewery Quarter
  • Permit Parking Available Via Application

A two-bedroom terraced home situated within the popular St Paul’s area of Cheltenham, offered for sale with no onward chain. This property provides a fantastic opportunity for first-time buyers or investors seeking a well-located home within easy reach of the town centre, Brewery Quarter, and the University of Gloucestershire.

Entrance Hall: The property is entered via the front door into the hallway, where stairs rise to the first floor and there is access to the ground floor accommodation.

Sitting Room: Located at the front of the property, the sitting room enjoys a generous layout with space for both seating and storage. A large window allows in plenty of natural light, and the room offers versatility to create a comfortable living or work-from-home space.

Reception/Dining Room: Positioned at the heart of the home, this second reception room provides a sociable space ideal for dining or relaxing. An archway opens directly through to the kitchen, and there is a door leading to the ground-floor bathroom.

Kitchen: The kitchen is fitted with a range of wall and base units, work surfaces, tiled splashbacks, and space for appliances. There is an integrated oven with hob and extractor above, as well as plumbing for a washing machine. French doors open directly onto the rear garden, creating a bright and practical cooking and dining environment.

Bathroom: The ground-floor bathroom comprises a panelled bath with shower fitting above, pedestal wash hand basin, WC, and a window providing natural light and ventilation.

First Floor Landing: The landing provides access to both bedrooms.

Bedroom One: A generous double bedroom located at the front of the property, featuring a large window allowing natural light and a useful built-in storage cupboard. There is ample space for additional furnishings, creating a comfortable and practical main bedroom.

Bedroom Two: Another well-proportioned double bedroom positioned to the rear, with a window overlooking the garden and space for wardrobes or storage.

Outside: The rear garden is enclosed by fencing and brick walling, with a paved patio leading onto a lawned area offering potential for landscaping or further development (subject to the necessary consents).

Additional Details:
Tenure: Freehold
Council Tax Band: A

Location: Brunswick Street is located within the popular St Paul’s district of Cheltenham, within easy walking distance of the Brewery Quarter, town centre amenities, and Pittville Park. The area is well-served by local shops, cafes, and supermarkets, and offers convenient access to major road links including the A40 and M5. Cheltenham is famed for its Regency architecture, festivals, and racecourse, offering an excellent lifestyle with a wealth of leisure, cultural, and sporting facilities.

Important Notice: These particulars are prepared in good faith and do not form part of any contract. All measurements, descriptions, fixtures and fittings are approximate. Cook Residential accepts no liability for errors or omissions, and prospective purchasers should verify all details independently. All information relating to tenure and boundaries to be verified by purchaser’s solicitor. All measurements and details provided are for guidance only.

Energy Efficiency Current: 73.0
Energy Efficiency Potential: 88.0

Important Information

  • This is a Freehold property.
  • This Council Tax band for this property is: A

Property Ref: 05667cba-b778-4e4f-a816-a67b3cf1e0e9

Share:

Similar Properties

Evesham Road, Pittville

2 Bedroom Apartment | Guide Price £230,000

Tanners Road, Cheltenham

2 Bedroom Terraced House | Guide Price £230,000

Spacious 2-bed terraced home with garden, outbuildings, and off-road parking in popular Cheltenham location. Bright inte...

Marchant Close, Cheltenham

2 Bedroom End of Terrace House | Guide Price £230,000

Tom Price Close, Fairview

2 Bedroom End of Terrace House | Guide Price £250,000

Charming 2-bed home in Fairview near Cheltenham town centre. Private gardens, parking, open-plan living, and convenient...

Linwell Close, Wyman's Brook

3 Bedroom Semi-Detached House | Guide Price £260,000

Cook Residential is delighted to present this spacious three bedroom semi detached home, offered with no onward chain an...

Glebe Farm Court, Up Hatherley

2 Bedroom Semi-Detached Bungalow | Guide Price £260,000

This well presented two bedroom bungalow is part of Anchor Hanover’s Glebe Farm Court development, reserved for the over...

Cook Residential (Cheltenham)

Winchcombe Street, Cheltenham, Gloucestershire, GL52 2NF

01242 500259

How much is your home worth?

Use our short form to request a valuation of your property.

Request a Valuation

Mortgage Calculator

Amount Borrowed: £
Total Amount Repayable: £
Total Monthly Payment: £
©2025 The Guild of Property Professionals. All rights reserved. Terms and Conditions | Privacy Policy | Cookie Policy | Complaints Policy | Members Login
The Guild of Property Professionals Trading Address: 121 Park Lane, London W1K 7AG. GPEA Limited. Registered in England & Wales.  Company No: 02819824.  Registered Office Address: 2 St. Stephen's Court, St. Stephen's Road, Bournemouth, Dorset, England, BH2 6LA.  VAT Registration No: 576 8795 61
Book a Property Valuation Update Cookies Preferences