Fairford Road, Cheltenham

Guide Price
£325,000
SSTC
This property listing is now SSTC

4 Bedroom End of Terrace House for sale in Cheltenham

2 4 2
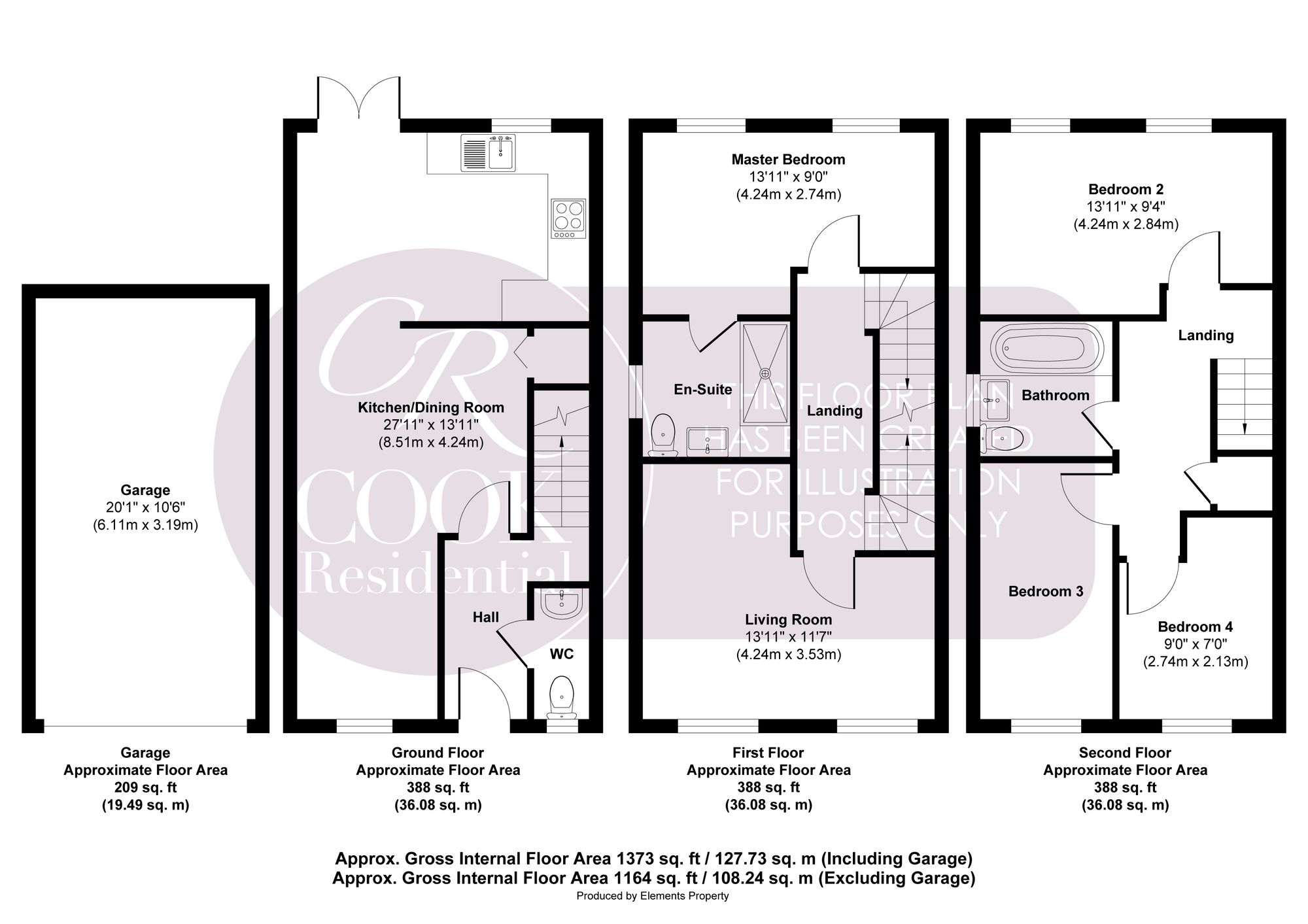
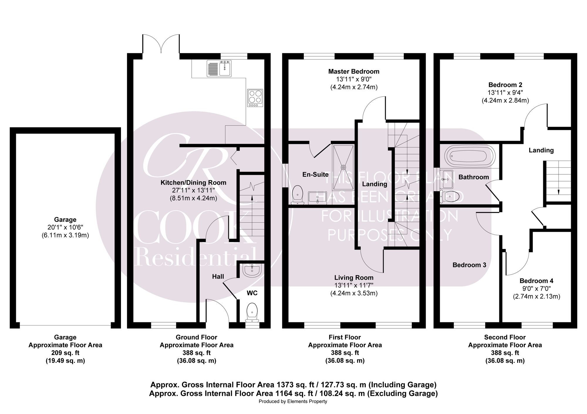
  • Modern Three Storey Family Home
  • Four Bedrooms
  • Open Plan Kitchen-Dining-Family Room
  • First Floor Sitting Room
  • Ensuite and Family Bathroom
  • Enclosed Rear Garden
  • Single Garage With Parking To The Front

A well-presented and contemporary three-storey townhouse, this home offers flexible living across three levels and is perfectly suited to modern family life. Designed with open-plan entertaining space, a private garden, and four well-proportioned bedrooms, the property combines style and practicality, all within easy reach of the town centre and local amenities.

Entrance Hallway: The property is entered via a welcoming hallway which provides access to the principal ground-floor accommodation. A useful cloakroom with WC and wash hand basin is also located here.

Kitchen / Dining / Family Room: The heart of the home is the open-plan kitchen, dining and family room. The kitchen itself is fitted with a range of contemporary units, complementary work surfaces, and integrated appliances, with ample room for a freestanding fridge-freezer. A generous dining area and family seating space flow seamlessly, with French doors opening directly onto the garden, making this a perfect space for both everyday living and entertaining.

First Floor Living Room: Positioned on the first floor, the living room is a bright and comfortable space with French doors to a Juliet balcony, allowing light to pour in. This versatile room is ideal for relaxing or entertaining.

Master Bedroom: Also located on the first floor is the master bedroom, a generous double benefitting from fitted storage space and dual windows.

Ensuite: The master enjoys its own private ensuite shower room, finished with a modern suite comprising shower cubicle, WC, wash hand basin, and chrome heated towel rail.

Second Bedroom: On the second floor, a further double bedroom enjoys a rear aspect and is currently arranged with both a sleeping and study space, offering excellent versatility.

Third Bedroom: Another well-sized bedroom located at the front of the property, ideal as a child’s room, guest bedroom, or study.

Fourth Bedroom: The final bedroom is also positioned on the second floor and offers a bright single room, suitable for a variety of uses.

Family Bathroom: Serving the upper floor is a contemporary bathroom, comprising panelled bath with shower over, wash hand basin, and WC.

Outside: To the rear, an enclosed garden provides both a lawned area and a patio space, perfect for outdoor dining or relaxation.

Garage and Parking: The property further benefits from an en bloc single garage and driveway parking to the front of it.

Additional Details: This modern home benefits from double glazing, gas central heating, and remains within its 10-year NHBC guarantee.

Tenure: Freehold

Council Tax: D

Estate Charge: £292.87 PA

Location: The property is ideally situated within easy reach of Cheltenham Town Centre, local amenities, public houses, and popular eateries. It provides a convenient base for both families and professionals seeking access to excellent transport links and leisure facilities.

Important Notice: These particulars are prepared in good faith and do not form part of any contract. All measurements, descriptions, fixtures and fittings are approximate. Cook Residential accepts no liability for errors or omissions, and prospective purchasers should verify all details independently.

All information relating to tenure and boundaries to be verified by purchaser’s solicitor. All measurements and details provided are for guidance only.

Energy Efficiency Current: 84.0
Energy Efficiency Potential: 93.0

Important Information

  • This is a Freehold property.
  • The annual service charges for this property is £293
  • This Council Tax band for this property is: D

Property Ref: dfd8b0e8-48ba-4b47-a3b0-8c72c4bb3480

Share:

Similar Properties

Burnet Drive, Leckhampton

2 Bedroom End of Terrace House | Guide Price £325,000

New in 2022, this 2-bed end-terrace in Leckhampton boasts 2 en-suites, landscaped garden, and parking. Modern kitchen, o...

Hambrook Street, Charlton Kings

2 Bedroom Semi-Detached House | Guide Price £325,000

Charming 2-bed period home in Charlton Kings. Blend of character features and modern comforts. 2 reception rooms, kitche...

Grove Street, Cheltenham, GL50

3 Bedroom Terraced House | Guide Price £325,000

Stylish 3-bed end terrace in private mews near Cheltenham, open plan living, underfloor heating, garden, carport. Ideal...

Roman Road, Cheltenham

2 Bedroom Terraced House | Guide Price £340,000

Charming 2-bed terraced house on sought-after Roman Road, Cheltenham. South-facing garden, spacious living areas, storag...

Kempley Close, Cheltenham

4 Bedroom Terraced House | Guide Price £340,000

Beautiful 4-bed townhouse in sought-after area. Modern design, open-plan living, 2 stylish baths, private garden. Ideal...

Lawn Crescent, Shurdington

2 Bedroom Detached House | Offers in excess of £350,000

Detached 2-bed bungalow in sought after Shurdington village. Generous frontage, driveway, garage, enclosed gardens. Mode...

Cook Residential (Cheltenham)

Winchcombe Street, Cheltenham, Gloucestershire, GL52 2NF

01242 500259

How much is your home worth?

Use our short form to request a valuation of your property.

Request a Valuation

Mortgage Calculator

Amount Borrowed: £
Total Amount Repayable: £
Total Monthly Payment: £
©2025 The Guild of Property Professionals. All rights reserved. Terms and Conditions | Privacy Policy | Cookie Policy | Complaints Policy | Members Login
The Guild of Property Professionals Trading Address: 121 Park Lane, London W1K 7AG. GPEA Limited. Registered in England & Wales.  Company No: 02819824.  Registered Office Address: 2 St. Stephen's Court, St. Stephen's Road, Bournemouth, Dorset, England, BH2 6LA.  VAT Registration No: 576 8795 61
Book a Property Valuation Update Cookies Preferences