High Street, Cheltenham Town Centre

Guide Price
£140,000
SSTC
This property listing is now SSTC

2 Bedroom Apartment for sale in Cheltenham

1 2 1
  • No Onward Chain
  • Two Bedroom Upper Ground Floor Apartment
  • Large Living Area and Separate Kitchen
  • Two Large Private Patios
  • Next to Sandford Park
  • Fantastic Town Centre Location
  • Residence Permit Parking

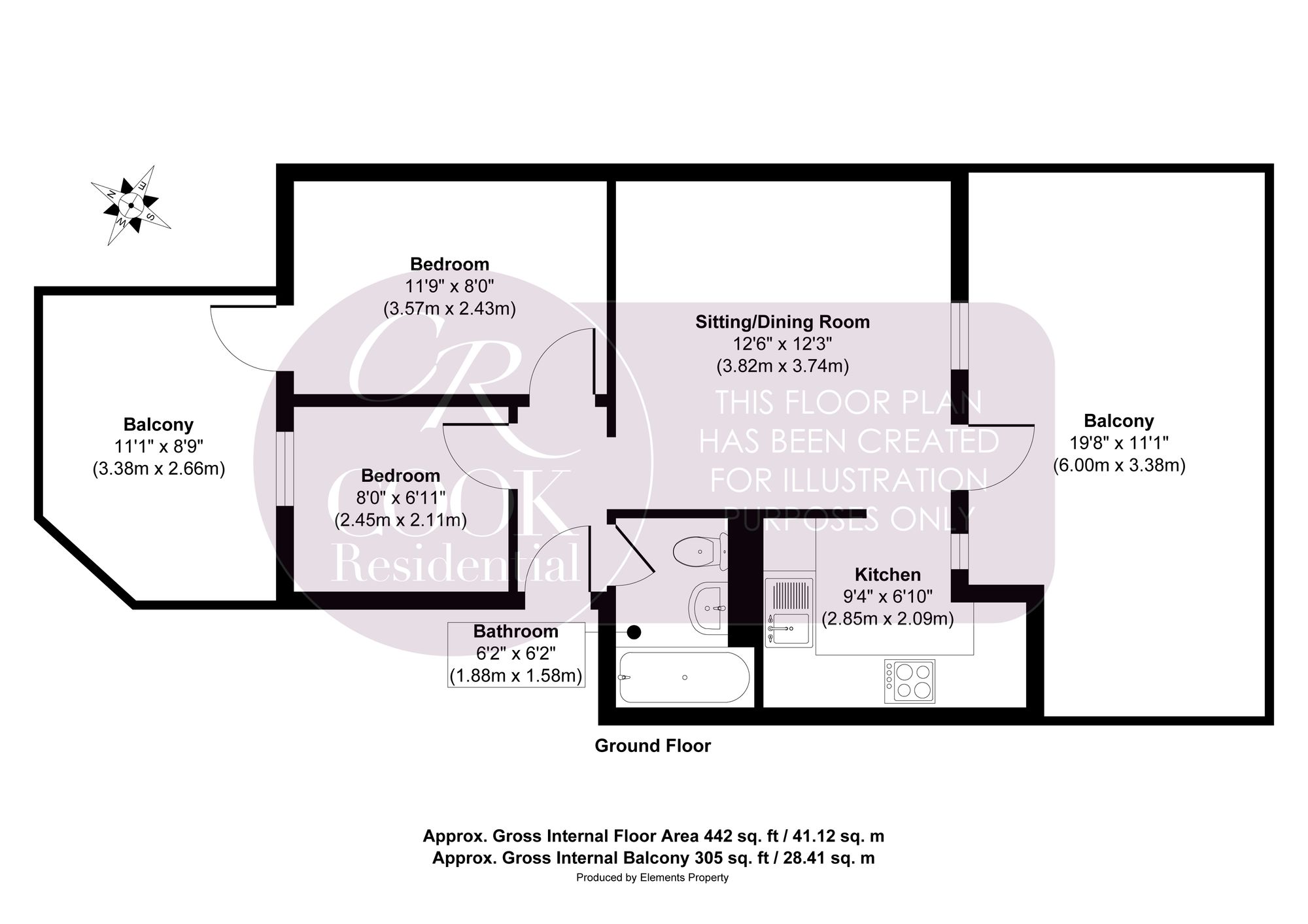
A stylish two bedroom apartment with No Onward Chain and two private patios, perfectly positioned in Berkeley Court on Cheltenham’s High Street, next to Sandford Park and close to the town centre. This modern, well presented home offers bright and versatile living space, ideal for first time buyers, investors, or anyone seeking a convenient town centre location.

Living Room: A bright and welcoming space with full height windows and a door opening onto a large private terrace. Finished in neutral tones with light wood effect flooring, there is ample room for seating and dining, making it ideal for relaxing or entertaining.

Kitchen: A modern fitted kitchen with a range of white units and grey work surfaces. It includes an integrated oven and electric hob with extractor over and stainless steel sink with drainer.

Bedroom One: A well proportioned double bedroom with full height window and door opening onto a private terrace. Finished in soft neutral tones with light wood effect flooring, the room offers a calm and versatile space with ample room for bedroom furniture.

Bedroom Two: A single second bedroom, ideal as a home office, guest room, or dressing room. Finished in neutral tones with a window providing natural light, the room features fitted carpet and a simple, clean décor.

Bathroom: A modern white suite comprising a panelled bath with shower over and glass screen, wash hand basin with vanity unit, and WC. Fully tiled in a contemporary neutral finish, the room is completed with a large mirror and chrome fittings.

Outside Patios: The property benefits from two private patios. One patio is accessed from the living room, providing a generous area ideal for seating or entertaining. The second, smaller patio is accessed from the bedroom, offering a more secluded outdoor spot. Both spaces present potential for improvement and personalisation.

Location: Berkeley Court is situated on Cheltenham’s High Street, placing a wide range of shops, cafés, restaurants, and local amenities right on the doorstep. Cheltenham’s town centre, Montpellier, and The Brewery Quarter are all within easy reach, offering leisure, dining, and entertainment options. Regular bus routes run nearby, and Cheltenham Spa railway station is approximately 1.5 miles away, providing connections to major cities including Bristol and London.

Tenure: Leasehold
Lease Length: Approx. 116 Years Remaining
Service Charge: £150 per month
Ground Rent: £212.60 per annum
Council Tax Band: A

All information regarding the property details, including lease terms and service charges, is to be confirmed between vendor and purchaser solicitors. All measurements are approximate and for guidance purposes only.

Energy Efficiency Current: 74.0
Energy Efficiency Potential: 78.0

Important Information

  • This is a Leasehold property.
  • The annual cost for the ground rent on this property is £213
  • This Council Tax band for this property is: A

Property Ref: 9e018d26-c95a-4898-8a79-68b4fda44a5f

Share:

Similar Properties

Lansdown Road, Cheltenham, GL50

1 Bedroom Apartment | Offers in excess of £140,000

Charming 1-bed apartment in sought-after Lansdown Rd area, Cheltenham. Open-plan, modern finishes, local amenities nearb...

High Street, Cheltenham, GL50

2 Bedroom Flat | Offers in excess of £140,000

Refurbished 2nd floor apartment in Cheltenham's heart with modern interiors, new uPVC windows, electric heating, communa...

Swindon Close, Cheltenham

1 Bedroom Flat | Guide Price £130,000

First floor apartment in well maintained development near town centre. Light-filled open plan layout, spacious double be...

London Road, Town Centre

1 Bedroom Flat | Offers in excess of £150,000

Cook Residential is delighted to present this beautifully bright one bedroom apartment, set within an attractive Grade I...

Prince Regent Avenue, Cheltenham, GL50

1 Bedroom Apartment | Guide Price £150,000

Modern 1-bed apt in Cheltenham with open plan living, contemporary kitchen, double bedroom, and stylish bathroom. Conven...

Bath Street, Cheltenham Town Centre

2 Bedroom Apartment | Offers in excess of £150,000

Modern 2-bed apartment in Cheltenham Town Centre. Ideal for first-time buyers, downsizers, or investors. Open-plan kitch...

Cook Residential (Cheltenham)

Winchcombe Street, Cheltenham, Gloucestershire, GL52 2NF

01242 500259

How much is your home worth?

Use our short form to request a valuation of your property.

Request a Valuation

Mortgage Calculator

Amount Borrowed: £
Total Amount Repayable: £
Total Monthly Payment: £
©2025 The Guild of Property Professionals. All rights reserved. Terms and Conditions | Privacy Policy | Cookie Policy | Complaints Policy | Members Login
The Guild of Property Professionals Trading Address: 121 Park Lane, London W1K 7AG. GPEA Limited. Registered in England & Wales.  Company No: 02819824.  Registered Office Address: 2 St. Stephen's Court, St. Stephen's Road, Bournemouth, Dorset, England, BH2 6LA.  VAT Registration No: 576 8795 61
Book a Property Valuation Update Cookies Preferences