Ottershaw, Chertsey, Surrey, KT16

Guide Price
£525,000
SSTC
This property listing is now SSTC

3 Bedroom Detached House for sale in Chertsey

1 3 2
  • Modern Kitchen
  • Inglenook Fireplace
  • Ensuite To Master Bedroom
  • Garage With Direct Access
  • Private Driveway
  • Central Ottershaw Location
  • Excellent Road Links

Brimming with charm and character, this exceptional home showcases the signature style of Ashfronts developers. Thoughtfully crafted with reclaimed materials, it combines timeless craftsmanship with modern convenience. From the abundance of oak joinery both inside and out, to the exposed brickwork and striking stone flagstones on entry, every detail tells a story. Even the wattle and daub–style internal walls add to its unique personality. Yet, for all its period touches, this is a house designed for effortless 21st-century living.

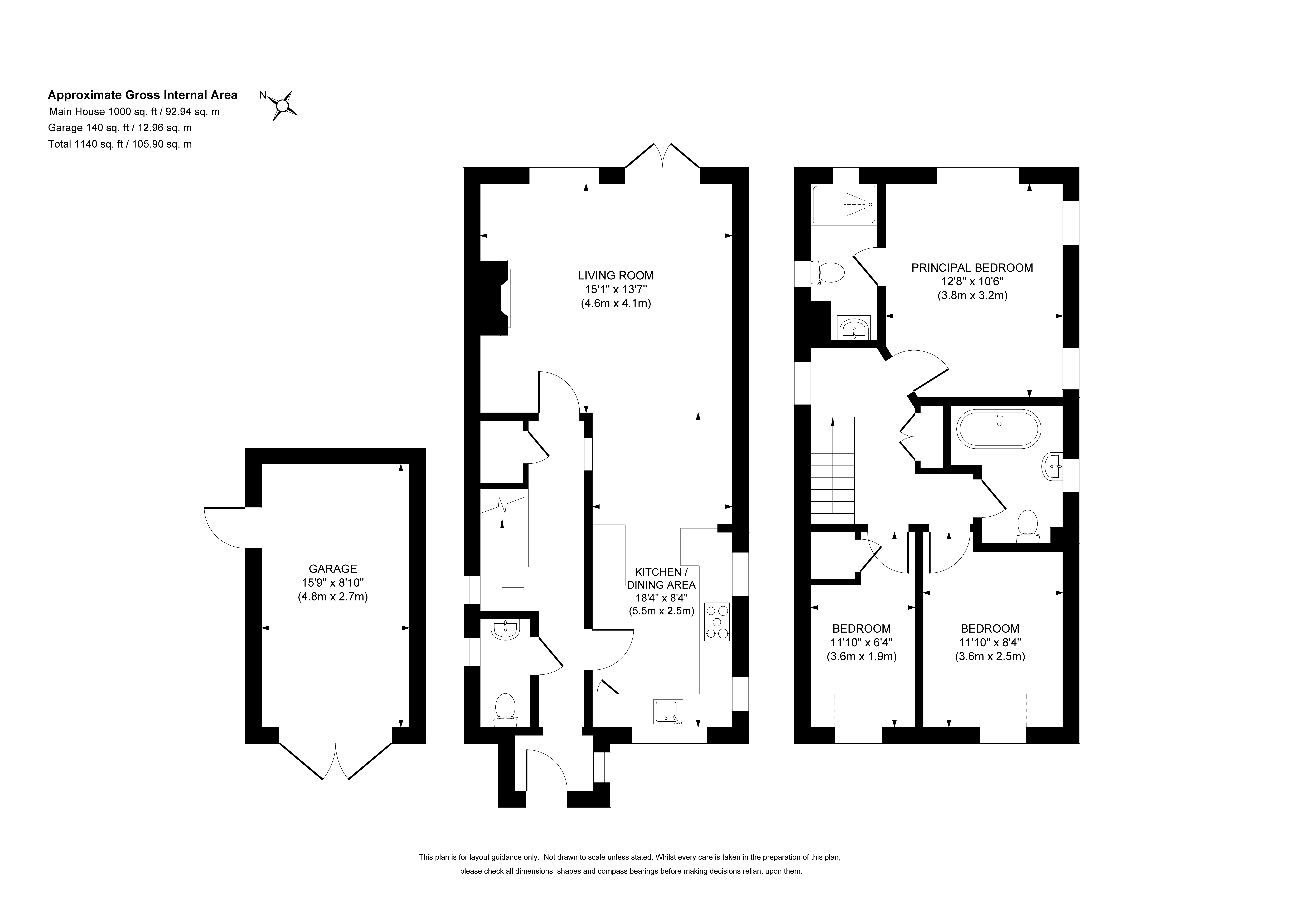
The accommodation has been carefully planned. At its heart lies a beautiful shaker-style kitchen with a butler sink and range cooker and opens to the dining room and living room that centres around a dramatic, full-height inglenook-style exposed brick chimney breast with open fireplace, perfect for cosy evenings in the cooler months. The entrance hall makes a memorable first impression with its wattle and daub finish, complemented by a practical downstairs cloakroom.
Upstairs, the landing leads to three inviting bedrooms and a family bathroom. Each room has a light and airy feel while retaining a warm period character. The master bedroom enjoys views to the rear and its own en-suite shower room that has recently been replaced, while the family bathroom, with its white suite and freestanding claw-foot bath, offers a touch of traditional elegance.

To the front, a flagstone-paved driveway, accessed via a five-bar timber gate, provides off-street parking for two cars. A side pathway leads to the rear garden, a tranquil space that feels remarkably peaceful given the central village location. The garden is framed by an attractive old-stock brick wall on one side, and at the rear by a matching garage with inset black timbers—the first in a block, accessed via the garden and through secure gates into a development of similar period-style homes. A full-width brick patio extends across the back of the house, leading onto a well-tended lawn.

The property sits in the heart of Ottershaw village, which offers an excellent range of everyday amenities including local shops, a post office with mini supermarket, an additional convenience store, two takeaways, a pub, Miller & Carter steakhouse, and a social club, creating a genuine sense of community. For broader shopping and leisure facilities, Addlestone and Chertsey are close by, while the larger towns of Woking, West Byfleet, and Weybridge are only a short drive, each offering fast mainline rail services to London Waterloo. Road links are outstanding, with Junction 11 of the M25 just minutes away, giving easy access to Heathrow and Gatwick airports, as well as central London. The area also benefits from a strong selection of reputable schools.


Important Information

  • This is a Freehold property.

Property Ref: 57181_WOK250765

Share:

Similar Properties

Woking, Surrey, GU22

4 Bedroom End of Terrace House | Guide Price £525,000

This four bedroom semi-detached family home is part of the new Kingsmoor Park development by Messrs Kier Homes and occup...

Woking, Surrey, GU22

4 Bedroom Semi-Detached House | Guide Price £525,000

Situated in a popular location, this beautifully presented, extended semi-detached home offers four spacious bedrooms, t...

Woking, Surrey, GU22

2 Bedroom Semi-Detached House | Guide Price £525,000

Heath View is a freehold property built in 1919, situated over halfway down Kemishford its away from traffic noise, quie...

Woking, Surrey, GU22

3 Bedroom End of Terrace House | Guide Price £530,000

Introducing this beautifully refurbished end-of-terrace home, nestled in a sought-after neighbourhood.

Woking, Surrey, GU22

4 Bedroom Semi-Detached House | Guide Price £530,000

Set across three well-planned floors, this charming four/ five bedroom townhouse is nestled in a private mews-style deve...

Woking, Surrey, GU22

3 Bedroom Detached Bungalow | £530,000

Set within a highly desirable neighbourhood, this delightful detached bungalow perfectly combines comfort, space, and co...

Seymours (Woking)

Woking, Surrey, GU21 6XR

01483 757700

How much is your home worth?

Use our short form to request a valuation of your property.

Request a Valuation

Mortgage Calculator

Amount Borrowed: £
Total Amount Repayable: £
Total Monthly Payment: £
©2025 The Guild of Property Professionals. All rights reserved. Terms and Conditions | Privacy Policy | Cookie Policy | Complaints Policy | Members Login
The Guild of Property Professionals Trading Address: 121 Park Lane, London W1K 7AG. GPEA Limited. Registered in England & Wales.  Company No: 02819824.  Registered Office Address: 2 St. Stephen's Court, St. Stephen's Road, Bournemouth, Dorset, England, BH2 6LA.  VAT Registration No: 576 8795 61
Book a Property Valuation Update Cookies Preferences