Fairway, Chertsey, Surrey, KT16

£465,000
SSTC
This property listing is now SSTC

3 Bedroom Terraced House for sale in Chertsey

3
  • Three-bedroom mid-terrace family home
  • Offered with no onward chain
  • Walking distance to Chertsey town centre and train station
  • Close to Chertsey Meads and the River Thames
  • Within easy reach of several reputable schools

Located at the end of a highly sought-after road in Chertsey, within a short walk to the well-regarded St. Anne's Catholic Primary School, this well-proportioned three-bedroom mid-terrace home is offered to the market with no onward chain—a fantastic opportunity for families, first-time buyers, or investors alike.

The location is hard to beat. Just a short walk from Chertsey town centre, the mainline train station, and close to the beautiful open spaces of Chertsey Meads and the River Thames, it offers a wonderful balance of convenience and lifestyle.

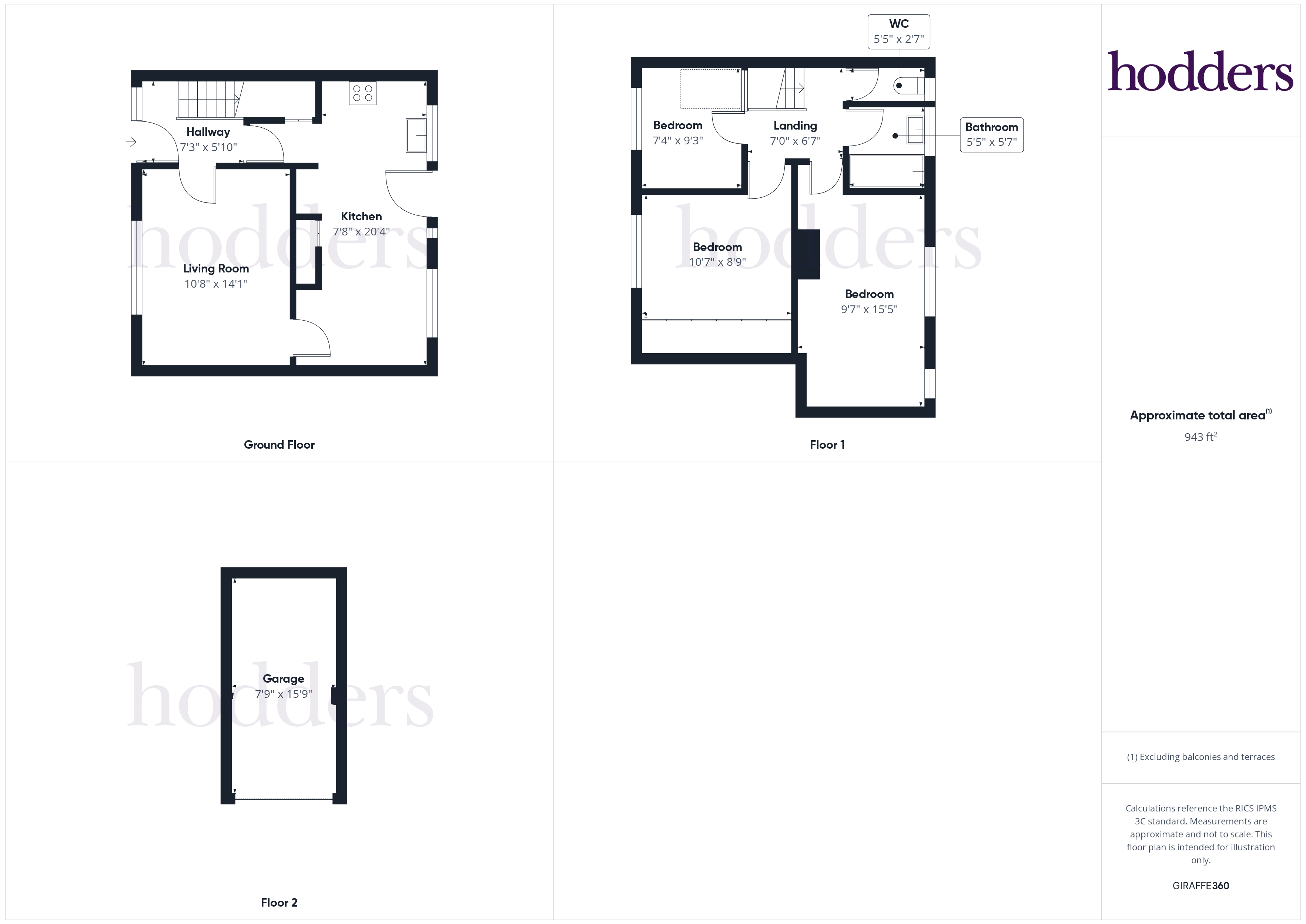
Inside, the property features a front-aspect living room, perfect for relaxing after a long day, while the rear hosts a spacious open-plan kitchen and dining room—ideal for family mealtimes and entertaining, with views over the garden. Upstairs, you'll find three well-sized bedrooms, including two comfortable doubles and a generous single, as well as a two piece family bathroom and separate w.c.

The rear garden is a real highlight—generously sized and family-friendly, with pedestrian side access, offering plenty of potential for outdoor living, play areas, or even future extensions (STPP).

To the front, the home benefits from off-street parking, adding to the convenience of daily life.

With a range of highly regarded schools nearby and excellent transport links, this home is perfectly positioned for growing families or commuters looking for a peaceful yet well-connected location.

Homes in this area are rarely available for long—early viewing is highly recommended.

• Three-bedroom mid-terrace family home
• Offered with no onward chain
• Walking distance to Chertsey town centre and train station
• Close to Chertsey Meads and the River Thames
• Within easy reach of several reputable schools

Important Information

  • This is a Freehold property.

Property Ref: ADD250538

Share:

Similar Properties

St. Anns Road, Chertsey, Surrey, KT16

3 Bedroom Terraced House | £450,000

SALE AGREED BY HODDERSHodders are pleased to offer to the market this well-presented three bedroom mid-terrace family ho...

Bramley Close, Chertsey, Surrey, KT16

2 Bedroom Bungalow | Offers Over £425,000

Nestled peacefully at the end of a friendly cul-de-sac, this delightful two-bedroom bungalow offers a rare blend of comf...

Marina Close, Chertsey, Surrey, KT16

2 Bedroom End of Terrace House | £425,000

Offered to the market in excellent decorative order, this attractive two double bedroom end-of-terrace home is situated...

Kennett Lane, Chertsey, Surrey, KT16

3 Bedroom Terraced House | £475,000

Offered to the market with no onward chain and in good decorative order throughout is this fantastic three double bedroo...

Warwick Deeping, Ottershaw, Surrey, KT16

3 Bedroom End of Terrace House | Offers Over £475,000

Set within the heart of Ottershaw, this beautifully presented three-bedroom home offers the perfect blend of village cha...

Blackbess Lane, Chertsey, Surrey, KT16

3 Bedroom Semi-Detached House | £485,000

A modern and very well-appointed three-bedroom semi-detached home, situated within a popular contemporary development of...

hodders (Chertsey)

Chertsey, Surrey, KT16 8AY

01932 562321

How much is your home worth?

Use our short form to request a valuation of your property.

Request a Valuation

Mortgage Calculator

Amount Borrowed: £
Total Amount Repayable: £
Total Monthly Payment: £
©2026 The Guild of Property Professionals. All rights reserved. Terms and Conditions | Privacy Policy | Cookie Policy | Complaints Policy | Members Login
The Guild of Property Professionals Trading Address: 121 Park Lane, London W1K 7AG. GPEA Limited. Registered in England & Wales.  Company No: 02819824.  Registered Office Address: 2 St. Stephen's Court, St. Stephen's Road, Bournemouth, Dorset, England, BH2 6LA.  VAT Registration No: 576 8795 61
Book a Property Valuation Update Cookies Preferences